Bildegalleri

Velkommen til Rektorhaugen 9A - en flott 4-roms familiebolig med sydvendt balkong og tilgang på store frodige grøntområder.
Barnevennlig på Tåsen
Lys og nydelig 4R | Solrik balkong | Peisovn | Frodig & barnevennlig hageanlegg | Tåsen skole
Prisantydning8 700 000 kr
Nøkkelinfo
- Boligtype
- Leilighet
- Eieform
- Andel
- Soverom
- 3
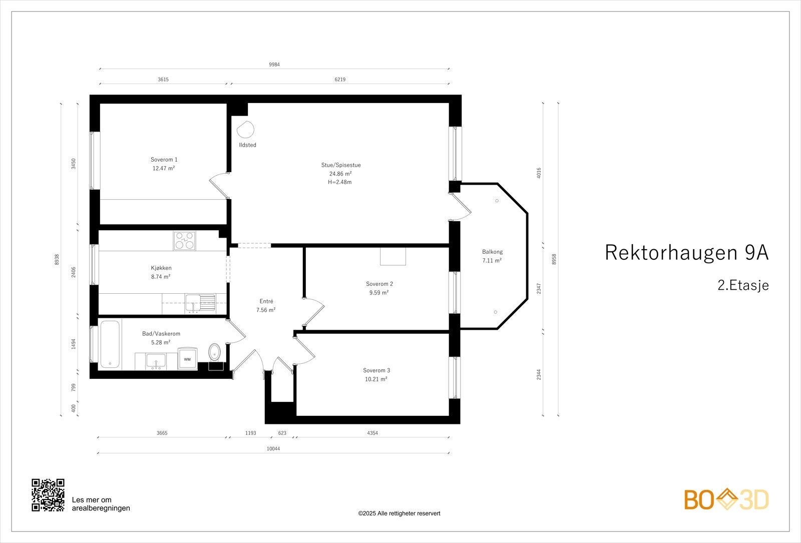
- Internt bruksareal
- 83 m² (BRA-i)
- Bruksareal
- 104 m²
- Eksternt bruksareal
- 21 m² (BRA-e)
- Balkong/Terrasse
- 7 m² (TBA)
- Etasje
- 2
- Byggeår
- 1950
- Energimerking
- F - Oransje
- Tomteareal
- 14 192 m²
- Boligselgerforsikring
- Ja
Fasiliteter
Balkong/Terrasse
Peis/Ildsted
Parkett
Barnevennlig
Rolig
Kabel-TV
Sentralt
Turterreng
Vaktmester-/vektertjeneste
Fellesvaskeri
Bredbåndstilknytning
Lademulighet
Visning
søndag, 11. januar
12:00 – 13:00
mandag, 12. januar
17:30 – 18:30
Alle våre visninger har påmelding. På denne måten sikrer vi at megler har god oversikt og tid til å imøtekomme alle interessenter på beste måte. Dette er veldig verdifullt for boligkjøpere og for oss. Det er enkelt å melde seg på, og du kan like enkelt melde deg av.
Kontakt også gjerne megler i forkant av visning dersom du har spørsmål.
VisningspåmeldingOm boligen
Lys & hyggelig 4-roms m/ solrik balkong og svært barnevennlige hagearealer
- Entré, KVIKK kjøkken (2023) m/spiseplass, stue m/ peis og utg. sydvendt balkong (7 kvm), 3 store soverom, flott flislagt bad/wc (2006).
- Gjennomgående lys, god planløsning og standard
- Luftig takhøyde på 2,48m
- Bodareal 21 kvm gulvareal
- Elbillading på tomten & greie parkeringsforhold
- Ingen forkjøpsrett
- Lave omk. ved kjøp
- IN-ordning på f.gjeld
- BRL har gjennomført omfattende rehab. i 2024/25 m/omtekking av tak, utbedring av fasade, skifte av alle vinduer/dører, etablert ventilasjonsventiler.
- Barnvennlig & sentralt sted å bo m/ store lekearealer for barn, kort vei til marka via Rektorhaugen skogsområdet & parkanlegget Damefallet, gode barnehager & populære barneskoler som Tåsen & Berg rett ved, 3 min til nærmeste T-bane på Berg.
NB: Knappen for å vise hele beskrivelsen har kun en visuell effekt.
NB: Knappen for å vise hele beskrivelsen har kun en visuell effekt.
Salgsoppgaven beskriver vesentlig og lovpålagt informasjon om eiendommen
Se komplett salgsoppgaveNyttige lenker
Nærområdet

PrivatMegleren Allé
Kun det beste på dine vegne
Annonseinformasjon
| FINN-kode | 444645879 |
|---|---|
| Sist endret | 08. jan. 2026 03:05 |
| Referanse | 186250393 |
Annonsene kan være mangelfulle i forhold til lovpålagt opplysningsplikt. Før bindende avtale inngås oppfordres interessenter til å innhente komplett informasjon fra meglerforetaket, selger eller utleier.










































