Bildegalleri

Eiendomsmegler 1 v/ Oliver Andreassen har gleden av å presentere Heggdalsringen 57! Foto: Krokstad & Nervik (Jens Martin Nervik)
Perspektiv Steinan
FLOTT OG MODERNE 2- ROMS FRA 2018|TG1 og 0 på alt |Fjernvarme| Nærhet til NTNU| P-plass i garasjekjeller
Prisantydning3 090 000 kr
Nøkkelinfo
- Boligtype
- Leilighet
- Eieform
- Eier (Selveier)
- Soverom
- 1
- Internt bruksareal
- 41 m² (BRA-i)
- Bruksareal
- 46 m²
- Eksternt bruksareal
- 5 m² (BRA-e)
- Balkong/Terrasse
- 17 m² (TBA)
- Byggeår
- 2018
- Energimerking
- B - Mørkegrønn
- Rom
- 2
- Tomteareal
- 4 573 m² (eiet)
Visning
onsdag, 14. januar
16:30 – 17:15
Våre visninger har påmelding. Dette gjør vi for å kunne yte bedre service for våre kunder. Verdifullt for boligkjøper og for oss. Vi anbefaler at salgsoppgaven lastes ned digitalt før visning, og ring oss gjerne på forhånd for spørsmål om boligen. Passer ikke angitt tidspunkt, ta kontakt så finner vi en løsning. Skulle det mot formodning ikke være påmeldte til angitt visningstidspunkt vil ikke visning bli gjennomført.
Om boligen
Eiendomsmegler 1 v/Oliver Andreassen har gleden av å presentere Heggdalsringen 57
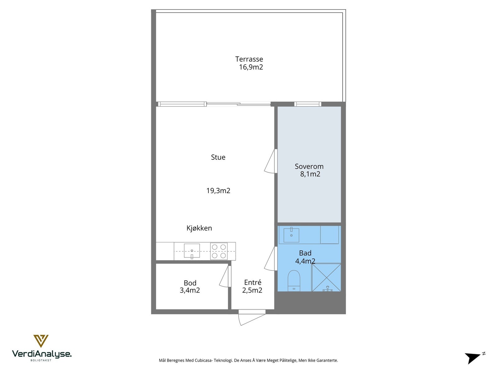
En flott og moderne 2-roms selveierleilighet med gjennomgående høy standard fra 2018. Fra stua har du utgang til en herlig balkong på hele 16,9m². Det medfølger også fast parkeringsplass i oppvarmet garasjekjeller.
Kvaliteter ved eiendommen:
En flott og moderne 2-roms selveierleilighet med gjennomgående høy standard fra 2018. Fra stua har du utgang til en herlig balkong på hele 16,9m². Det medfølger også fast parkeringsplass i oppvarmet garasjekjeller.
Kvaliteter ved eiendommen:
- Romslig og lys stue/kjøkkenløsning på 19,3m²
- Moderne kjøkken med integrerte hvitevarer
- Delikat, flislagt bad med behagelig gulvvarme. Opplegg for vaskemaskin
- Vannbåren varme i alle gulv. Inkl. i felleskostnadene
- God takhøyde og store vindusflater
- Innvendig bod, samt utvendig bod på 5m² i samme etasje
- Nærhet til Estenstadmarka, dagligvare og treningssenter - alt du trenger i hverdagen
- Effektive bussforbindelser til NTNU, BI og sentrum. Gangavstand til Dragvoll
Velkommen til en hyggelig visning!
NB: Knappen for å vise hele beskrivelsen har kun en visuell effekt.
NB: Knappen for å vise hele beskrivelsen har kun en visuell effekt.
Salgsoppgaven beskriver vesentlig og lovpålagt informasjon om eiendommen
Se komplett salgsoppgaveNyttige lenker
Nærområdet
EiendomsMegler 1 Valentinlyst
Vi loser deg trygt gjennom hele boligsalget
Annonseinformasjon
| FINN-kode | 444639100 |
|---|---|
| Sist endret | 06. jan. 2026 07:59 |
| Referanse | 34250372 |
Annonsene kan være mangelfulle i forhold til lovpålagt opplysningsplikt. Før bindende avtale inngås oppfordres interessenter til å innhente komplett informasjon fra meglerforetaket, selger eller utleier.



























