Bildegalleri

Velkommen på visning i populære Myrenskvartalet på Torshov.
Torshov
Lekker 3-r med sydvendt balkong | Bygg 2020 | Flott takterrasse | Heis | IN-ordning |Varmtvann/Fyring ink. | Parkering*
Prisantydning5 750 000 kr
Nøkkelinfo
- Boligtype
- Leilighet
- Eieform
- Andel
- Soverom
- 2
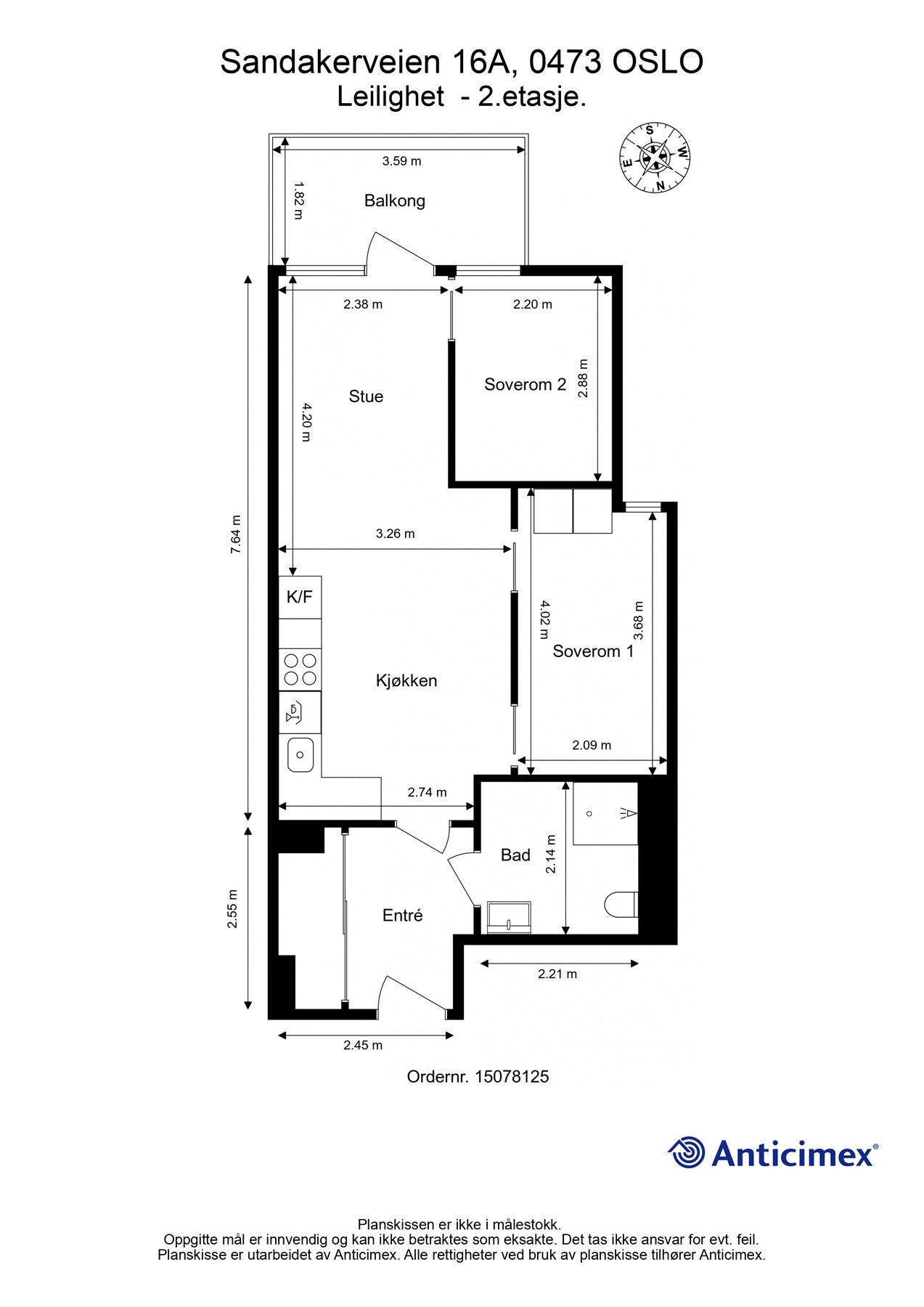
- Internt bruksareal
- 51 m² (BRA-i)
- Bruksareal
- 56 m²
- Eksternt bruksareal
- 5 m² (BRA-e)
- Balkong/Terrasse
- 7 m² (TBA)
- Etasje
- 2
- Byggeår
- 2020
- Energimerking
- C - Mørkegrønn
- Rom
- 3
- Tomteareal
- 3 634 m² (eiet)
Fasiliteter
Barnevennlig
Balkong/Terrasse
Garasje/P-plass
Kabel-TV
Heis
Offentlig vann/kloakk
Parkett
Turterreng
Vaktmester-/vektertjeneste
Sentralt
Bredbåndstilknytning
Moderne
Balansert ventilasjon
Visning
tirsdag, 13. januar
16:30 – 17:00
Meld deg gjerne på visning eller kontakt eiendomsmegler for privatvisning.
Om boligen
Vi har for salg en lys og fin 3-roms i nyere og moderne bygg fra 2020.
Leiligheten har en god planløsning som utnytter plassen optimalt. Fra stuen har du utgang til en sydvendt balkong som er perfekt på varme sommerdager. Leiligheten holdes varm og lun på vinterstid med vannbåren gulvvarme. Gjennomgående god og moderne standard fra 2020 - Her kan du flytte rett inn!
Ved innbetaling av andel fellesgjeld med IN-ordning vil månedlige felleskostnader reduseres til kr 3.910,-.
Leiligheten har en populær beliggenhet midt på Torshov! Her bor du med kort gange til alt av servicetilbud, grønne parker og et godt kollektivtilbud med både buss og trikk.
.Bygg fra 2020
.Sydvendt balkong på 7 m²
.Vannbåren gulvvarme
.Lekkert kjøkken med integrerte hvitevarer
.Á-konto fjernvarme og bredbånd inkl.
.IN-ordning for reduserte felleskostnader
Leiligheten har en god planløsning som utnytter plassen optimalt. Fra stuen har du utgang til en sydvendt balkong som er perfekt på varme sommerdager. Leiligheten holdes varm og lun på vinterstid med vannbåren gulvvarme. Gjennomgående god og moderne standard fra 2020 - Her kan du flytte rett inn!
Ved innbetaling av andel fellesgjeld med IN-ordning vil månedlige felleskostnader reduseres til kr 3.910,-.
Leiligheten har en populær beliggenhet midt på Torshov! Her bor du med kort gange til alt av servicetilbud, grønne parker og et godt kollektivtilbud med både buss og trikk.
.Bygg fra 2020
.Sydvendt balkong på 7 m²
.Vannbåren gulvvarme
.Lekkert kjøkken med integrerte hvitevarer
.Á-konto fjernvarme og bredbånd inkl.
.IN-ordning for reduserte felleskostnader
NB: Knappen for å vise hele beskrivelsen har kun en visuell effekt.
NB: Knappen for å vise hele beskrivelsen har kun en visuell effekt.
Salgsoppgaven beskriver vesentlig og lovpålagt informasjon om eiendommen
Se komplett salgsoppgaveNærområdet
Schala &Partners Sagene
Verdien av lokalkunnskap
Annonseinformasjon
| FINN-kode | 444635403 |
|---|---|
| Sist endret | 07. jan. 2026 08:07 |
| Referanse | 19251007 |
Annonsene kan være mangelfulle i forhold til lovpålagt opplysningsplikt. Før bindende avtale inngås oppfordres interessenter til å innhente komplett informasjon fra meglerforetaket, selger eller utleier.





























