Bildegalleri

Krogsveen v/Simen Grevskott har gleden av å presentere Rostockgata 74. Foto: Chris Borowiak.
CLEMENSKVARTALET I BJØRVIKA/BARCODE
Delikat og moderne 3-roms med høy standard og vestvendt balkong - Ettertraktet beliggenhet - Heis - Nybygg fra 2023!
Prisantydning9 290 000 kr
Nøkkelinfo
- Boligtype
- Leilighet
- Eieform
- Eier (Selveier)
- Soverom
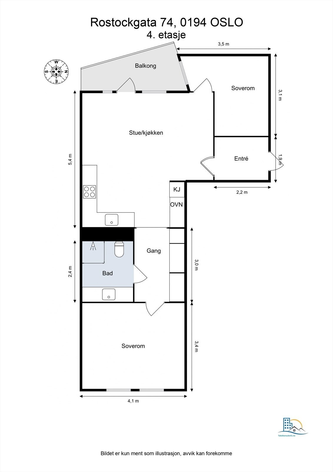
- 2
- Internt bruksareal
- 67 m² (BRA-i)
- Bruksareal
- 74 m²
- Eksternt bruksareal
- 7 m² (BRA-e)
- Balkong/Terrasse
- 5 m² (TBA)
- Etasje
- 4
- Byggeår
- 2023
- Energimerking
- B - Mørkegrønn
- Rom
- 3
- Tomteareal
- 6 570 m² (eiet)
Fasiliteter
Takterrasse
Balkong/Terrasse
Barnevennlig
Bredbåndstilknytning
Heis
Parkett
Rolig
Utsikt
Vaktmester-/vektertjeneste
Balansert ventilasjon
Om boligen
Krogsveen v/Simen Grevskott har gleden av å presentere denne flotte og moderne 3-roms leiligheten med ettertraktet beliggenhet i Bjørvika. Store vindusflater skaper en lys og luftig atmosfære. Boligen holder svært god standard med tilstandsgrad 1 eller bedre på alle punkter i tilstandsrapporten. Denne vil du ikke gå glipp av!
- Nybygg fra 2023
- Åpen stue- kjøkkenløsning m/godt lysinnslipp
- Moderne HTH kjøkken m/integrerte hvitevarer
- Delikat flislagt baderom med gulvvarme
- En-stavs parkett
- Balansert ventilasjon
- Vestvendt balkong på ca. 5 kvm
- God oppbevaringsplass i kjellerbod m/heisadkomst
- A-konto fyring, varmtvann, TV og internett inkl.
- Gjesteleiligheter og kajakker kan leies av sameiet
- Svært ettertraktet beliggenhet
NB: Knappen for å vise hele beskrivelsen har kun en visuell effekt.
NB: Knappen for å vise hele beskrivelsen har kun en visuell effekt.
Salgsoppgaven beskriver vesentlig og lovpålagt informasjon om eiendommen
Se komplett salgsoppgaveNyttige lenker
Nærområdet
Krogsveen Hasle
Velkommen til en enklere boligreise.
Annonseinformasjon
| FINN-kode | 444631794 |
|---|---|
| Sist endret | 06. jan. 2026 09:40 |
| Referanse | KR37.25130 |
Annonsene kan være mangelfulle i forhold til lovpålagt opplysningsplikt. Før bindende avtale inngås oppfordres interessenter til å innhente komplett informasjon fra meglerforetaket, selger eller utleier.


























































