Bildegalleri

Ny leilighet med flott sjøutsikt og landlig beliggenhet i Løypetona på Frekhaug.
Ny og oppgradert leilighet med flott sjøutsikt og trappefri adkomst - 2 flislagte bad - Carport med el-bil lader
Prisantydning6 398 000 kr
Nøkkelinfo
- Boligtype
- Leilighet
- Eieform
- Eier (Selveier)
- Soverom
- 2
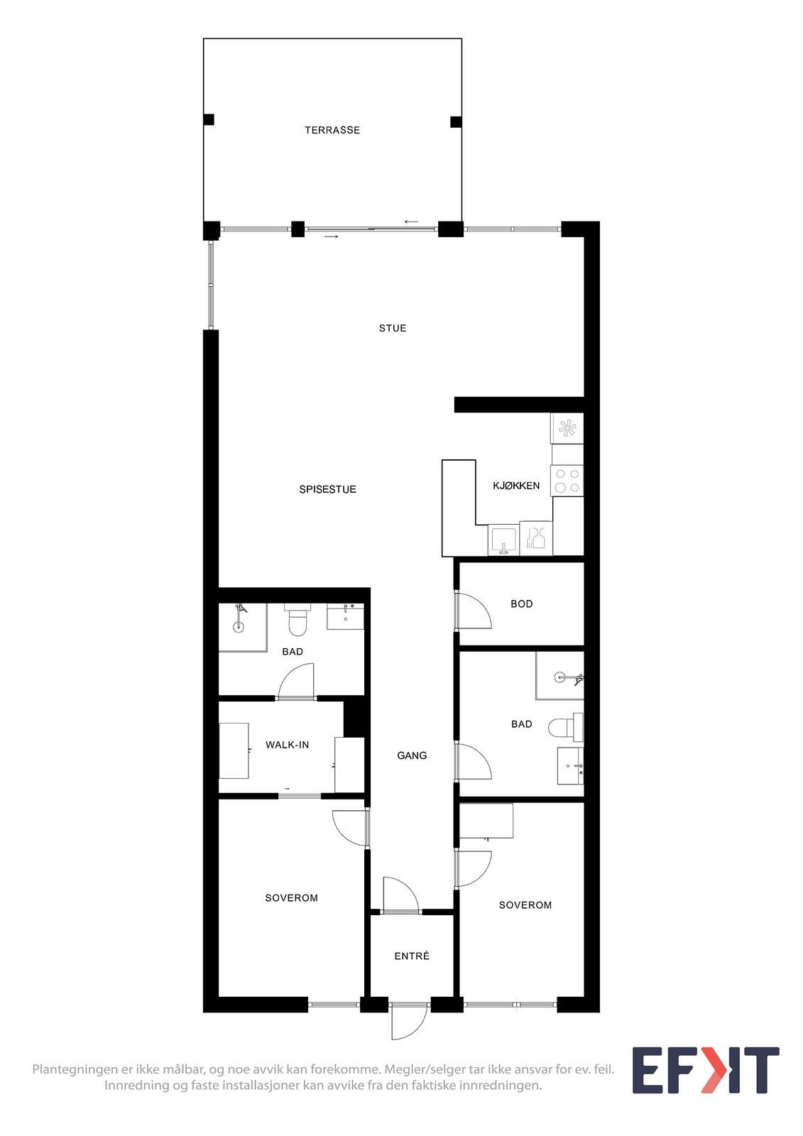
- Internt bruksareal
- 98 m² (BRA-i)
- Bruksareal
- 103 m²
- Eksternt bruksareal
- 5 m² (BRA-e)
- Balkong/Terrasse
- 16 m² (TBA)
- Etasje
- 1
- Byggeår
- 2025
- Energimerking
- A - Lysegrønn
- Rom
- 3
- Tomteareal
- 1 182 m² (eiet)
Fasiliteter
Balkong/Terrasse
Garasje/P-plass
Offentlig vann/kloakk
Turterreng
Balansert ventilasjon
Visning
onsdag, 14. januar
19:00 – 19:30
Alle DNB Eiendoms visninger har påmelding, kontakt megler for å avtale tidspunkt. Annonsert visning blir ikke avholdt uten påmeldinger innen kl 12.00 samme dag. Kontakt oss for privatvisning dersom oppsatt tidspunkt ikke passer. Velkommen til hyggelig visning!
VisningspåmeldingOm boligen
Ny og stor 3-roms leilighet med flott standard og beliggenhet ved sjøen i Løypetona. Løypetona 139 har en flott beliggenhet som gir deg en nydelig sjøutsikt. Sjøen gir ypperlige bademuligheter om sommeren med Badevika badestrand i gangavstand fra Løypetona.
Leiligheten har god standard og inneholder blant annet:
- To bad med 60 x 60 cm fliser på vegg og gulv.
- Lekkert HTH baderomsmøbel, vegghengt toalett og dushjørne med glassdører på begge bad.
- Lekkert HTH kjøkken med integrerte hvitevarer fra Siemens.
- 1-stavs 15 mm eikeparkett parkett fra Kährs i hvitlasert eik.
- Listefrie overganger mellom vegg og himling.
- Balansert ventilasjon med varmegjenvinning.
- Varmekabler i stue/kjøkken, gang, entré, bod og begge bad.
- Stor markterrasse.
- Carport med el-bil lader.
Leiligheten har god standard og inneholder blant annet:
- To bad med 60 x 60 cm fliser på vegg og gulv.
- Lekkert HTH baderomsmøbel, vegghengt toalett og dushjørne med glassdører på begge bad.
- Lekkert HTH kjøkken med integrerte hvitevarer fra Siemens.
- 1-stavs 15 mm eikeparkett parkett fra Kährs i hvitlasert eik.
- Listefrie overganger mellom vegg og himling.
- Balansert ventilasjon med varmegjenvinning.
- Varmekabler i stue/kjøkken, gang, entré, bod og begge bad.
- Stor markterrasse.
- Carport med el-bil lader.
NB: Knappen for å vise hele beskrivelsen har kun en visuell effekt.
NB: Knappen for å vise hele beskrivelsen har kun en visuell effekt.
Salgsoppgaven beskriver vesentlig og lovpålagt informasjon om eiendommen
Se komplett salgsoppgaveNyttige lenker
Nærområdet
DNB Eiendom AS
Fra hjem til hjem
Annonseinformasjon
| FINN-kode | 444621282 |
|---|---|
| Sist endret | 05. jan. 2026 23:41 |
| Referanse | 715250147 |
Annonsene kan være mangelfulle i forhold til lovpålagt opplysningsplikt. Før bindende avtale inngås oppfordres interessenter til å innhente komplett informasjon fra meglerforetaket, selger eller utleier.



















