Bildegalleri

Velkommen til Bjerkelundsveien 20!
Jar
Sjarmerende enebolig med fantastiske uteområder beliggende på attraktive Jar | Platting på 20 m² og vinterhage | Garasje
Prisantydning10 500 000 kr
Nøkkelinfo
- Boligtype
- Enebolig
- Eieform
- Eier (Selveier)
- Soverom
- 3
- Internt bruksareal
- 102 m² (BRA-i)
- Bruksareal
- 171 m²
- Eksternt bruksareal
- 63 m² (BRA-e)
- Innglasset balkong
- 6 m² (BRA-b)
- Balkong/Terrasse
- 20 m² (TBA)
- Etasje
- 3
- Byggeår
- 1922
- Energimerking
- G - Rød
- Tomteareal
- 1 041 m² (eiet)
Fasiliteter
Balkong/Terrasse
Barnevennlig
Garasje/P-plass
Hage
Kjæledyr tillatt
Parkett
Peis/Ildsted
Om boligen
Velkommen til Bjerkelundsveien 20! En sjarmerende enebolig med en rolig og barnevennlig beliggenhet på attraktive Jar. Boligen har fantastiske uteområder med en stor hage.
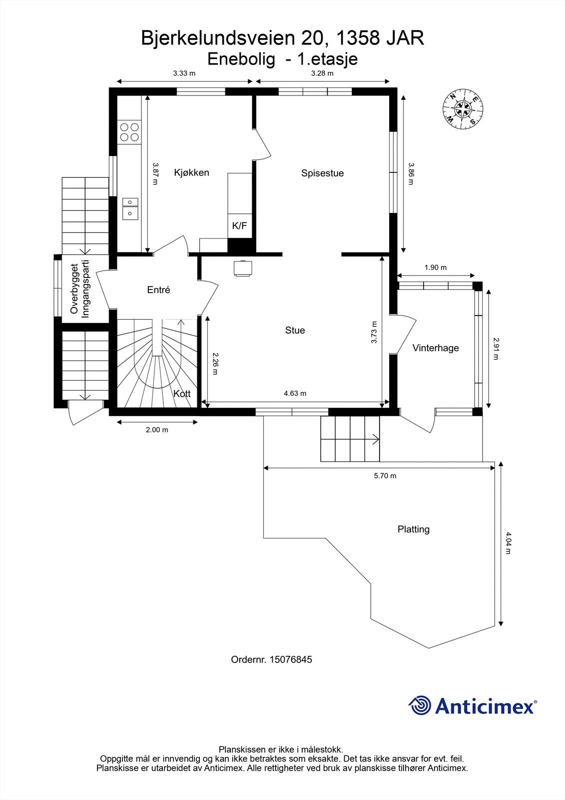
I dette veletablerte og trygge nabolaget ligger alt til rette for en enkel hverdag. Med kort gangavstand til skoler, barnehager, dagligvarer, apotek og offentlig kommunikasjon blir logistikken ukomplisert. Boligen har en god planløsning med stue, spisestue og kjøkken i første etasje. En koselig peisovn skaper en lun atmosfære, og fra stuen er det utgang til en innglasset vinterhage som forlenger sesongen. Tre soverom, samt bad i andre etasje.
Frittstående garasje med elbillader. Innglasset vinterhage på 6 m² og platting på 20 m². Skorstein rehabilitert i 2017. Gode lagringsmuligheter med fire boder i kjelleren.
I dette veletablerte og trygge nabolaget ligger alt til rette for en enkel hverdag. Med kort gangavstand til skoler, barnehager, dagligvarer, apotek og offentlig kommunikasjon blir logistikken ukomplisert. Boligen har en god planløsning med stue, spisestue og kjøkken i første etasje. En koselig peisovn skaper en lun atmosfære, og fra stuen er det utgang til en innglasset vinterhage som forlenger sesongen. Tre soverom, samt bad i andre etasje.
Frittstående garasje med elbillader. Innglasset vinterhage på 6 m² og platting på 20 m². Skorstein rehabilitert i 2017. Gode lagringsmuligheter med fire boder i kjelleren.
NB: Knappen for å vise hele beskrivelsen har kun en visuell effekt.
NB: Knappen for å vise hele beskrivelsen har kun en visuell effekt.
Salgsoppgaven beskriver vesentlig og lovpålagt informasjon om eiendommen
Se komplett salgsoppgaveNyttige lenker
Nærområdet
Krogsveen Bærum
Velkommen til en enklere boligreise.
Annonseinformasjon
| FINN-kode | 444617175 |
|---|---|
| Sist endret | 06. jan. 2026 11:55 |
| Referanse | KR10.25331 |
Annonsene kan være mangelfulle i forhold til lovpålagt opplysningsplikt. Før bindende avtale inngås oppfordres interessenter til å innhente komplett informasjon fra meglerforetaket, selger eller utleier.



















































