Bildegalleri

Leinæs & Partners har gleden av å presentere Furuåsen 32!
Tjølling
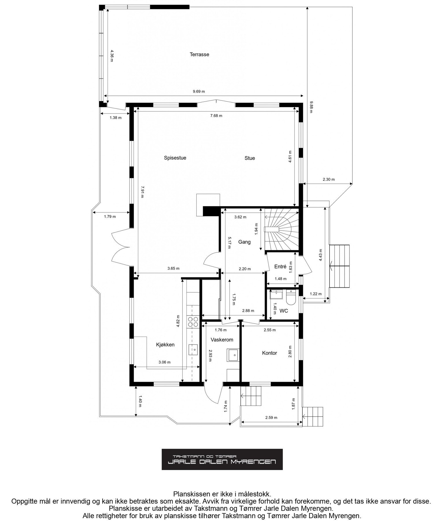
Romslig enebolig over tre plan med flotte uteplasser og landlige omgivelser - hybel - garasjer - bad fra 2022
Prisantydning6 290 000 kr
Nøkkelinfo
- Boligtype
- Enebolig
- Eieform
- Eier (Selveier)
- Soverom
- 4
- Internt bruksareal
- 256 m² (BRA-i)
- Bruksareal
- 311 m²
- Eksternt bruksareal
- 55 m² (BRA-e)
- Balkong/Terrasse
- 132 m² (TBA)
- Byggeår
- 1990
- Energimerking
- D - Gul
- Tomteareal
- 1 256 m² (eiet)
Fasiliteter
Barnevennlig
Balkong/Terrasse
Garasje/P-plass
Offentlig vann/kloakk
Ingen gjenboere
Parkett
Peis/Ildsted
Turterreng
Utsikt
Bredbåndstilknytning
Moderne
Rolig
Lademulighet
Om boligen
Leinæs & Partners har gleden av å presentere Furuåsen 32!
Boligen fremstår som romslig og lys, med god planløsning og rikelig plass til familien. Eiendommen er høyt og solrikt beliggende, med flott utsyn over jorder og tretopper. Det er utleiedel i underetasjen, som kan gi leieinntekter. Det er ekstra god takhøyde i underetasjen og hovedplan. Området er stille, rolig og trygt, beliggende i blindgate uten gjennomgangstrafikk, ideelt for barnefamilier.
Boligen har gjennomgått betydelig oppgradering de senere år, herunder oppussing av kjøkken, etablering av utestue, utskifting av vinduer og dører, oppussing av bad og gjestetoalett, asfaltert gårdsplass, installasjon av elbillader samt generell overflateoppussing i nær sagt alle rom. Resultatet er en moderne og velholdt bolig. Det er også installert en ny varmepumpe.
Eiendommen ligger attraktivt til i Tjølling, i et barnevennlig og veletablert boligområde.
Velkommen!
Boligen fremstår som romslig og lys, med god planløsning og rikelig plass til familien. Eiendommen er høyt og solrikt beliggende, med flott utsyn over jorder og tretopper. Det er utleiedel i underetasjen, som kan gi leieinntekter. Det er ekstra god takhøyde i underetasjen og hovedplan. Området er stille, rolig og trygt, beliggende i blindgate uten gjennomgangstrafikk, ideelt for barnefamilier.
Boligen har gjennomgått betydelig oppgradering de senere år, herunder oppussing av kjøkken, etablering av utestue, utskifting av vinduer og dører, oppussing av bad og gjestetoalett, asfaltert gårdsplass, installasjon av elbillader samt generell overflateoppussing i nær sagt alle rom. Resultatet er en moderne og velholdt bolig. Det er også installert en ny varmepumpe.
Eiendommen ligger attraktivt til i Tjølling, i et barnevennlig og veletablert boligområde.
Velkommen!
NB: Knappen for å vise hele beskrivelsen har kun en visuell effekt.
NB: Knappen for å vise hele beskrivelsen har kun en visuell effekt.
Salgsoppgaven beskriver vesentlig og lovpålagt informasjon om eiendommen
Se komplett salgsoppgaveNærområdet
Leinæs & Partners
Verdien av lokalkunnskap
Annonseinformasjon
| FINN-kode | 444609284 |
|---|---|
| Sist endret | 25. feb. 2026 12:33 |
| Referanse | 22251021 |
Annonsene kan være mangelfulle i forhold til lovpålagt opplysningsplikt. Før bindende avtale inngås oppfordres interessenter til å innhente komplett informasjon fra meglerforetaket, selger eller utleier.























































