Bildegalleri

Velkommen til Fyrstikkbakken 14A, presentert av Schala & Partners ved Linus Juell, tlf. 98 64 77 21.
Lys og strøken 4-roms endeleilighet fra 2023 | Balkong med fin utsikt | Høy standard | Heis | Unike fellesfasiliteter
Nøkkelinfo
- Boligtype
- Leilighet
- Eieform
- Eier (Selveier)
- Soverom
- 3
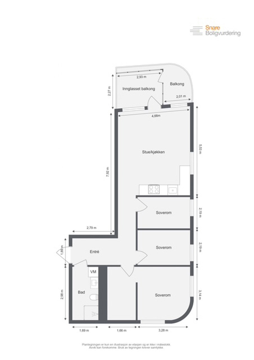
- Internt bruksareal
- 77 m² (BRA-i)
- Bruksareal
- 89 m²
- Eksternt bruksareal
- 5 m² (BRA-e)
- Innglasset balkong
- 7 m² (BRA-b)
- Balkong/Terrasse
- 3 m² (TBA)
- Etasje
- 4
- Byggeår
- 2023
- Rom
- 4
- Tomt
- Eiet
Fasiliteter
Visning
Om boligen
Velkommen til en lys og strøken 4-roms endeleilighet i et moderne bygg fra 2023. Leiligheten holder en gjennomgående høy standard med kun TG1. Boligen består av stue m/åpen løsning til kjøkken, tre soverom, bad og entré. Fra stuen er det utgang til en romslig balkong med fantastisk utsikt.
Fyrstikkbakken 14 er et nytenkende boligprosjekt med flotte fellesfasiliteter som inkluderer blant annet takterrasser med panoramautsikt, sauna, treningsrom, selskapslokale og gjesteleilighet.
- Bygg fra 2023 med høy standard
- 4.etasje med heisadkomst
- Romslig balkong med utsikt
- Store vindusflater med gode lysforhold
- Vannbåren varme
- Kjellerbod på 5 kvm
- Mulighet til leie av parkering
- Nærhet til T-bane/tog
- Unike fellesarealer
Salgsoppgaven beskriver vesentlig og lovpålagt informasjon om eiendommen
Se komplett salgsoppgaveNyttige lenker
Nærområdet
Schala & Partners Grünerløkka
Annonseinformasjon
| FINN-kode | 444605531 |
|---|---|
| Sist endret | 08. jan. 2026 03:23 |
| Referanse | 16250250 |
Annonsene kan være mangelfulle i forhold til lovpålagt opplysningsplikt. Før bindende avtale inngås oppfordres interessenter til å innhente komplett informasjon fra meglerforetaket, selger eller utleier.
















































