Bildegalleri

Kjell Olav Bårdseng viser deg denne innholdsrike boligen med 5/6 soverom, 2 bad, vaskerom, garasje og gårdsplass.
Pen og meget innholdsrik bolig med kveldssol og panoramautsikt. 5/6 soverom, 2 bad, vaskerom, garasje og gårdsplass.
Nøkkelinfo
- Boligtype
- Tomannsbolig
- Eieform
- Andel
- Soverom
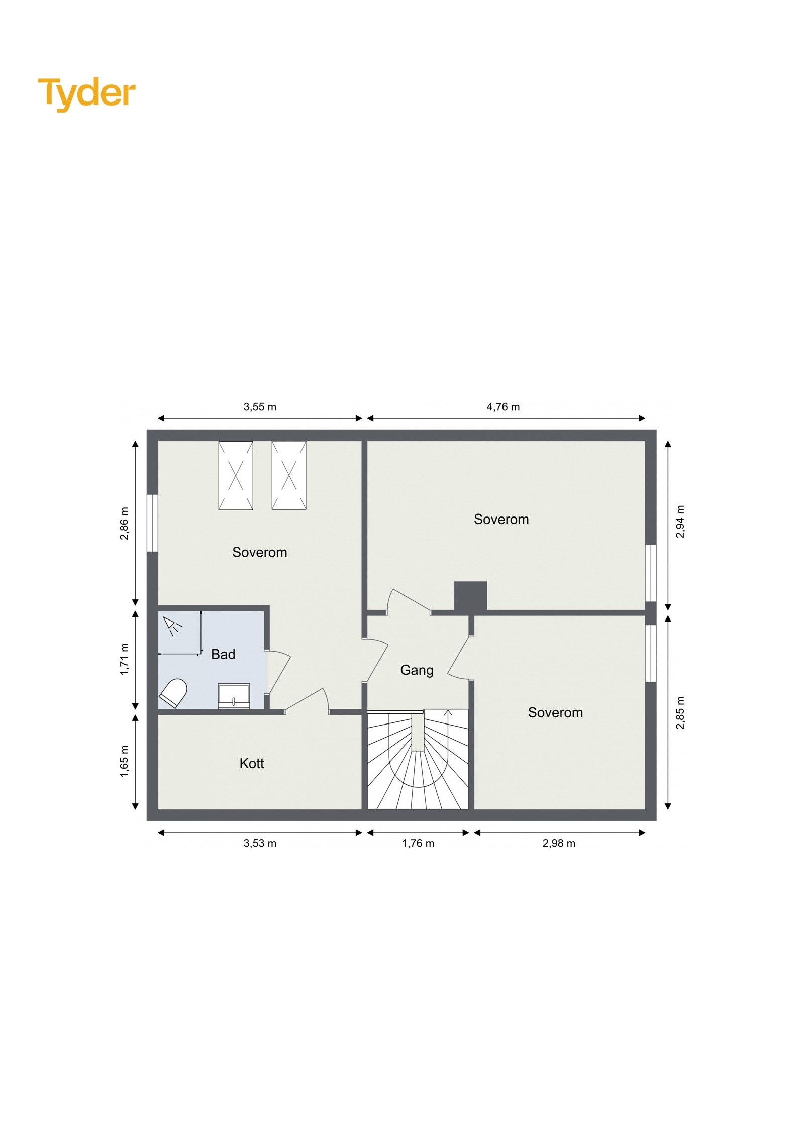
- 6
- Internt bruksareal
- 134 m² (BRA-i)
- Bruksareal
- 159 m²
- Eksternt bruksareal
- 25 m² (BRA-e)
- Balkong/Terrasse
- 90 m² (TBA)
- Byggeår
- 1988
- Energimerking
- D - Gul
- Rom
- 7
- Tomteareal
- 22 526 m² (eiet)
- Boligselgerforsikring
- Ja
Fasiliteter
Visning
Om boligen
Velkommen til Kalkbrennerveien 59: en romslig og familievennlig bolig med attraktiv beliggenhet på Tøyenhaugen i Hakadal. Her bor du barnevennlig og naturnært, med skogen som nærmeste nabo og flott utsikt mot Varingskollen. Boligen byr på åpen og sosial planløsning mellom kjøkken og stue, store vindusflater med godt lysinnslipp og utgang til en stor, delvis overbygd veranda. Med inntil seks soverom, flere bad, separat vaskerom og rikelig med lagringsplass, ligger alt til rette for en aktiv familiehverdag.
Kort fortalt:
- Inntil 6 soverom og fleksible romløsninger
- Stor, solrik veranda med flott utsikt
- Flere bad + wc og eget vaskerom
- Svært barnevennlig område med lekeplasser og ballbinge
- Nærhet til marka, skiløyper og Varingskollen
- Gangavstand til skole og buss
Velkommen til visning!
Salgsoppgaven beskriver vesentlig og lovpålagt informasjon om eiendommen
Se komplett salgsoppgaveNyttige lenker
Nærområdet

PrivatMegleren Lillestrøm
Annonseinformasjon
| FINN-kode | 444038479 |
|---|---|
| Sist endret | 05. jan. 2026 03:07 |
| Referanse | 24250540 |
Annonsene kan være mangelfulle i forhold til lovpålagt opplysningsplikt. Før bindende avtale inngås oppfordres interessenter til å innhente komplett informasjon fra meglerforetaket, selger eller utleier.








































