Bildegalleri

Velkommen til Havsteinflata 15C - et rekkehus på 112 m² over to plan med oppussingsbehov og godt potensial!
Havstein - BYÅSEN
Rekkehus på 112 m² BRA-i med oppussingsbehov | 2 etasjer | Carport & garasje | Familievennlig beliggenhet | Nær Bymarka
Prisantydning4 790 000 kr
Nøkkelinfo
- Boligtype
- Rekkehus
- Eieform
- Eier (Selveier)
- Soverom
- 3
- Internt bruksareal
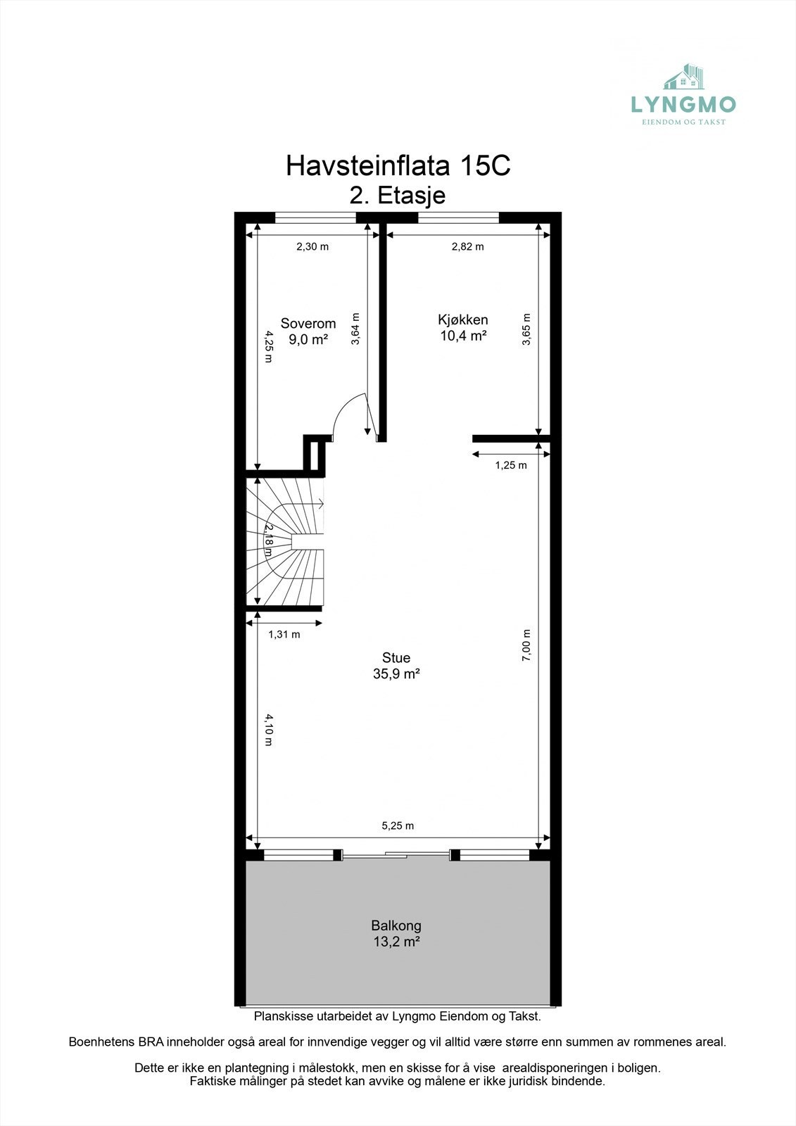
- 112 m² (BRA-i)
- Bruksareal
- 125 m²
- Eksternt bruksareal
- 13 m² (BRA-e)
- Balkong/Terrasse
- 13 m² (TBA)
- Etasje
- 2
- Byggeår
- 1970
- Energimerking
- F - Rød
- Rom
- 4
- Tomteareal
- 180 m² (eiet)
Fasiliteter
Balkong/Terrasse
Barnevennlig
Garasje/P-plass
Golfbane
Hage
Kjæledyr tillatt
Offentlig vann/kloakk
Parkett
Peis/Ildsted
Rolig
Sentralt
Turterreng
Visning
torsdag, 08. januar
17:00 – 18:00
Alle våre visninger har påmelding. Meld deg opp til ønsket visningstidspunkt via linken visningspåmelding , eller kontakt megler på telefon, SMS eller mail. Vi anbefaler at salgsoppgaven lastes ned digitalt, og oppfordrer alle til å lese komplett salgsoppgave før visning. Skulle det mot formodning ikke være påmeldte til angitt visningstidspunkt vil ikke visning bli gjennomført.
VisningspåmeldingOm boligen
Velkommen til Havsteinflata 15 C - et rekkehus med familievennlig beliggenhet og behov for oppussing. Boligen er på hele 112 m² BRA-i fordelt over to plan og byr på blant annet en lys og romslig stue, 3 soverom, bad, WC, vaskerom og to boder. Utvendig får dere en flott opparbeidet hage, carport og garasje. Fra boligen er det kort avstand til "alt" du trenger i hverdagen som blant annet dagligvarehandel, skoler, barnehager, idrettsanlegg og Bymarka.
Kvaliteter verdt å merke seg:
- God planløsning med store vindusflater.
- Familievennlig område med to lekeplasser i umiddelbar nærhet.
- Godt potensiale for de som ønsker rekkehus i området.
- Carport og garasje.
Ta gjerne kontakt med megler på 482 76 979 ved eventuelle spørsmål!
Kvaliteter verdt å merke seg:
- God planløsning med store vindusflater.
- Familievennlig område med to lekeplasser i umiddelbar nærhet.
- Godt potensiale for de som ønsker rekkehus i området.
- Carport og garasje.
Ta gjerne kontakt med megler på 482 76 979 ved eventuelle spørsmål!
NB: Knappen for å vise hele beskrivelsen har kun en visuell effekt.
NB: Knappen for å vise hele beskrivelsen har kun en visuell effekt.
Salgsoppgaven beskriver vesentlig og lovpålagt informasjon om eiendommen
Se komplett salgsoppgaveNyttige lenker
Nærområdet
Heimdal Eiendomsmegling avd. Byåsen
Annonseinformasjon
| FINN-kode | 443831357 |
|---|---|
| Sist endret | 31. des. 2025 17:22 |
| Referanse | 14-25-0118 |
Annonsene kan være mangelfulle i forhold til lovpålagt opplysningsplikt. Før bindende avtale inngås oppfordres interessenter til å innhente komplett informasjon fra meglerforetaket, selger eller utleier.

































