Bildegalleri

EiendomsMegler1 v/Margareth Jensen har gleden av å presentere Krabbavikveien 175 for salg.
Jåsund
Innbydende rekkehus med god standard. Naturskjønne omgivelser. Parkering i carport.
Prisantydning5 290 000 kr
Nøkkelinfo
- Boligtype
- Rekkehus
- Eieform
- Eier (Selveier)
- Soverom
- 3
- Internt bruksareal
- 107 m² (BRA-i)
- Bruksareal
- 111 m²
- Eksternt bruksareal
- 4 m² (BRA-e)
- Balkong/Terrasse
- 35 m² (TBA)
- Byggeår
- 2021
- Energimerking
- B - Rød
- Rom
- 4
- Tomteareal
- 125 m² (eiet)
Fasiliteter
Balkong/Terrasse
Barnevennlig
Hage
Rolig
Turterreng
Visning
tirsdag, 06. januar
16:00 – 17:00
Ønsker du å delta på visningen ber vi deg melde deg på slik at vi vet at du kommer. Da kan vi bistå alle best mulig og gi deg tiden du trenger på visningen. Kontakt gjerne megler før visning hvis du har spørsmål. Visningen avholdes bare dersom det er påmeldte. Hvis det ikke er oppsatt visningstidspunkt eller tidspunkt ikke passer, kontakt megler.
VisningspåmeldingOm boligen
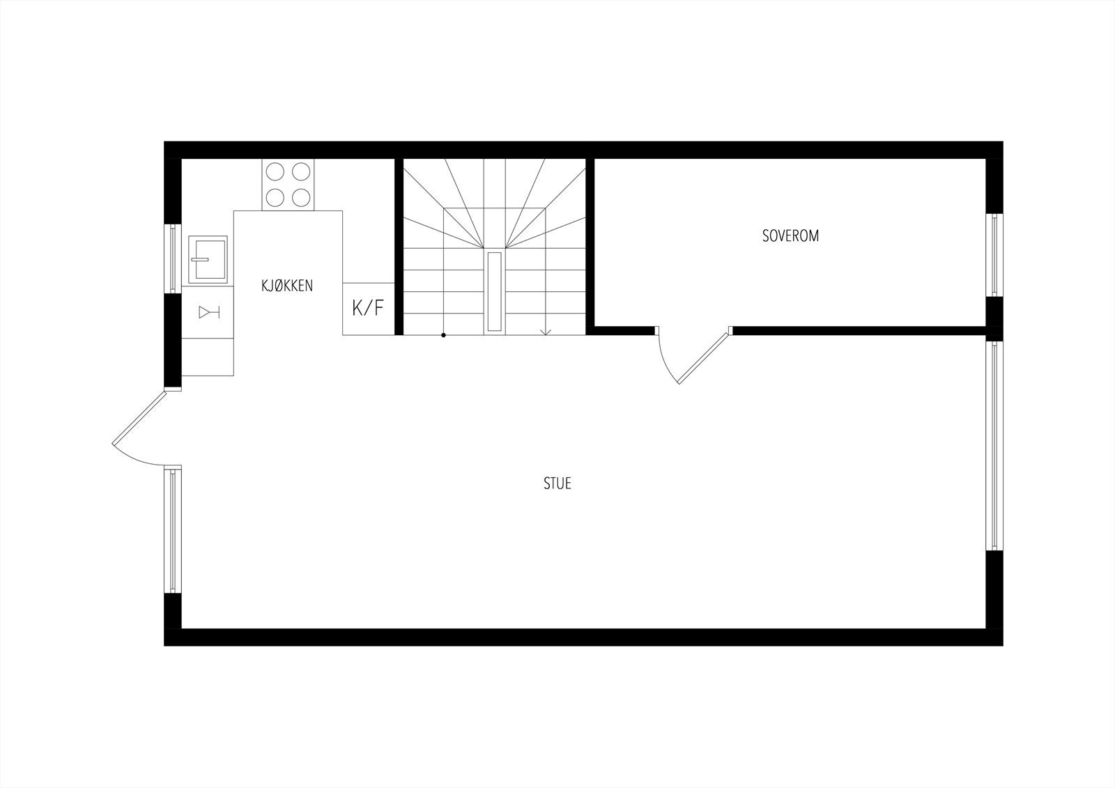
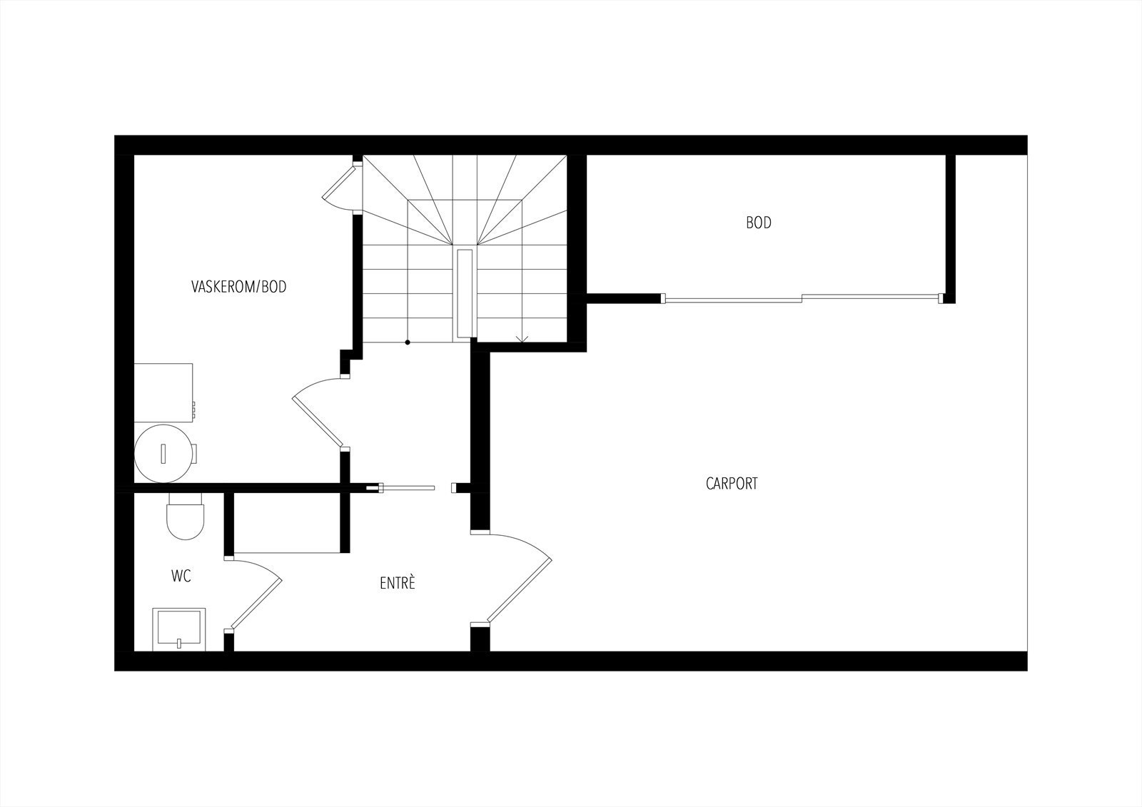
Moderne rekkehus over tre plan med attraktiv og familievennlig beliggenhet på Jåsund. Her bor du nær sjøen med umiddelbar tilgang til flotte turmuligheter med kyststi. I nærområdet har man bla. strand, volleyballbane, bålhus, treningspark og lekeplass. Det er gangavstand til barnehage, dagligvare og bussholdeplass. Det planlegges ny barneskole i området, noe som i fremtiden vil gi kort vei til skole. Boligen har et lettstelt uteområde med stor terrasse og bed. Underet. har flislagt entré med varme, skyvedørsgarderobe, vaskerom og gjestetoalett. I 1 et. en delikat, lys stue/kjøkken-løsning med store vindusflater og 1. soverom. Kjøkkenet er i klassisk hvit utførelse med integrerte hvitevarer. Loftet. har loftstue med veluxvindu, 2 soverom og et lekkert bad med dusjnisje og moderne innredning
NB: Knappen for å vise hele beskrivelsen har kun en visuell effekt.
NB: Knappen for å vise hele beskrivelsen har kun en visuell effekt.
Salgsoppgaven beskriver vesentlig og lovpålagt informasjon om eiendommen
Se komplett salgsoppgaveNyttige lenker
Nærområdet
EiendomsMegler 1 Sola
En del av Sparebank 1 Sør-Norge
Annonseinformasjon
| FINN-kode | 443524103 |
|---|---|
| Sist endret | 29. des. 2025 10:48 |
| Referanse | 2210250154 |
Annonsene kan være mangelfulle i forhold til lovpålagt opplysningsplikt. Før bindende avtale inngås oppfordres interessenter til å innhente komplett informasjon fra meglerforetaket, selger eller utleier.
































