Bildegalleri

Velkommen til Gavlavegen 5- Presentert av Eiendomsmegler 1 v/ Ingeborg Gangsøy Pedersen. Foto: Vestbris
Romslig og velholdt familiebolig over to plan - Garasje - Praktisk planløsning - 4 soverom - Pent opparbeidet tomt!
Prisantydning3 990 000 kr
Nøkkelinfo
- Boligtype
- Enebolig
- Eieform
- Eier (Selveier)
- Soverom
- 4
- Internt bruksareal
- 194 m² (BRA-i)
- Bruksareal
- 194 m²
- Byggeår
- 1971
- Energimerking
- F - Gul
- Rom
- 5
- Tomteareal
- 995 m² (eiet)
Fasiliteter
Aircondition
Balkong/Terrasse
Barnevennlig
Garasje/P-plass
Hage
Kjæledyr tillatt
Peis/Ildsted
Rolig
Visning
tirsdag, 06. januar
16:00 – 17:00
Ønsker du å delta på visningen ber vi deg melde deg på slik at vi vet at du kommer. Da kan vi bistå alle best mulig og gi deg tiden du trenger på visningen. Kontakt gjerne megler før visning hvis du har spørsmål. Visningen avholdes bare dersom det er påmeldte. Hvis det ikke er oppsatt visningstidspunkt eller tidspunkt ikke passer, kontakt megler.
VisningspåmeldingOm boligen
Velkommen til Gavlavegen 5, en svært kjekk familiebolig med garasje, praktisk og familievennlig planløsning og pent opparbeidet tomt.
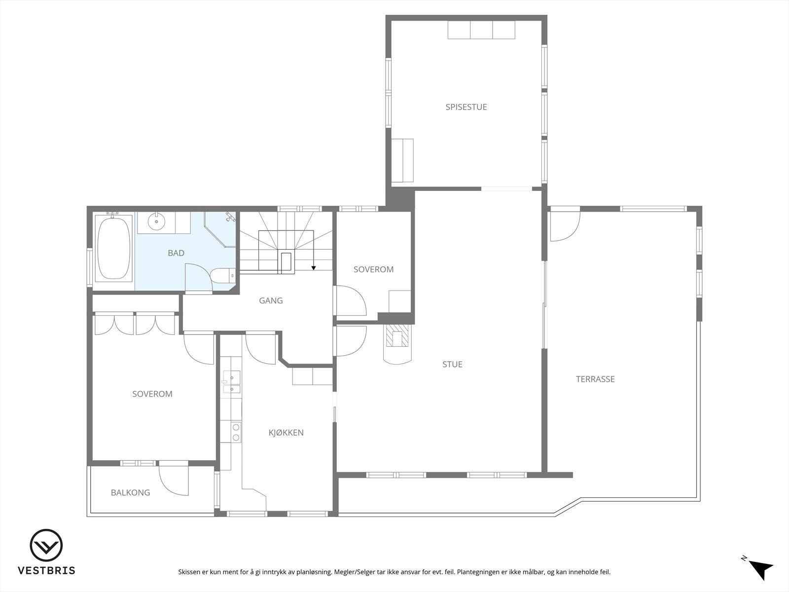
Boligen er over to plan og inneholder:
Underetasje: Hall, soverom, kjellerstue/ soverom, baderom og vaskerom med bi- inngang og tilhørende boder.
1. etasje: Gang, soverom, hovedsoverom med utgang til balkong, baderom, kjøkken og stue med utgang til terrasse.
Boligen fremstår som fint vedlikeholdt og det er utført flere oppgraderende tiltak siden byggeår.
Eiendommen ligger rolig og barnevennlig til uten gjennomgangstrafikk. Fra boligen tar det ca. 5 min i bil til skole og idrettsanlegg, ca. 5 minutter i bil til dagligvare og ca. 2 minutter til Espira barnehage. Torvastad byr på flere flotte turløyper, i tillegg til populære Minigolfen Familiepark.
Boligen er over to plan og inneholder:
Underetasje: Hall, soverom, kjellerstue/ soverom, baderom og vaskerom med bi- inngang og tilhørende boder.
1. etasje: Gang, soverom, hovedsoverom med utgang til balkong, baderom, kjøkken og stue med utgang til terrasse.
Boligen fremstår som fint vedlikeholdt og det er utført flere oppgraderende tiltak siden byggeår.
Eiendommen ligger rolig og barnevennlig til uten gjennomgangstrafikk. Fra boligen tar det ca. 5 min i bil til skole og idrettsanlegg, ca. 5 minutter i bil til dagligvare og ca. 2 minutter til Espira barnehage. Torvastad byr på flere flotte turløyper, i tillegg til populære Minigolfen Familiepark.
NB: Knappen for å vise hele beskrivelsen har kun en visuell effekt.
NB: Knappen for å vise hele beskrivelsen har kun en visuell effekt.
Salgsoppgaven beskriver vesentlig og lovpålagt informasjon om eiendommen
Se komplett salgsoppgaveNyttige lenker
Nærområdet
EiendomsMegler 1 Karmøy
En del av Sparebank 1 Sør-Norge
Annonseinformasjon
| FINN-kode | 443520672 |
|---|---|
| Sist endret | 29. des. 2025 07:32 |
| Referanse | 2502250102 |
Annonsene kan være mangelfulle i forhold til lovpålagt opplysningsplikt. Før bindende avtale inngås oppfordres interessenter til å innhente komplett informasjon fra meglerforetaket, selger eller utleier.


























































