Bildegalleri

Velkommen til Aaengveien 19 - en meget tiltalende leilighet beliggende i fantastiske omgivelser i Fagerlia! Foto: Harald Wanvik v/interiørfoto
Solgt
Fagerlia
Delikat 3-roms i veletablert, skjermet område |Gåavstand til sentrum |Stor terrasse |Fantastisk utsikt |Rikelig bodareal
Prisantydning4 390 000 kr
Nøkkelinfo
- Boligtype
- Leilighet
- Eieform
- Andel
- Soverom
- 2
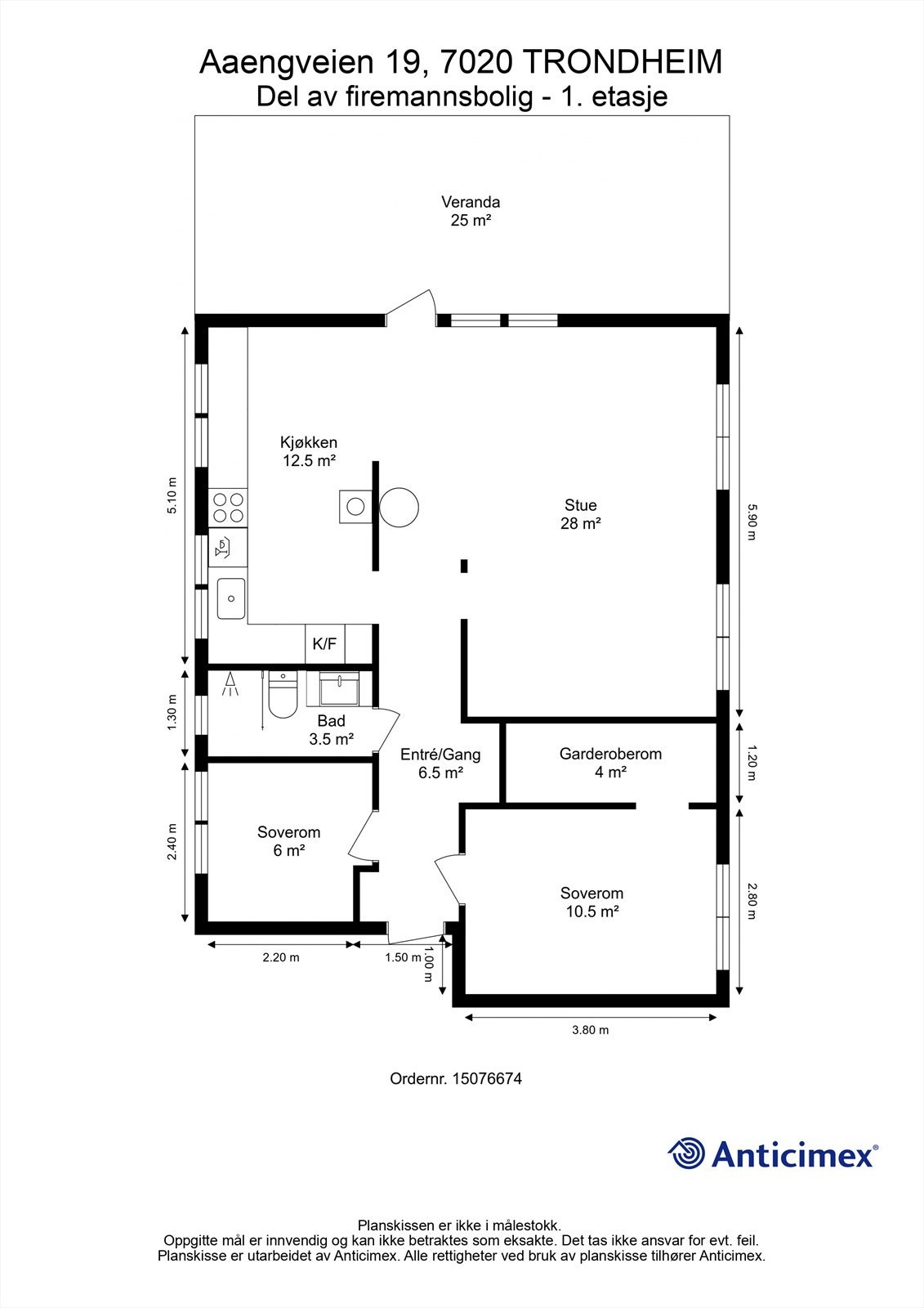
- Internt bruksareal
- 75 m² (BRA-i)
- Bruksareal
- 88 m²
- Eksternt bruksareal
- 13 m² (BRA-e)
- Balkong/Terrasse
- 25 m² (TBA)
- Etasje
- 1
- Byggeår
- 1955
- Energimerking
- E - Oransje
- Rom
- 3
- Tomteareal
- 70 476 m² (eiet)
Fasiliteter
Balkong/Terrasse
Barnevennlig
Bredbåndstilknytning
Kjæledyr tillatt
Ingen gjenboere
Kabel-TV
Offentlig vann/kloakk
Peis/Ildsted
Rolig
Sentralt
Utsikt
Turterreng
Lademulighet
Om boligen
Velkommen til Aaengveien 19 - en meget tiltalende leilighet beliggende i fantastiske omgivelser på Møllehaugen/Fagerlia! Leiligheten ligger sentralt og rolig til uten gjennomgangstrafikk, og har skjermet felles hagedel som grenser til bymarka og et hav av turstier.
Verdt å merke seg:
Verdt å merke seg:
- Betydelig renovert med bla. lyd- og etterisolering, oppgradering av flater og bad samt ny kjøkkeninnredning
- Åpen stue- og kjøkkenløsning med gode møbleringsmuligheter
- Veranda på 25 kvm med nydelig utsikt mot fjorden og byen
- To romslige soverom
- Delikat baderom med gulvvarme
- To boder på til sammen 13 kvm samt felles sykkelbod. Bod/garderobe i leiligheten på 4 kvm
- Gode kollektivmuligheter, kun ca 10 min med buss inn til sentrum
- Kort vei til bla. Ilsvika og Theisendammen
NB: Knappen for å vise hele beskrivelsen har kun en visuell effekt.
NB: Knappen for å vise hele beskrivelsen har kun en visuell effekt.
Salgsoppgaven beskriver vesentlig og lovpålagt informasjon om eiendommen
Se komplett salgsoppgaveNyttige lenker
Nærområdet
Krogsveen Trondheim
Verdien av en god megler.
Annonseinformasjon
| FINN-kode | 443176034 |
|---|---|
| Sist endret | 22. feb. 2026 16:44 |
| Referanse | KR68.25143 |
Annonsene kan være mangelfulle i forhold til lovpålagt opplysningsplikt. Før bindende avtale inngås oppfordres interessenter til å innhente komplett informasjon fra meglerforetaket, selger eller utleier.
























