Bildegalleri

Velkommen til Nedre Ila 7. Attraktiv & lettstelt 2-roms i 3.etg | Bygg fra 2006 | Svært god takhøyde | Heis | Egen P-plass med ladepunkt i kjeller!
Ila
Attraktiv & lettstelt 2-roms i 3.etg | Bygg fra 2006 | Svært god takhøyde | Heis | Egen P-plass med ladepunkt i kjeller!
Prisantydning2 990 000 kr
Nøkkelinfo
- Boligtype
- Leilighet
- Eieform
- Andel
- Soverom
- 1
- Internt bruksareal
- 47 m² (BRA-i)
- Bruksareal
- 52 m²
- Eksternt bruksareal
- 5 m² (BRA-e)
- Etasje
- 3
- Byggeår
- 1930
- Energimerking
- D - Mørkegrønn
- Rom
- 2
- Tomteareal
- 578 m² (eiet)
Fasiliteter
Barnevennlig
Balkong/Terrasse
Garasje/P-plass
Kabel-TV
Fiskemulighet
Heis
Offentlig vann/kloakk
Parkett
Turterreng
Vaktmester-/vektertjeneste
Sentralt
Bredbåndstilknytning
Moderne
Rolig
Bademulighet
Lademulighet
Balansert ventilasjon
Visning
onsdag, 07. januar
14:30 – 15:15
Våre visninger har påmelding. Dette gjør vi for å kunne yte bedre service for våre kunder. Verdifullt for boligkjøper og for oss. Vi anbefaler at salgsoppgaven lastes ned digitalt før visning, og ring oss gjerne på forhånd for spørsmål om boligen. Passer ikke angitt tidspunkt, ta kontakt så finner vi en løsning. Skulle det mot formodning ikke være påmeldte til angitt visningstidspunkt vil ikke visning bli gjennomført.
Om boligen
Visningstidspunkt må avtales direkte med megler
Velkommen til Nedre Ila 7. Denne lettstelte leiligheten i 3.etasje kan by på blant annet:
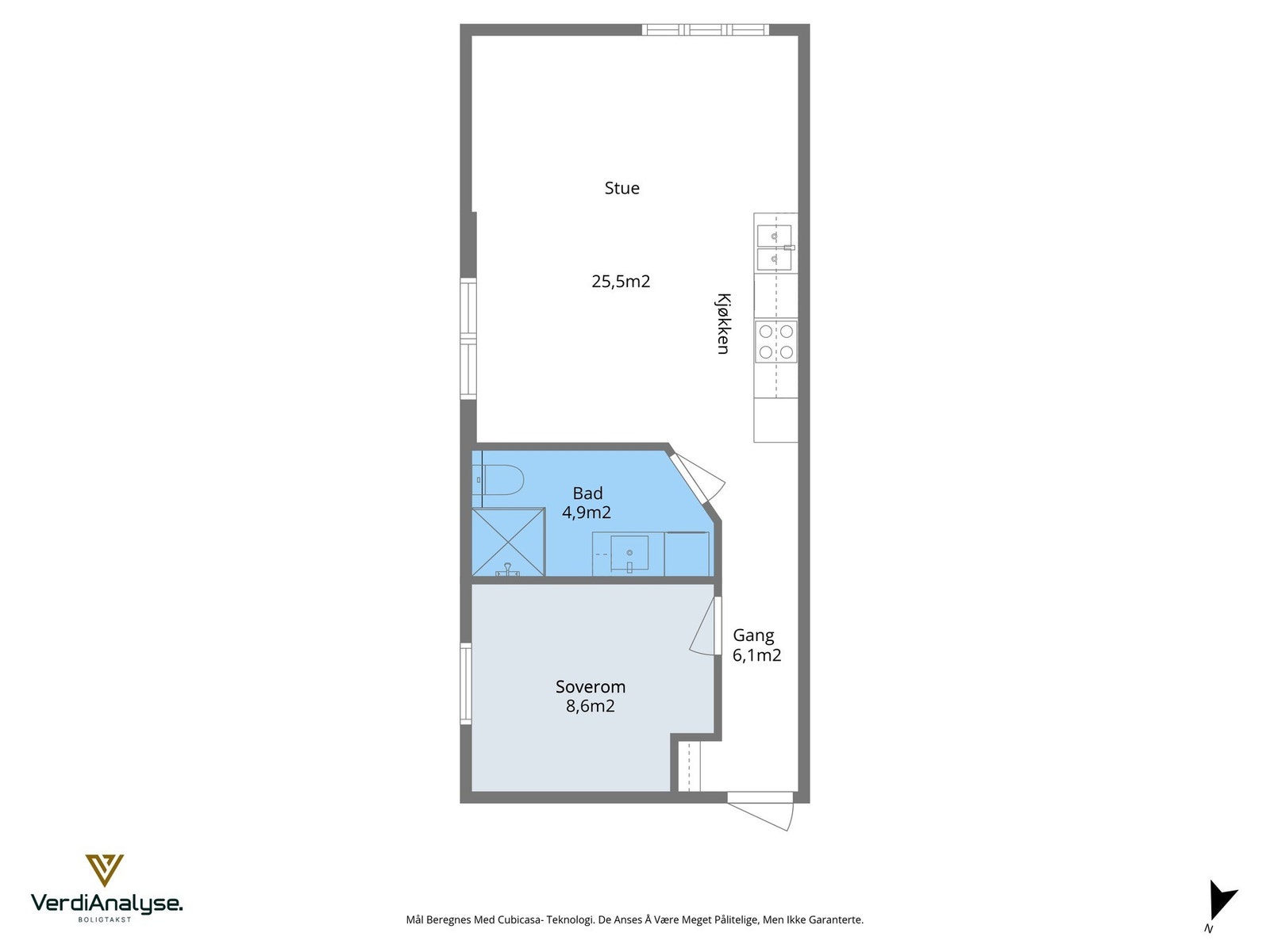
- Åpen løsning mellom kjøkken & stue på 26 kvm
- Klassisk kjøkken fra byggeår med integrerte hvitevarer (TG1)
- Lyst flislagt bad fra byggeår med varme i gulv & opplegg til vaskemaskin
- Soverom på 9 kvm med god plass til både dobbeltseng & nattbord
- Fjernvarme som oppvarmingskilde inkludert i månedlige felleskostnader
- Egen parkeringsplass i felles oppvarmet P-kjeller klargjort for elbillading
- Egen sportsbod i kjeller på ca. 5 kvm
- Felles takterrasse med gode sol- & utsiktsforhold
- Felles stor bakgårdsterrasse med møblement til sommerstid
- Bygg fra 2006 med heis
- Sentral & attraktiv beliggenhet i populære Ila med nærhet til alt sentrum & Bymarka har å by på
Velkommen!
Velkommen til Nedre Ila 7. Denne lettstelte leiligheten i 3.etasje kan by på blant annet:
- Åpen løsning mellom kjøkken & stue på 26 kvm
- Klassisk kjøkken fra byggeår med integrerte hvitevarer (TG1)
- Lyst flislagt bad fra byggeår med varme i gulv & opplegg til vaskemaskin
- Soverom på 9 kvm med god plass til både dobbeltseng & nattbord
- Fjernvarme som oppvarmingskilde inkludert i månedlige felleskostnader
- Egen parkeringsplass i felles oppvarmet P-kjeller klargjort for elbillading
- Egen sportsbod i kjeller på ca. 5 kvm
- Felles takterrasse med gode sol- & utsiktsforhold
- Felles stor bakgårdsterrasse med møblement til sommerstid
- Bygg fra 2006 med heis
- Sentral & attraktiv beliggenhet i populære Ila med nærhet til alt sentrum & Bymarka har å by på
Velkommen!
NB: Knappen for å vise hele beskrivelsen har kun en visuell effekt.
NB: Knappen for å vise hele beskrivelsen har kun en visuell effekt.
Salgsoppgaven beskriver vesentlig og lovpålagt informasjon om eiendommen
Se komplett salgsoppgaveNyttige lenker
Nærområdet
EiendomsMegler 1 Trondheim sentrum, Søndre gate
Vi loser deg trygt gjennom hele boligsalget
Annonseinformasjon
| FINN-kode | 442979500 |
|---|---|
| Sist endret | 28. des. 2025 16:30 |
| Referanse | 39250228 |
Annonsene kan være mangelfulle i forhold til lovpålagt opplysningsplikt. Før bindende avtale inngås oppfordres interessenter til å innhente komplett informasjon fra meglerforetaket, selger eller utleier.


























