Bildegalleri

Velkommen til Sørbøbakken 10B presentert av Eiendomsmegler Norge v/ Veronica Berge Olsen.
Sørbø
Pen og innbydende leilighet med stor terrasse og flott utsikt - Gode solforhold - Parkering
Prisantydning3 190 000 kr
Nøkkelinfo
- Boligtype
- Leilighet
- Eieform
- Eier (Selveier)
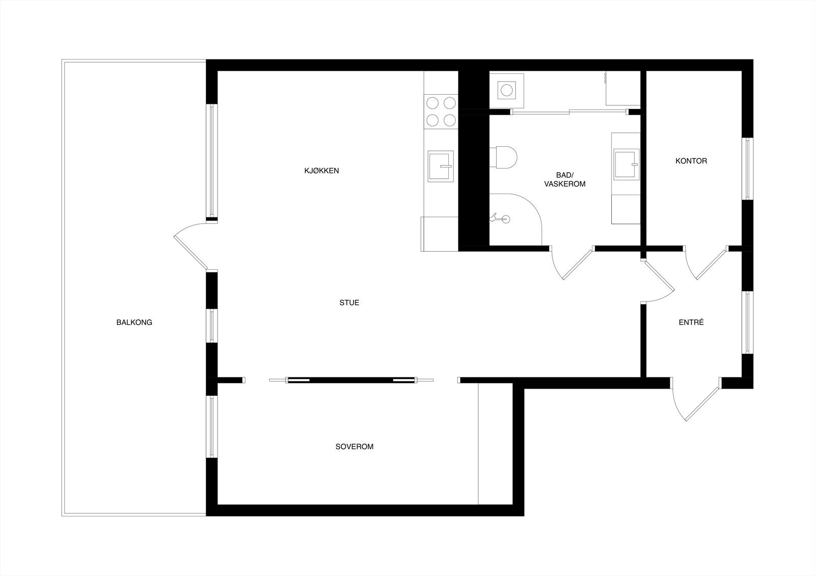
- Soverom
- 1
- Internt bruksareal
- 51 m² (BRA-i)
- Bruksareal
- 56 m²
- Eksternt bruksareal
- 5 m² (BRA-e)
- Balkong/Terrasse
- 40 m² (TBA)
- Etasje
- 1
- Byggeår
- 2010
- Energimerking
- C - Rød
- Rom
- 2
- Tomteareal
- 694 m² (eiet)
Fasiliteter
Balkong/Terrasse
Garasje/P-plass
Heis
Sentralt
Utsikt
Turterreng
Visning
mandag, 19. januar
16:00 – 17:30
Eiendomsmegler Norge sine visninger har påmelding. Påmelding gjøres enkelt ved å benytte knappen under. Ta kontakt med megler dersom oppsatt tidspunkt ikke passer. Det vil ikke bli avholdt visning uten påmelding, frist for påmelding er senest kl. 12.00 på visningsdagen. Husk å laste ned salgsoppgaven digitalt før visning. Velkommen til en hyggelig visning!
VisningspåmeldingOm boligen
Velkommen til denne pene og innbydende leiligheten med attraktiv beliggenhet og kort vei til Sandnes sentrum, flotte turområder samt gode buss- og togforbindelser.
Leiligheten fremstår moderne og lun med overflater malt i 2024 og ny enstavs laminat lagt samme år. Praktisk og gjennomtenkt planløsning gir god romfølelse og en behagelig atmosfære. Store vindusflater sørger for en romslig følelse, ypperlige lysforhold i tillegg til at man kommer tett på utsikten.
Prikken over i-en er virkelig den romslige terrassen på hele 40 kvm, et sjeldent gode med gode solforhold og flott utsikt over byen. Her ligger alt til rette for hyggelige sommerdager, avslapning og sosiale sammenkomster.
Parkering i parkeringshall og ekstern bod medfølger.
En skikkelig kjekk og fin leilighet som må oppleves!
Leiligheten fremstår moderne og lun med overflater malt i 2024 og ny enstavs laminat lagt samme år. Praktisk og gjennomtenkt planløsning gir god romfølelse og en behagelig atmosfære. Store vindusflater sørger for en romslig følelse, ypperlige lysforhold i tillegg til at man kommer tett på utsikten.
Prikken over i-en er virkelig den romslige terrassen på hele 40 kvm, et sjeldent gode med gode solforhold og flott utsikt over byen. Her ligger alt til rette for hyggelige sommerdager, avslapning og sosiale sammenkomster.
Parkering i parkeringshall og ekstern bod medfølger.
En skikkelig kjekk og fin leilighet som må oppleves!
NB: Knappen for å vise hele beskrivelsen har kun en visuell effekt.
NB: Knappen for å vise hele beskrivelsen har kun en visuell effekt.
Salgsoppgaven beskriver vesentlig og lovpålagt informasjon om eiendommen
Se komplett salgsoppgaveNyttige lenker
Nærområdet
Eiendomsmegler Norge Stavanger
Det viktigste stedet i Norge er der du bor
Annonseinformasjon
| FINN-kode | 442888165 |
|---|---|
| Sist endret | 09. jan. 2026 11:56 |
| Referanse | 20250200 |
Annonsene kan være mangelfulle i forhold til lovpålagt opplysningsplikt. Før bindende avtale inngås oppfordres interessenter til å innhente komplett informasjon fra meglerforetaket, selger eller utleier.





























