Bildegalleri

Foto: Nathan W. Lediard.
Surnadal
Innholdsrik enebolig på Bøvra med god solgang, flott utsikt og endetomt.
Prisantydning1 890 000 kr
Nøkkelinfo
- Boligtype
- Enebolig
- Eieform
- Eier (Selveier)
- Soverom
- 4
- Internt bruksareal
- 189 m² (BRA-i)
- Bruksareal
- 209 m²
- Eksternt bruksareal
- 20 m² (BRA-e)
- Balkong/Terrasse
- 20 m² (TBA)
- Byggeår
- 1958
- Energimerking
- G - Gul
- Rom
- 7
- Tomteareal
- 1 308 m² (eiet)
Fasiliteter
Barnevennlig
Balkong/Terrasse
Garasje/P-plass
Offentlig vann/kloakk
Ingen gjenboere
Peis/Ildsted
Turterreng
Utsikt
Rolig
Visning
torsdag, 15. januar
17:00 – 18:00
Våre visninger har påmelding. Dette gjør vi for å kunne yte bedre service for våre kunder. Verdifullt for boligkjøper og for oss. Vi anbefaler at salgsoppgaven lastes ned digitalt før visning, og ring oss gjerne på forhånd for spørsmål om boligen. Passer ikke angitt tidspunkt, ta kontakt så finner vi en løsning. Skulle det mot formodning ikke være påmeldte til angitt visningstidspunkt vil ikke visning bli gjennomført.
Om boligen
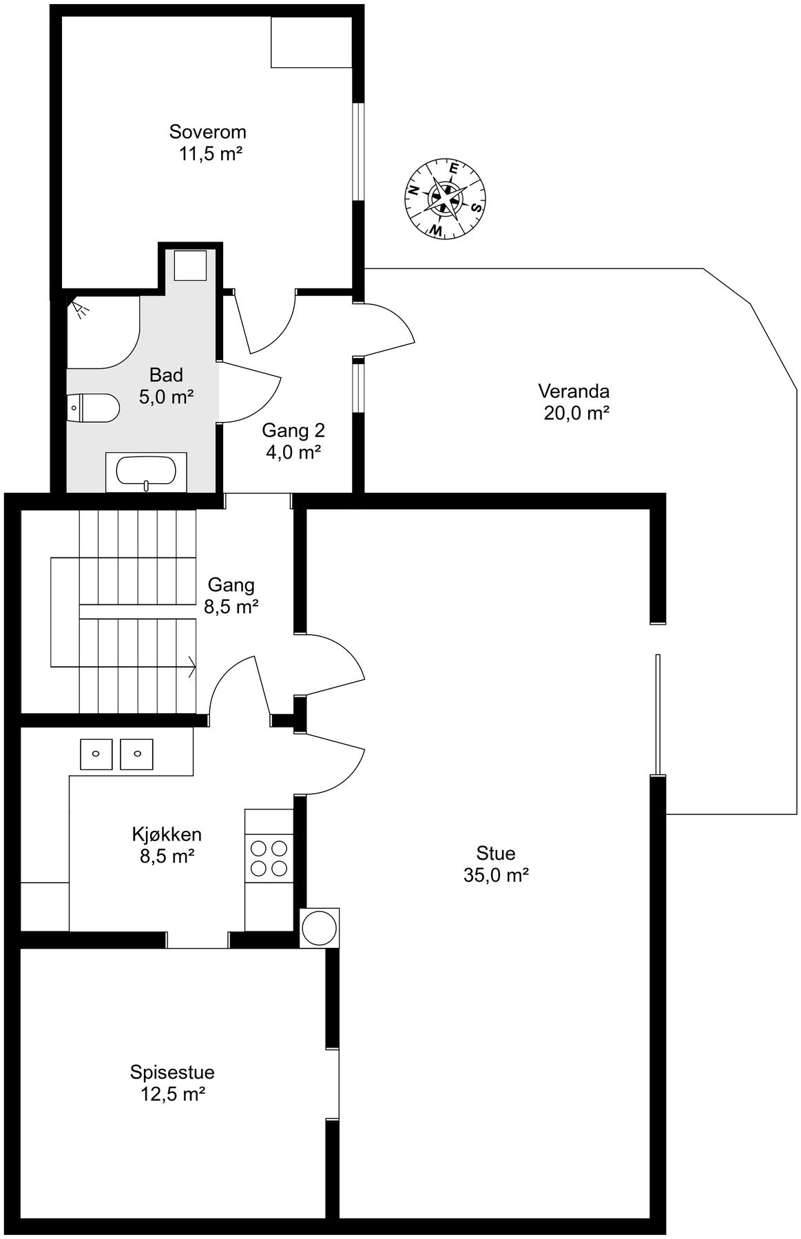
Innholdsrik enebolig på Bøvra med god solgang, flott utsikt og endetomt. Inneholder bl. a. to bad, kjøkken, stue med hybelkjøkken, spisestue, hovedstue og fire soverom. Hovedbad oppgradert i 2016. Flere rom med finish/lett oppussing av nåværende eier. Ny varmepumpe. Sørvendt og romslig veranda som utnytter den flotte utsikten. Nærhet til Kalkstranda. Garasje sammenbygd med bolig. Noe oppgradering må påberegnes.
NB: Knappen for å vise hele beskrivelsen har kun en visuell effekt.
NB: Knappen for å vise hele beskrivelsen har kun en visuell effekt.
Salgsoppgaven beskriver vesentlig og lovpålagt informasjon om eiendommen
Se komplett salgsoppgaveNyttige lenker
Nærområdet
EiendomsMegler 1 Sunndalsøra
Vi loser deg trygt gjennom hele boligsalget
Annonseinformasjon
| FINN-kode | 442864460 |
|---|---|
| Sist endret | 22. des. 2025 10:04 |
| Referanse | 21250094 |
Annonsene kan være mangelfulle i forhold til lovpålagt opplysningsplikt. Før bindende avtale inngås oppfordres interessenter til å innhente komplett informasjon fra meglerforetaket, selger eller utleier.






















































