Bildegalleri

EiendomsMegler 1 v/Sondre Jakobsen ønsker velkommen til en sentralt beliggende enebolig med utleiemuligheter i Skogveien 21!
Enebolig med gode utleiemuligheter og sentral beliggenhet | Integrert garasje | Balkong | Utebod
Prisantydning3 400 000 kr
Nøkkelinfo
- Boligtype
- Enebolig
- Eieform
- Eier (Selveier)
- Soverom
- 3
- Internt bruksareal
- 174 m² (BRA-i)
- Bruksareal
- 181 m²
- Balkong/Terrasse
- 26 m² (TBA)
- Byggeår
- 1953
- Rom
- 5
- Tomteareal
- 1 083 m² (eiet)
Fasiliteter
Barnevennlig
Balkong/Terrasse
Garasje/P-plass
Offentlig vann/kloakk
Peis/Ildsted
Turterreng
Sentralt
Om boligen
EiendomsMegler 1 v/Sondre Jakobsen ønsker dere hjertelig velkommen til Skogveien 21 og denne trivelige eneboligen med sentral beliggenhet i Harstad! Her bor du i etablert og familievennlig boligområde med nærhet til sentrum, skoler, barnehager og fine turmuligheter i Folkeparken. Det er også gangavstand til Harstad Sykkelpark som er perfekt for småbarnsfamilier.
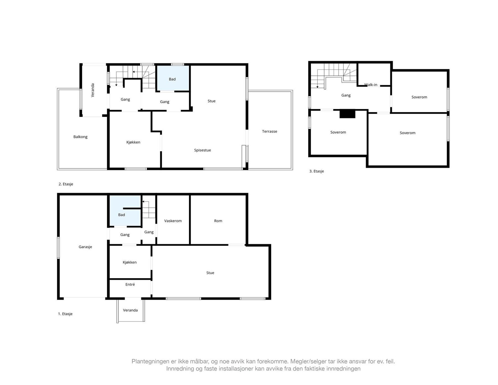
Eneboligen fra 1953 strekker seg over tre plan, og har utleiedel i underetasjen. Hovedetasjen inneholder vindfang, gang, stue, kjøkken og bad.
I loftsetasjen finner du gang og tre soverom. Underetasjen inneholder gang og vaskerom tilhørende hoveddelen, samt entré, stue, kjøkken, soverom, bad og gang tilhørende utleiedelen. Boligen fremstår med helt grei standard ut ifra byggeår. Utendørs er det to terrasser, vendt mot vest og øst. Hage med plen, busker og trær. Parkering på asfaltert gårdsplass, og for én bil i integrert garasje.
Velkommen til hyggelig visning!
Eneboligen fra 1953 strekker seg over tre plan, og har utleiedel i underetasjen. Hovedetasjen inneholder vindfang, gang, stue, kjøkken og bad.
I loftsetasjen finner du gang og tre soverom. Underetasjen inneholder gang og vaskerom tilhørende hoveddelen, samt entré, stue, kjøkken, soverom, bad og gang tilhørende utleiedelen. Boligen fremstår med helt grei standard ut ifra byggeår. Utendørs er det to terrasser, vendt mot vest og øst. Hage med plen, busker og trær. Parkering på asfaltert gårdsplass, og for én bil i integrert garasje.
Velkommen til hyggelig visning!
NB: Knappen for å vise hele beskrivelsen har kun en visuell effekt.
NB: Knappen for å vise hele beskrivelsen har kun en visuell effekt.
Salgsoppgaven beskriver vesentlig og lovpålagt informasjon om eiendommen
Se komplett salgsoppgaveNyttige lenker
Nærområdet
EiendomsMegler 1 Harstad
Vi loser deg trygt gjennom hele boligsalget
Annonsene kan være mangelfulle i forhold til lovpålagt opplysningsplikt. Før bindende avtale inngås oppfordres interessenter til å innhente komplett informasjon fra meglerforetaket, selger eller utleier.























