Bildegalleri

Velkommen til Hevingen 60 B .
Hevingen
Pen selveierleilighet på ett plan - 3 soverom - Carport - Tilbaketrukket og usjenert beliggenhet
Prisantydning3 950 000 kr
Nøkkelinfo
- Boligtype
- Leilighet
- Eieform
- Eier (Selveier)
- Soverom
- 3
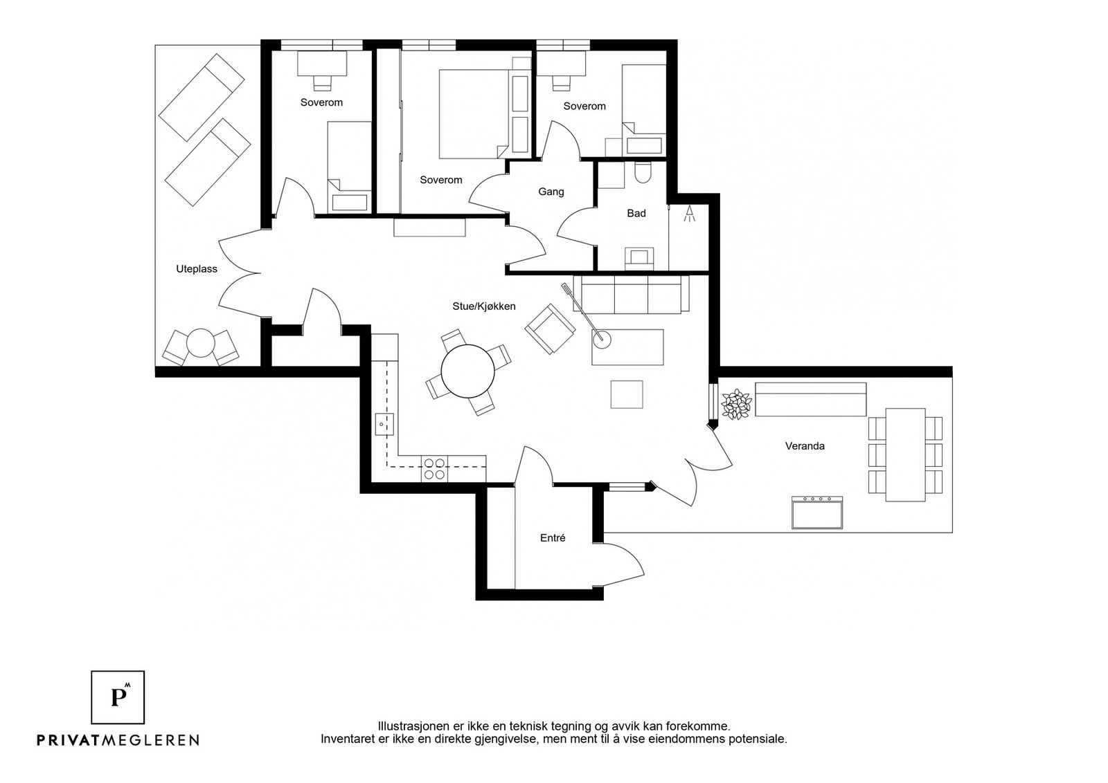
- Internt bruksareal
- 88 m² (BRA-i)
- Bruksareal
- 88 m²
- Eksternt bruksareal
- 5 m² (BRA-e)
- Balkong/Terrasse
- 38 m² (TBA)
- Etasje
- 1
- Byggeår
- 1990
- Energimerking
- D - Rød
- Rom
- 4
- Tomteareal
- 2 546 m² (eiet)
Fasiliteter
Balkong/Terrasse
Garasje/P-plass
Ingen gjenboere
Parkett
Turterreng
Aircondition
Bredbåndstilknytning
Rolig
Balansert ventilasjon
Visning
mandag, 12. januar
17:00 – 18:00
Velkommen til visning!
Alle våre visninger har påmelding. På denne måten sikrer vi at megler har god oversikt og tid til å imøtekomme alle interessenter på beste måte. Dette er veldig verdifullt for boligkjøpere og for oss. Det er enkelt å melde seg på, og du kan like enkelt melde deg av. Kontakt også gjerne megler i forkant av visning dersom du har spørsmål.
Om boligen
Hevingen er et populært boområde ca 6 km fra Sarpsborg sentrum. Boligen ligger nær Skjeberg Golfklubb og området har lysløype og flotte turmuligheter. Fra Hevingen er det gangvei tilknyttet boligområdene både på Kløvningsten og Fjelldal.
Dette er en lys og tiltalende selveierleilighet på ett plan som holder gjennomført og helhetlig standard. Den er effektivt innredet, og har fine uteplasser på begge sider av huset. Bygningen ble ombygget i 2018, og ble da innredet med 3 nye leiligheter. Den store tomten gir beboerne godt med biloppstillingsplasser, og alle har egen carport og sportsbod. Sameiet ligger tilbaketrukket fra veien, og det er tilrettelagt for å kreve begrenset vedlikehold.
Velkommen på visning!
Dette er en lys og tiltalende selveierleilighet på ett plan som holder gjennomført og helhetlig standard. Den er effektivt innredet, og har fine uteplasser på begge sider av huset. Bygningen ble ombygget i 2018, og ble da innredet med 3 nye leiligheter. Den store tomten gir beboerne godt med biloppstillingsplasser, og alle har egen carport og sportsbod. Sameiet ligger tilbaketrukket fra veien, og det er tilrettelagt for å kreve begrenset vedlikehold.
Velkommen på visning!
NB: Knappen for å vise hele beskrivelsen har kun en visuell effekt.
NB: Knappen for å vise hele beskrivelsen har kun en visuell effekt.
Salgsoppgaven beskriver vesentlig og lovpålagt informasjon om eiendommen
Se komplett salgsoppgaveNyttige lenker
Nærområdet

PrivatMegleren Sarpsborg
Kun det beste på dine vegne
Annonseinformasjon
| FINN-kode | 442553647 |
|---|---|
| Sist endret | 03. jan. 2026 16:19 |
| Referanse | 193250244 |
Annonsene kan være mangelfulle i forhold til lovpålagt opplysningsplikt. Før bindende avtale inngås oppfordres interessenter til å innhente komplett informasjon fra meglerforetaket, selger eller utleier.
























