Bildegalleri

Aktiv Eiendomsmegling v/ Gunnar A. Kjønnøy presenterer Skjærvaveien 33A!
Halvpart av tomannsbolig med attraktiv beliggenhet på Innlandet - panoramautsikt og gode solforhold
Prisantydning2 650 000 kr
Nøkkelinfo
- Boligtype
- Tomannsbolig
- Eieform
- Eier (Selveier)
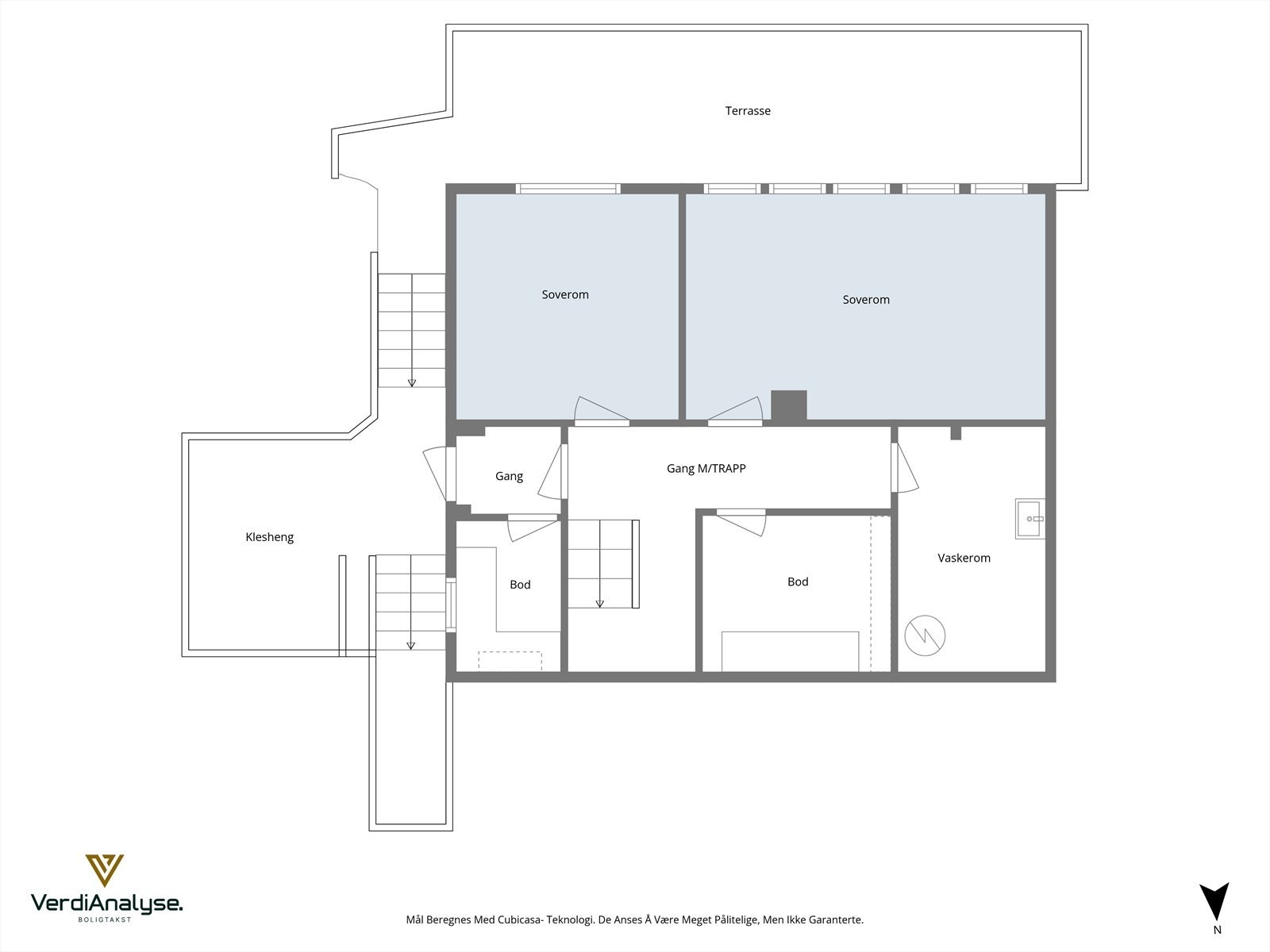
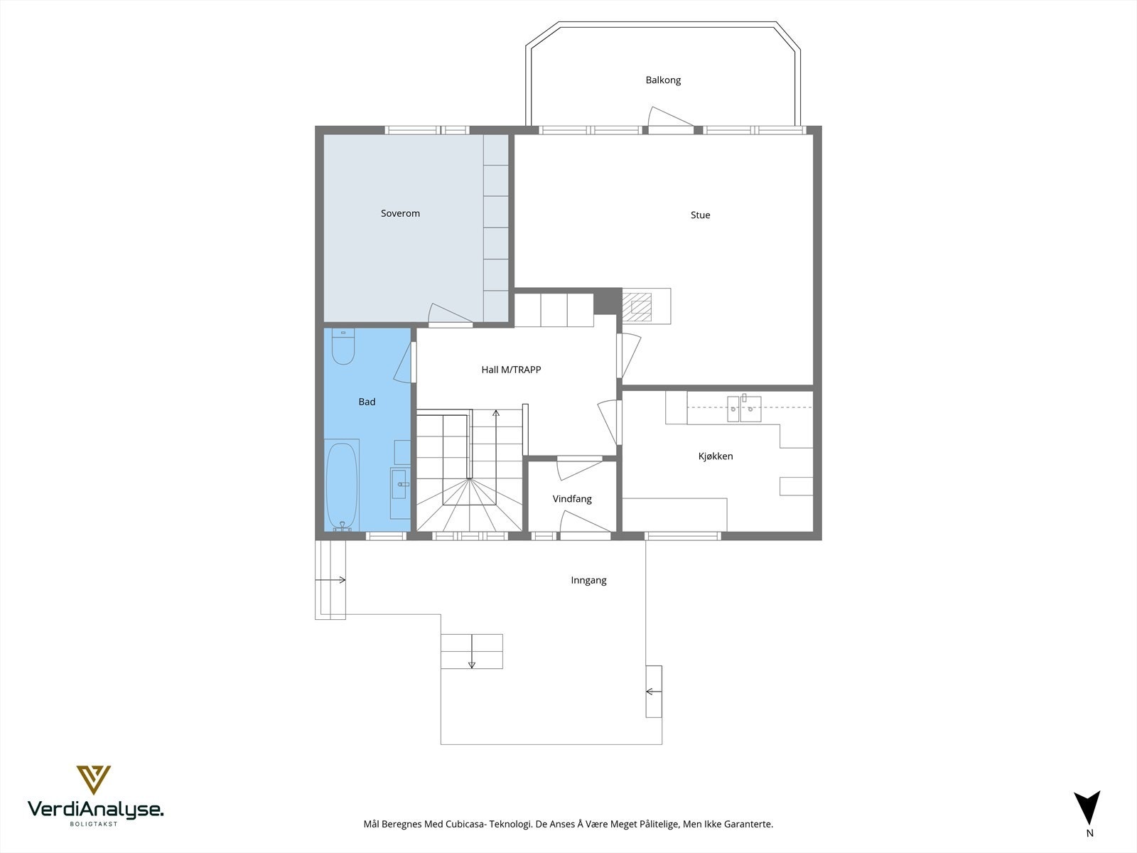
- Soverom
- 3
- Internt bruksareal
- 125 m² (BRA-i)
- Bruksareal
- 125 m²
- Balkong/Terrasse
- 32 m² (TBA)
- Byggeår
- 1981
- Energimerking
- G - Oransje
- Rom
- 4
- Tomteareal
- 360 m² (eiet)
Fasiliteter
Balkong/Terrasse
Barnevennlig
Offentlig vann/kloakk
Peis/Ildsted
Rolig
Sentralt
Utsikt
Turterreng
Om boligen
Aktiv Eiendomsmegling v/ Gunnar A. Kjønnøy presenterer Skjærvaveien 33A!
En halvpart av tomannsbolig med utsøkt beliggenhet på sydsiden av Innlandet med panoramautsikt over Bolgsvaet. Gode solforhold og fine uteområder. Boligen går over 2 plan og inneholder stue, kjøkken, bad/wc, vaskerom, bodplass og 3 soverom.
Gåavstand til barnehage, skole, dagligvare og byens beste badestrand i Skjærva! Kort spasertur til sentrum med alle fasiliteter.
Velkommen til visning!
En halvpart av tomannsbolig med utsøkt beliggenhet på sydsiden av Innlandet med panoramautsikt over Bolgsvaet. Gode solforhold og fine uteområder. Boligen går over 2 plan og inneholder stue, kjøkken, bad/wc, vaskerom, bodplass og 3 soverom.
Gåavstand til barnehage, skole, dagligvare og byens beste badestrand i Skjærva! Kort spasertur til sentrum med alle fasiliteter.
Velkommen til visning!
NB: Knappen for å vise hele beskrivelsen har kun en visuell effekt.
NB: Knappen for å vise hele beskrivelsen har kun en visuell effekt.
Salgsoppgaven beskriver vesentlig og lovpålagt informasjon om eiendommen
Se komplett salgsoppgaveNærområdet
Aktiv Kristiansund
Annonseinformasjon
| FINN-kode | 442552763 |
|---|---|
| Sist endret | 06. jan. 2026 13:19 |
| Referanse | 1601250107 |
Annonsene kan være mangelfulle i forhold til lovpålagt opplysningsplikt. Før bindende avtale inngås oppfordres interessenter til å innhente komplett informasjon fra meglerforetaket, selger eller utleier.






































