Bildegalleri

Fantastisk stue- og kjøkkenløsning, med masse lys og luft.
Lademoen/Dalen
LYS OG FLOTT 1/4-PART PÅ 108 KVM. Innredet loft med stue, bad og kjk. Solrik balkong på 16,3 kvm. Ildsted. Parkering.
Prisantydning5 290 000 kr
Nøkkelinfo
- Boligtype
- Leilighet
- Eieform
- Eier (Selveier)
- Soverom
- 2
- Internt bruksareal
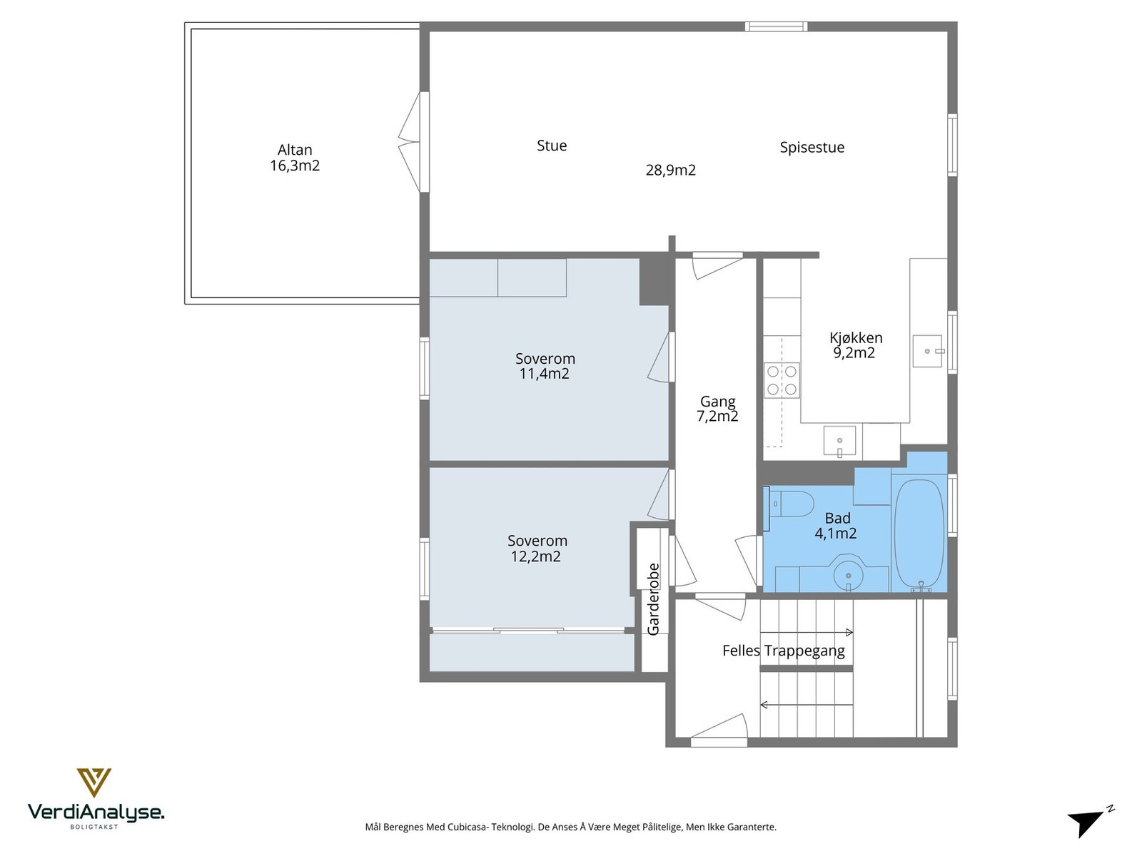
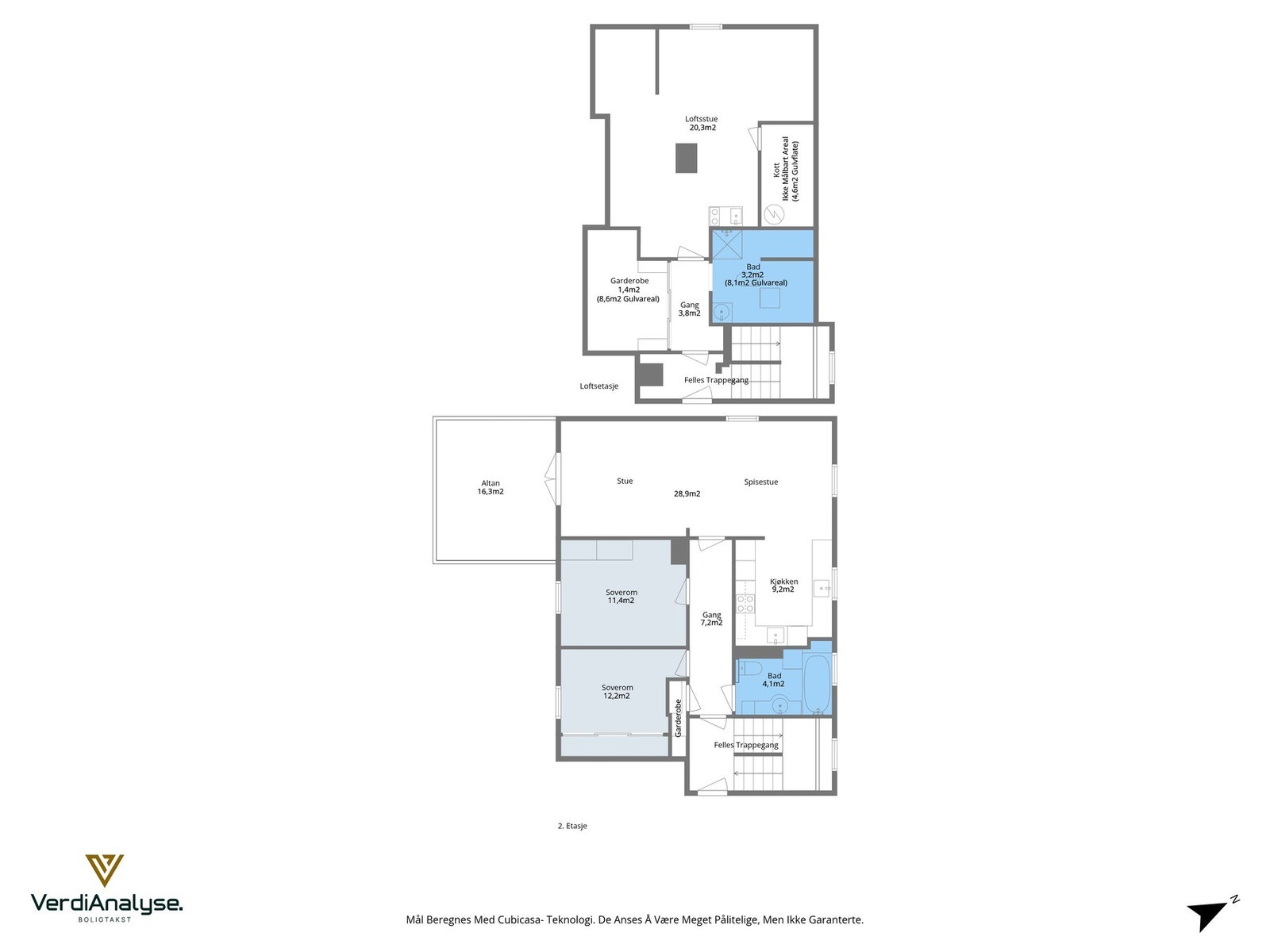
- 108 m² (BRA-i)
- Bruksareal
- 108 m²
- Balkong/Terrasse
- 16 m² (TBA)
- Etasje
- 2
- Byggeår
- 1948
- Energimerking
- G - Oransje
- Rom
- 3
- Tomteareal
- 1 262 m² (eiet)
Fasiliteter
Barnevennlig
Balkong/Terrasse
Garasje/P-plass
Kabel-TV
Offentlig vann/kloakk
Peis/Ildsted
Turterreng
Sentralt
Bredbåndstilknytning
Moderne
Rolig
Om boligen
LYS OG FLOTT 1/4-PART PÅ 108 KVM.
- Fantastisk stue- og kjøkkenløsning. Romslig, med masse lys og luft
- Direkte adkomst til stor, solrik balkong på 16,3 kvm. Koselig, felles hage
- Ildsted gir leiligheten god varme og atmosfære
- God plass til stor spisestue, i tilknytning til kjøkken
- Hvitt, stilrent kjøkken med integrerte hvitevarer
- Romslig størrelse på 9,3 kvm
- Pent flislagt bad. Behagelig gulvvarme. Downlights i himling
- Plass til både vaskemaskin og tørketrommel
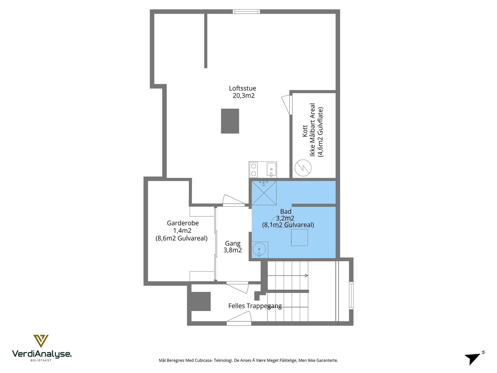
- Innredet loft med ekstra stue, bad og kjøkkenkrok. Adkomst via fellesgang
- Tidligere leid ut for kr. 8.500,- pr. mnd
- Sentralt beliggende, i tilbaketrukne og rolige omgivelser
- Ligger fint til, og balkong vender ut mot et stort og åpent område
- Gang- og sykkelavstand til Sirkus shopping, Solsiden og Midtbyen
- Kort vei til Lade, med flere kjøpesenter, populær tursti og badestrender
NB: Knappen for å vise hele beskrivelsen har kun en visuell effekt.
NB: Knappen for å vise hele beskrivelsen har kun en visuell effekt.
Salgsoppgaven beskriver vesentlig og lovpålagt informasjon om eiendommen
Se komplett salgsoppgaveNyttige lenker
Nærområdet
EiendomsMegler 1 Valentinlyst
Vi loser deg trygt gjennom hele boligsalget
Annonseinformasjon
| FINN-kode | 442532711 |
|---|---|
| Sist endret | 15. jan. 2026 05:03 |
| Referanse | 34250323 |
Annonsene kan være mangelfulle i forhold til lovpålagt opplysningsplikt. Før bindende avtale inngås oppfordres interessenter til å innhente komplett informasjon fra meglerforetaket, selger eller utleier.
































