Bildegalleri

Velkommen til Frogner
Lekker og gjennomgående 3-roms Frogner-leilighet med peis, balkong, garasjeleie og høy standard
Prisantydning12 800 000 kr
Nøkkelinfo
- Boligtype
- Leilighet
- Eieform
- Eier (Selveier)
- Soverom
- 2
- Internt bruksareal
- 95 m² (BRA-i)
- Bruksareal
- 104 m²
- Eksternt bruksareal
- 9 m² (BRA-e)
- Balkong/Terrasse
- 6 m² (TBA)
- Etasje
- 3
- Byggeår
- 1897
- Energimerking
- G - Oransje
- Rom
- 3
- Tomteareal
- 554 m² (eiet)
Fasiliteter
Balkong/Terrasse
Garasje/P-plass
Kabel-TV
Offentlig vann/kloakk
Parkett
Peis/Ildsted
Turterreng
Vaktmester-/vektertjeneste
Fellesvaskeri
Sentralt
Moderne
Visning
søndag, 11. januar
12:30 – 13:30
Velkommen til visning!
Vennligst merk at det kun gjennomføres visninger etter avtale innenfor angitt tidsrom. Ta kontakt for å booke deres tid.
mandag, 12. januar
17:30 – 18:15
Velkommen til visning!
Vennligst merk at det kun gjennomføres visninger etter avtale innenfor angitt tidsrom. Ta kontakt for å booke deres tid.
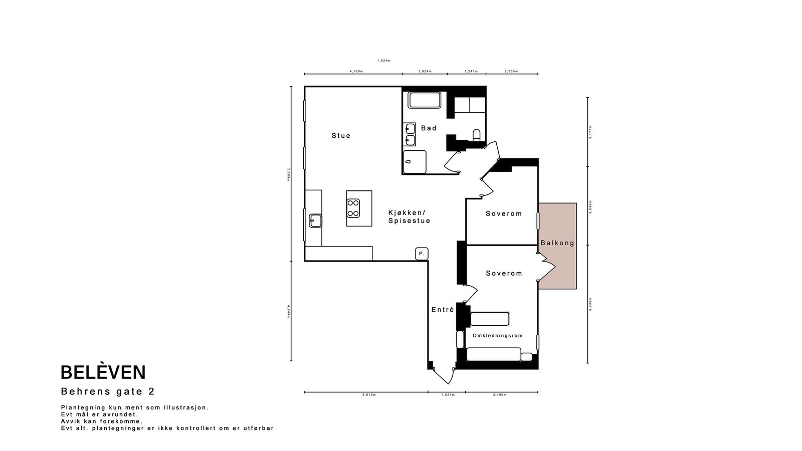
Om boligen
Velkommen til en eksklusiv og totaloppusset 3-roms selveierleilighet på ettertraktede Frogner. Hele leiligheten er pusset opp i 2022/23 med meget høy standard. Leiligheten fremstår som et elegant hjem med klassisk fiskebensparkett og gjennomtenkte materialvalg. Stuen har over tre meters takhøyde, store vindusflater og moderne peisovn fra Jøtul som gir en lys og lun atmosfære.
Det stilrene kjøkkenet fra HTH har integrerte hvitevarer, vinskap og kjøkkenøy i åpen løsning mot stuen. Håndtak på kjøkken er fra Lovehandles og Beslagdesign. Det delikate badet er av god størrelse og holder en påkostet standard med regnfallsdusj, frittstående badekar og en praktisk vaskeromsnisje.
Leiligheten ligger i byggets 3.etasje og har to soverom vendt mot skjermet bakgård. Hovedsoverommet har romslig walk-in garderobe og utgang til sydvestvendt balkong på ca. 6 kvm. Gode oppbevaringsmuligheter med boder i baktrapp, på loft og i kjeller. Garasjeplass leies og kan videreføres.
Velkommen.
Det stilrene kjøkkenet fra HTH har integrerte hvitevarer, vinskap og kjøkkenøy i åpen løsning mot stuen. Håndtak på kjøkken er fra Lovehandles og Beslagdesign. Det delikate badet er av god størrelse og holder en påkostet standard med regnfallsdusj, frittstående badekar og en praktisk vaskeromsnisje.
Leiligheten ligger i byggets 3.etasje og har to soverom vendt mot skjermet bakgård. Hovedsoverommet har romslig walk-in garderobe og utgang til sydvestvendt balkong på ca. 6 kvm. Gode oppbevaringsmuligheter med boder i baktrapp, på loft og i kjeller. Garasjeplass leies og kan videreføres.
Velkommen.
NB: Knappen for å vise hele beskrivelsen har kun en visuell effekt.
NB: Knappen for å vise hele beskrivelsen har kun en visuell effekt.
Salgsoppgaven beskriver vesentlig og lovpålagt informasjon om eiendommen
Se komplett salgsoppgaveNærområdet
Belèven Eiendomsmegling
Annonsene kan være mangelfulle i forhold til lovpålagt opplysningsplikt. Før bindende avtale inngås oppfordres interessenter til å innhente komplett informasjon fra meglerforetaket, selger eller utleier.











































