Bildegalleri

Attraktiv leilighet i del av 4-manns bolig, med egen solrik hage i skjermede og barnevennlige omgivelser - Presentert av Vemund V. Thorkildsen. Bilder: Zovenfra
Gressbanen / Vestre Holmen
Stilfull bolig med idyllisk hage | Carport m/ lader | Nydelig familieområde | Peisovn
Prisantydning10 290 000 kr
Nøkkelinfo
- Boligtype
- Leilighet
- Eieform
- Eier (Selveier)
- Soverom
- 2
- Internt bruksareal
- 102 m² (BRA-i)
- Bruksareal
- 107 m²
- Eksternt bruksareal
- 5 m² (BRA-e)
- Balkong/Terrasse
- 40 m² (TBA)
- Etasje
- 1
- Byggeår
- 1920
- Energimerking
- Rom
- 4
- Tomteareal
- 805 m² (eiet)
Fasiliteter
Balkong/Terrasse
Barnevennlig
Bredbåndstilknytning
Fellesvaskeri
Garasje/P-plass
Hage
Kjæledyr tillatt
Kabel-TV
Offentlig vann/kloakk
Peis/Ildsted
Rolig
Sentralt
Utsikt
Turterreng
Lademulighet
Visning
søndag, 22. mars
13:30 – 14:30
mandag, 23. mars
16:00 – 17:00
Husk å meld deg på oppsatte visninger!
Ta kontakt om oppsatte visninger ikke passer!
VisningspåmeldingOm boligen
Opplev drømmen med frodig hage og familiedyllisk område. Her har dere en privat bolig og et område som gir dere alt dere trenger. Denne må oppleves!
Gjennomgående leilighet i rolig 4-mannsbolig - perfekt for deg som ønsker en solrik og privat familiebolig med enkel adkomst.
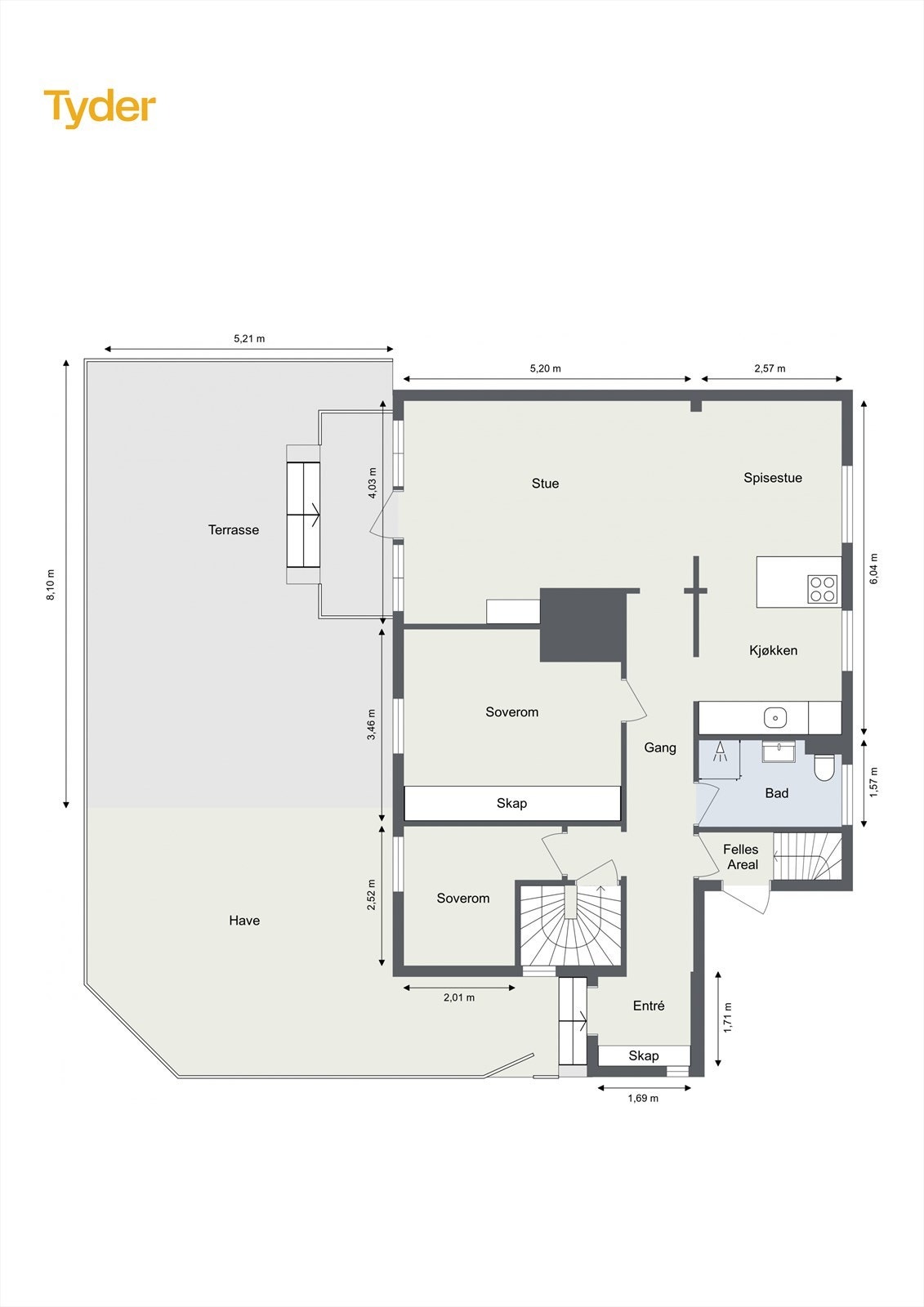
Plan 1 byr på svært god planløsning med kjøkken oppgradert i 2023, god plass til spisebord og romslig stue med peis. Utgang til nydelig og solrik hage med markterrasse, utekjøkken, beplantning og stemningsfull hagebelysning. To gode soverom og delikat bad med varmekabler i gulv. Smarte oppbevaringsløsninger.
U-plan med romslig og fleksibelt oppholdsrom, varmekabler i gulv og eget bad med dusj - perfekt for gjester.
- Carport med elbillader og tørr bod.
- Velorganisert sameie med ekstra bodplass og felles vaskerom
Gjennomgående leilighet i rolig 4-mannsbolig - perfekt for deg som ønsker en solrik og privat familiebolig med enkel adkomst.
Plan 1 byr på svært god planløsning med kjøkken oppgradert i 2023, god plass til spisebord og romslig stue med peis. Utgang til nydelig og solrik hage med markterrasse, utekjøkken, beplantning og stemningsfull hagebelysning. To gode soverom og delikat bad med varmekabler i gulv. Smarte oppbevaringsløsninger.
U-plan med romslig og fleksibelt oppholdsrom, varmekabler i gulv og eget bad med dusj - perfekt for gjester.
- Carport med elbillader og tørr bod.
- Velorganisert sameie med ekstra bodplass og felles vaskerom
NB: Knappen for å vise hele beskrivelsen har kun en visuell effekt.
NB: Knappen for å vise hele beskrivelsen har kun en visuell effekt.
Salgsoppgaven beskriver vesentlig og lovpålagt informasjon om eiendommen
Se komplett salgsoppgaveNyttige lenker
Nærområdet
Nordvik Frogner
Annonseinformasjon
| FINN-kode | 442513263 |
|---|---|
| Sist endret | 17. mars 2026 11:56 |
| Referanse | 14-0693/25 |
Annonsene kan være mangelfulle i forhold til lovpålagt opplysningsplikt. Før bindende avtale inngås oppfordres interessenter til å innhente komplett informasjon fra meglerforetaket, selger eller utleier.













































