Bildegalleri

Nordvik ved Carl Christian Stierna presenterer Norbygata 15A. Foto: Zovenfra.
Tøyen / Grønland
Innholdsrik hjørneleilighet med godt potensial - Klassisk gård - Perfekt oppussingsobjekt eller utleieobjekt
Prisantydning4 700 000 kr
Nøkkelinfo
- Boligtype
- Leilighet
- Eieform
- Eier (Selveier)
- Soverom
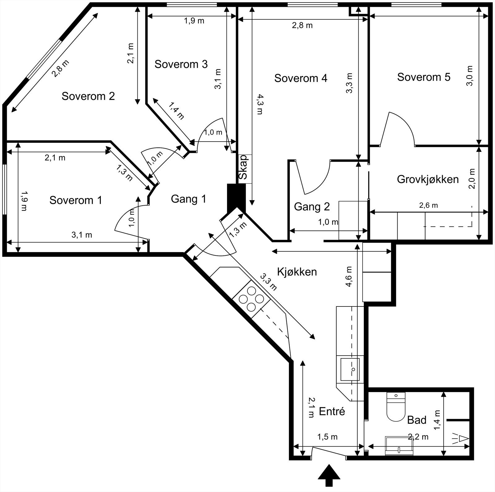
- 2
- Internt bruksareal
- 68 m² (BRA-i)
- Bruksareal
- 68 m²
- Etasje
- 4
- Byggeår
- 1896
- Energimerking
- G - Rød
- Rom
- 3
- Tomteareal
- 447 m² (eiet)
Fasiliteter
Barnevennlig
Bredbåndstilknytning
Ingen gjenboere
Offentlig vann/kloakk
Parkett
Sentralt
Utsikt
Om boligen
Innholdsrik hjørneleilighet med masse potensial.
Beliggenheten er svært sentral, med gangavstand til Bjørvika, Grønland, Grünerløkka og alle fasiliteter i sentrum. Rett utenfor døra har man tilgang til et rikt utvalg av butikker, kafeer og restauranter. God tilknytning til offentlig kommunikasjon med nærhet til både buss og bane.
Beliggenheten er svært sentral, med gangavstand til Bjørvika, Grønland, Grünerløkka og alle fasiliteter i sentrum. Rett utenfor døra har man tilgang til et rikt utvalg av butikker, kafeer og restauranter. God tilknytning til offentlig kommunikasjon med nærhet til både buss og bane.
- Åpent og fint utsyn mot park
- Fem soverom - opprinnelig stue er delt opp i tre soverom
- Tidligere utleid for 29.000,- i mnd
- God takhøyde på 2,70 meter og store vindusflater
- Tregulv
- Rikelig med lagringsplass i tre boder på til sammen 14 kvm.
- Varmtvann inkludert i felleskostnadene
- Klassik gård fra 1896
- Stor, frodig bakgård med lekeplass, sittegrupper og sykkelparkering
- Perfekt oppussingsobjekt eller utleieobjekt
NB: Knappen for å vise hele beskrivelsen har kun en visuell effekt.
NB: Knappen for å vise hele beskrivelsen har kun en visuell effekt.
Salgsoppgaven beskriver vesentlig og lovpålagt informasjon om eiendommen
Se komplett salgsoppgaveNyttige lenker
Nærområdet
Nordvik St.Hanshaugen
Annonseinformasjon
| FINN-kode | 442510599 |
|---|---|
| Sist endret | 27. des. 2025 08:02 |
| Referanse | 5-0511/25 |
Annonsene kan være mangelfulle i forhold til lovpålagt opplysningsplikt. Før bindende avtale inngås oppfordres interessenter til å innhente komplett informasjon fra meglerforetaket, selger eller utleier.

































