Bildegalleri

Velkommen til Furukollveien 13A, presentert av Nordvik Asker. Foto: Paul-Dan Dragoman og Eiendomsfoto AS.
Mellom-Nes/Nesbru
Drømmer du om en helt ny arkitekttegnet funkisbolig nær fjorden? Solrik takterrasse med utsikt. Dobbelgarasje. Båtplass*
Prisantydning17 900 000 kr
Nøkkelinfo
- Boligtype
- Tomannsbolig
- Eieform
- Eier (Selveier)
- Soverom
- 4
- Internt bruksareal
- 204 m² (BRA-i)
- Bruksareal
- 240 m²
- Eksternt bruksareal
- 36 m² (BRA-e)
- Balkong/Terrasse
- 65 m² (TBA)
- Byggeår
- 2025
- Energimerking
- Rom
- 7
- Tomteareal
- 1 277 m² (eiet)
Fasiliteter
Takterrasse
Balkong/Terrasse
Barnevennlig
Båtplass
Garasje/P-plass
Hage
Kjæledyr tillatt
Ingen gjenboere
Offentlig vann/kloakk
Parkett
Peis/Ildsted
Rolig
Sentralt
Utsikt
Turterreng
Balansert ventilasjon
Visning
Alle våre visninger har påmelding. På denne måten sikrer vi at megler har god oversikt og tid til å imøtekomme alle interessenter. Meld deg på visning ved å trykke på lenken visningspåmelding.
VisningspåmeldingOm boligen
Nå har du muligheten til å sikre deg en helt ny, arkitekttegnet funkisbolig med "enebolig følelse", ferdigstilt desember 2025. Boligen er en del av et eksklusivt prosjekt med rene linjer, moderne formspråk og gjennomgående høy kvalitet.
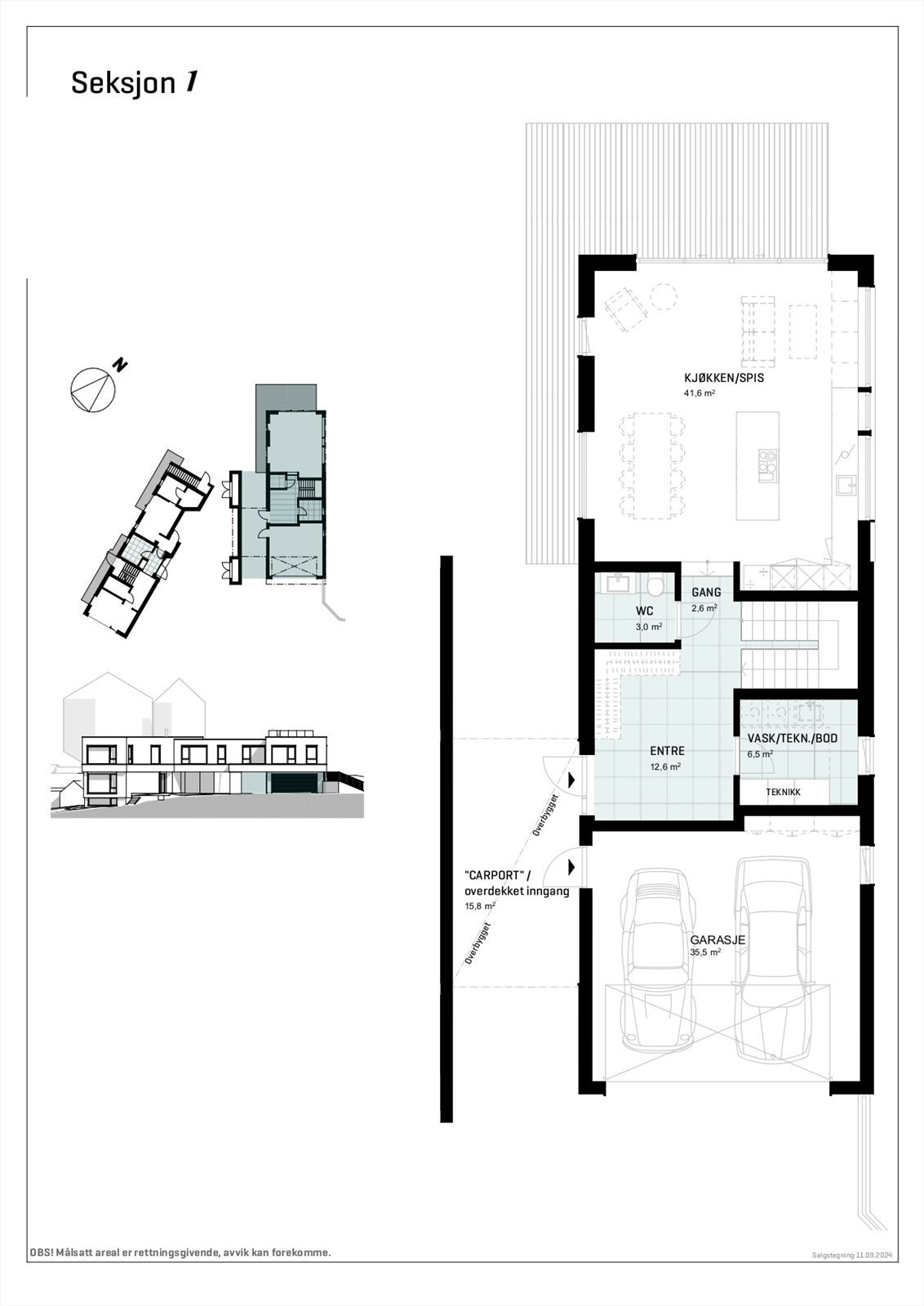
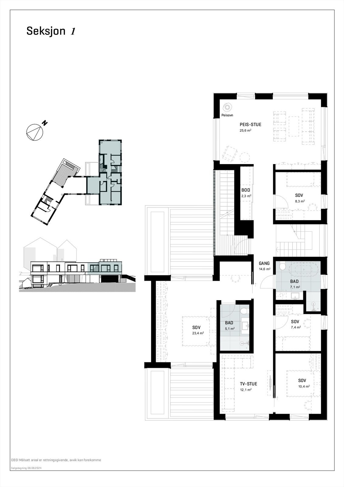
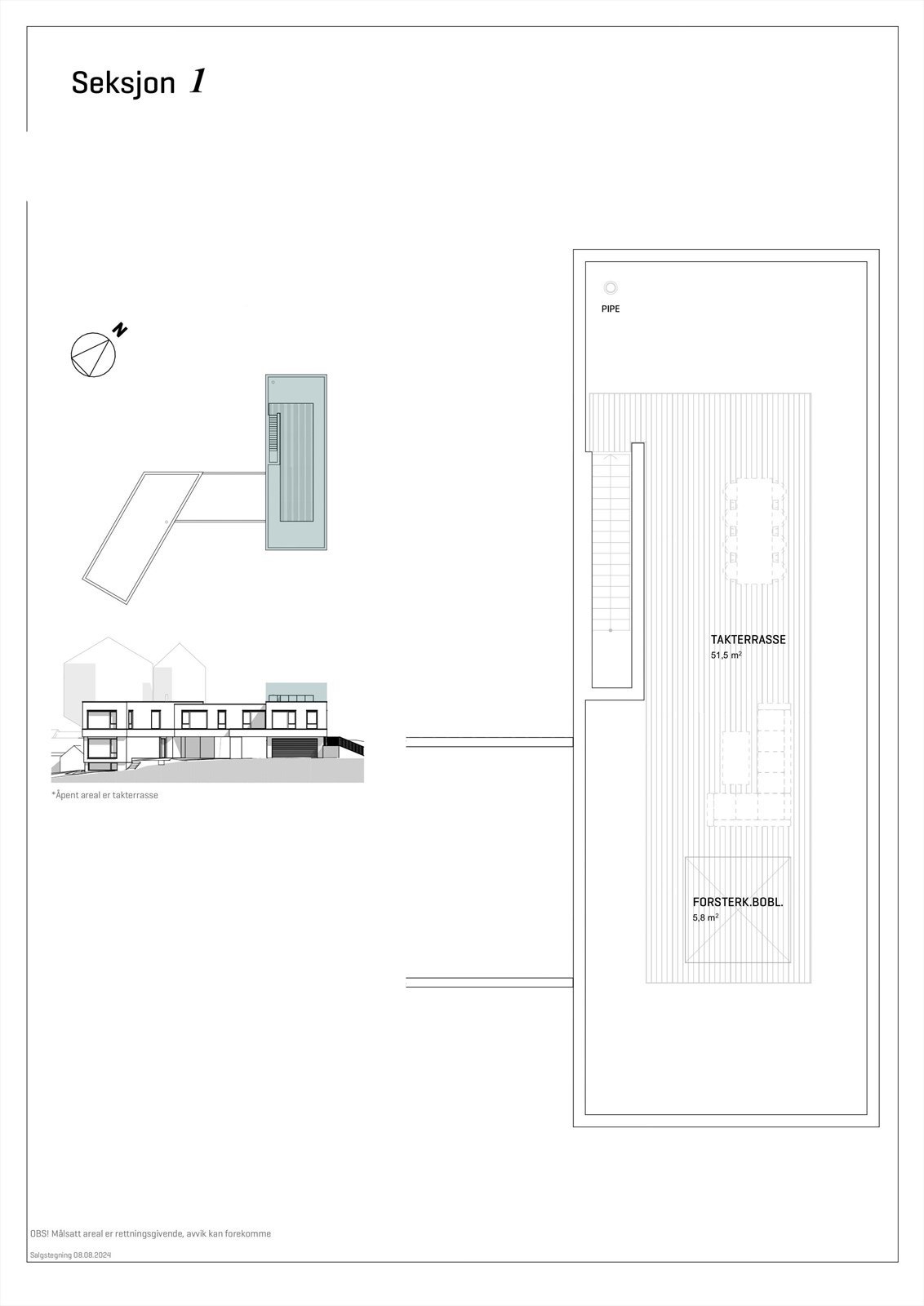
Her får du en bolig med svært god bokvalitet, vannbåren gulvvarme, enstavs parkett, påkostet trappeløsning og gjennomtenkt belysning. Boligen er innholdsrik med 4 soverom, 2 bad, gjeste wc, vaskerom og 3 stuer, samt meget flotte uteplasser, inkludert solrik takterrasse med utsikt til fjorden.
Her bor du i et attraktivt og familievennlig område med nærhet til fjorden, marka, skoler, barnehager og kollektivtransport.
Eiendommen er tilknyttet Øvre Nes Vel med tilgang til privat strand og mulighet for båtplass*
Velkommen til Øvre Nes i Asker!
Her får du en bolig med svært god bokvalitet, vannbåren gulvvarme, enstavs parkett, påkostet trappeløsning og gjennomtenkt belysning. Boligen er innholdsrik med 4 soverom, 2 bad, gjeste wc, vaskerom og 3 stuer, samt meget flotte uteplasser, inkludert solrik takterrasse med utsikt til fjorden.
Her bor du i et attraktivt og familievennlig område med nærhet til fjorden, marka, skoler, barnehager og kollektivtransport.
Eiendommen er tilknyttet Øvre Nes Vel med tilgang til privat strand og mulighet for båtplass*
Velkommen til Øvre Nes i Asker!
NB: Knappen for å vise hele beskrivelsen har kun en visuell effekt.
NB: Knappen for å vise hele beskrivelsen har kun en visuell effekt.
Salgsoppgaven beskriver vesentlig og lovpålagt informasjon om eiendommen
Se komplett salgsoppgaveNyttige lenker
Nærområdet
Nordvik Asker
Vi vet hva det er verdt
Annonseinformasjon
| FINN-kode | 442432172 |
|---|---|
| Sist endret | 05. mars 2026 07:53 |
| Referanse | 33-0270/25 |
Annonsene kan være mangelfulle i forhold til lovpålagt opplysningsplikt. Før bindende avtale inngås oppfordres interessenter til å innhente komplett informasjon fra meglerforetaket, selger eller utleier.
















































































