Bildegalleri

Fasade
Meldal - Innholdsrik enebolig med fine sol-og utsiktsforhold.
Prisantydning990 000 kr
Nøkkelinfo
- Boligtype
- Enebolig
- Eieform
- Eier (Selveier)
- Soverom
- 5
- Internt bruksareal
- 144 m² (BRA-i)
- Bruksareal
- 211 m²
- Eksternt bruksareal
- 67 m² (BRA-e)
- Balkong/Terrasse
- 23 m² (TBA)
- Etasje
- 3
- Byggeår
- 1947
- Energimerking
- G - Rød
- Tomteareal
- 2 500 m² (eiet)
Visning
onsdag, 07. januar
16:00 – 17:00
Ved annonsert visning er det viktig at du melder deg på visningen ved å bruke visningspåmeldingsknappen eller kontakter megler. Annonserte visninger hvor det ikke er noen påmeldte innen kl. 16.00 dagen før visningsdagen vil ikke bli avholdt.
For visninger utover dette, ta direkte kontakt med megler.
VisningspåmeldingOm boligen
Eiendommen ligger på nedsiden av Løkkenveien, på motsatt side av veien av boligfeltet i Nedre og Øvre Bergslia. Med sin beliggenhet ovenfor sentrum, sikrer man seg god utsikt og god solgang med sen kveldssol på sommeren.
I Meldal er det barnehage, barne-og ungdomsskole, butikker, bank/forsikring, bussforbindelser m.m.
Boligen er fra etterkrigstiden, er stor og innholdsrik og har stor eiertomt. Boligen er lite oppgradert i senere tid - så her har den nevenyttige et godt utgangspunkt for å skaffe seg sitt eget hjem.
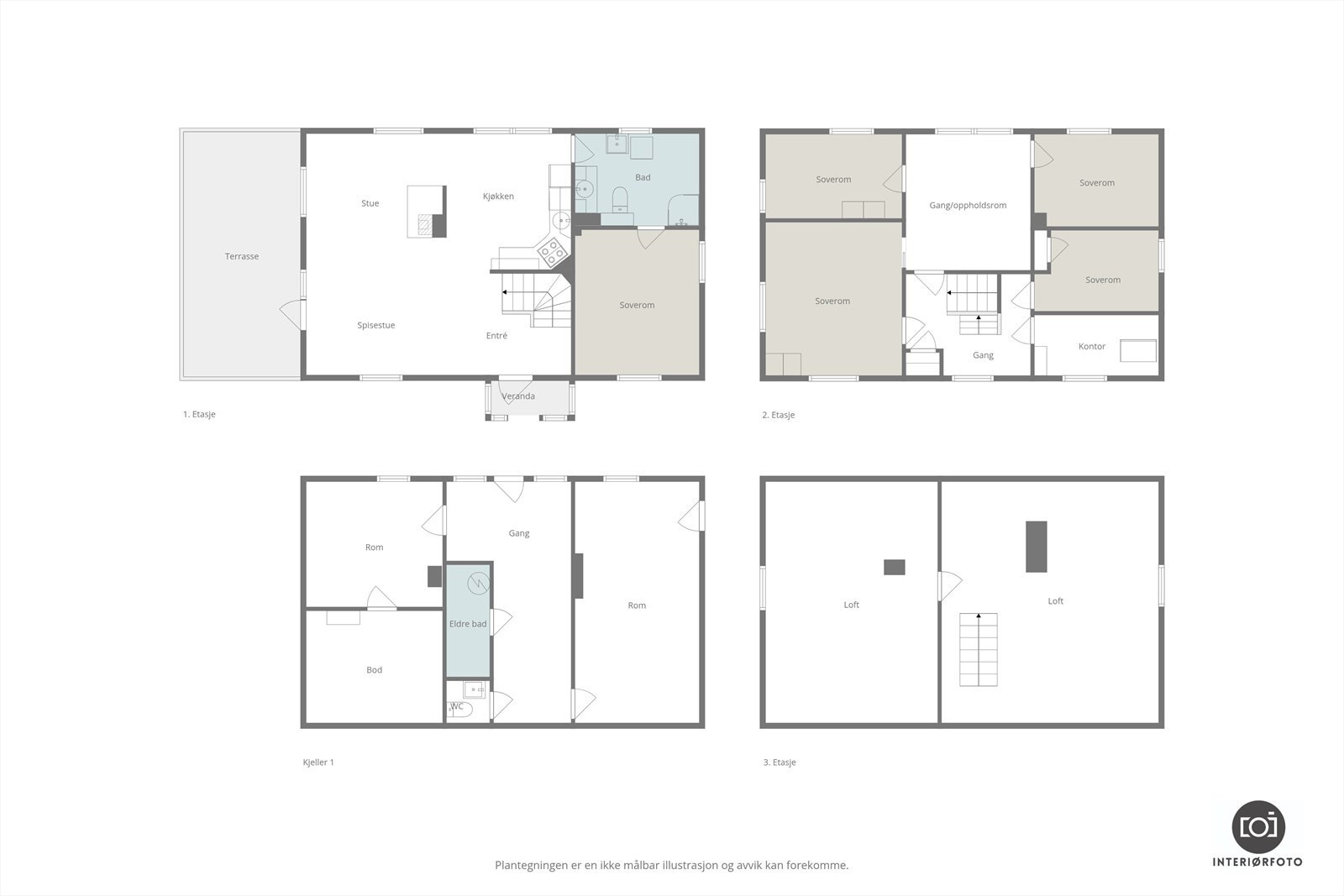
1. etg: Gang, stue, kjøkken, bad og soverom. Det er er vedovn på stua.
2. etg: Gang, 4 soverom, kontor, mellomgang/oppholdsrom.
Kjeller: Boder, eldre bad og wc. Bad og wc er ikke i bruk/funksjon. Det er kun utvendig inngang til kjelleren, ikke innvendig trapp.
Mørkloft.
I Meldal er det barnehage, barne-og ungdomsskole, butikker, bank/forsikring, bussforbindelser m.m.
Boligen er fra etterkrigstiden, er stor og innholdsrik og har stor eiertomt. Boligen er lite oppgradert i senere tid - så her har den nevenyttige et godt utgangspunkt for å skaffe seg sitt eget hjem.
1. etg: Gang, stue, kjøkken, bad og soverom. Det er er vedovn på stua.
2. etg: Gang, 4 soverom, kontor, mellomgang/oppholdsrom.
Kjeller: Boder, eldre bad og wc. Bad og wc er ikke i bruk/funksjon. Det er kun utvendig inngang til kjelleren, ikke innvendig trapp.
Mørkloft.
NB: Knappen for å vise hele beskrivelsen har kun en visuell effekt.
NB: Knappen for å vise hele beskrivelsen har kun en visuell effekt.
Salgsoppgaven beskriver vesentlig og lovpålagt informasjon om eiendommen
Se komplett salgsoppgaveNærområdet
Aktiv Orkla
Annonseinformasjon
| FINN-kode | 442407687 |
|---|---|
| Sist endret | 18. des. 2025 12:11 |
| Referanse | 1702250224 |
Annonsene kan være mangelfulle i forhold til lovpålagt opplysningsplikt. Før bindende avtale inngås oppfordres interessenter til å innhente komplett informasjon fra meglerforetaket, selger eller utleier.









































