Bildegalleri

Velkommen til Åmotshagan 21
Gjerdrum
Enebolig med barnevennlig beliggenhet | 2 stuer | 2 bad+ vaskerom | Flott uteområde | Dobbelgarasje med elbil-lader
Prisantydning6 690 000 kr
Nøkkelinfo
- Boligtype
- Enebolig
- Eieform
- Eier (Selveier)
- Soverom
- 3
- Internt bruksareal
- 190 m² (BRA-i)
- Bruksareal
- 230 m²
- Eksternt bruksareal
- 40 m² (BRA-e)
- Balkong/Terrasse
- 57 m² (TBA)
- Etasje
- 2
- Byggeår
- 2003
- Energimerking
- E - Mørkegrønn
- Rom
- 4
- Tomteareal
- 777 m² (eiet)
Fasiliteter
Alarm
Balkong/Terrasse
Barnevennlig
Bredbåndstilknytning
Garasje/P-plass
Golfbane
Hage
Kjæledyr tillatt
Kabel-TV
Offentlig vann/kloakk
Parkett
Rolig
Turterreng
Lademulighet
Om boligen
Velkommen til Åmotshagan 21 i Gjerdrum
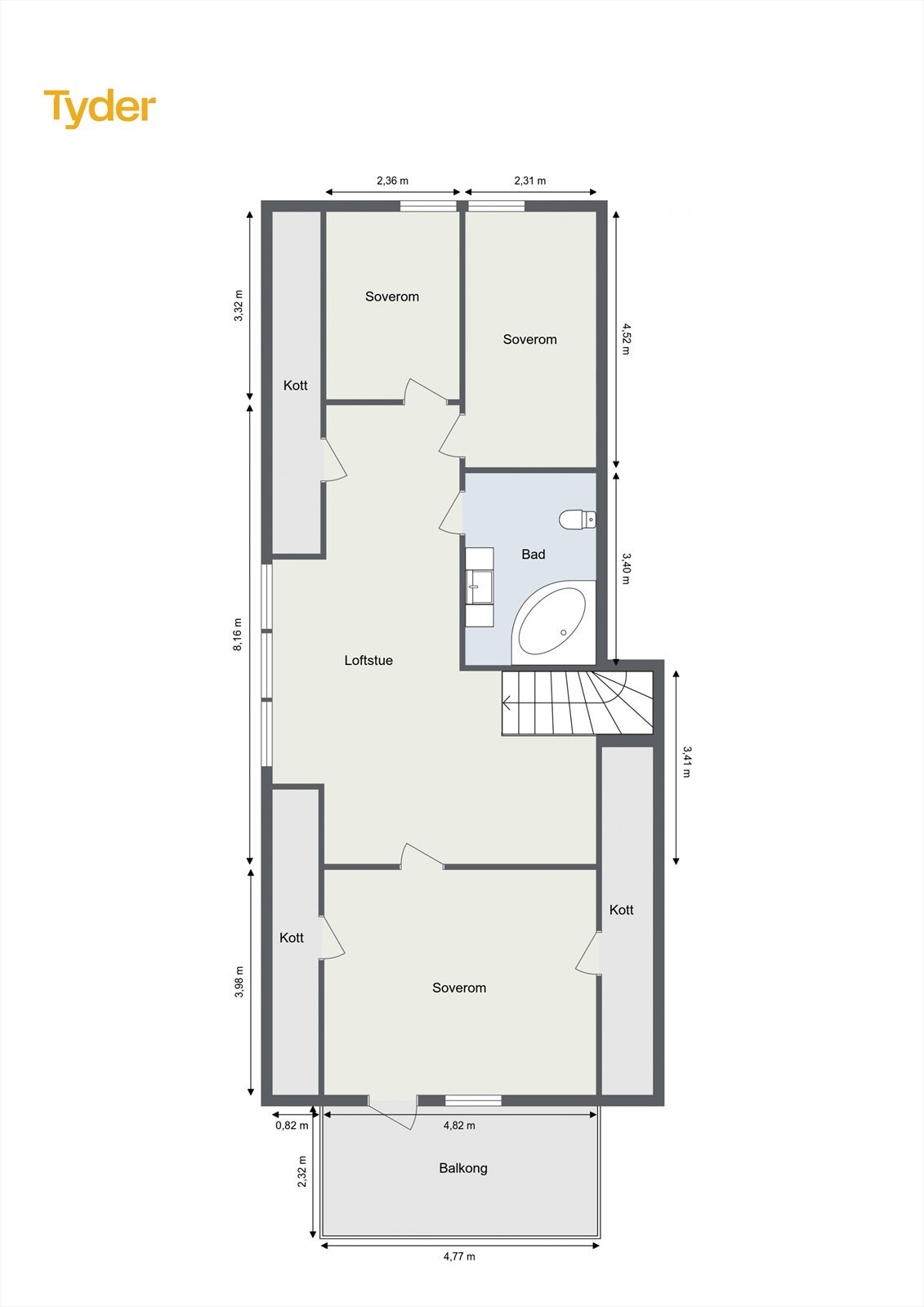
Dette er en familievennlig enebolig over to plan, med kort avstand til både skoler og barnehager. Boligen har en praktisk og gjennomtenkt planløsning med blant annet to soverom, romslig stue, stort kjøkken, bad, separat WC og vaskerom med egen inngang. I tillegg er 2. etasje innredet med tre soverom (to ikke godkjent grunnet manglende ferdigattest), et stort bad og en romslig loftstue med tre vinduer perfekt for familier som trenger ekstra plass.
Eiendommen ligger i et område som passer utmerket for den aktive familien, med Romeriksåsen i nærheten som byr på flotte turstier og naturopplevelser. For pendlere er beliggenheten også svært praktisk, med direkte bussforbindelse til både Oslo og Gardermoen.
Velkommen til visning!
Dette er en familievennlig enebolig over to plan, med kort avstand til både skoler og barnehager. Boligen har en praktisk og gjennomtenkt planløsning med blant annet to soverom, romslig stue, stort kjøkken, bad, separat WC og vaskerom med egen inngang. I tillegg er 2. etasje innredet med tre soverom (to ikke godkjent grunnet manglende ferdigattest), et stort bad og en romslig loftstue med tre vinduer perfekt for familier som trenger ekstra plass.
Eiendommen ligger i et område som passer utmerket for den aktive familien, med Romeriksåsen i nærheten som byr på flotte turstier og naturopplevelser. For pendlere er beliggenheten også svært praktisk, med direkte bussforbindelse til både Oslo og Gardermoen.
Velkommen til visning!
NB: Knappen for å vise hele beskrivelsen har kun en visuell effekt.
NB: Knappen for å vise hele beskrivelsen har kun en visuell effekt.
Salgsoppgaven beskriver vesentlig og lovpålagt informasjon om eiendommen
Se komplett salgsoppgaveNyttige lenker
Nærområdet
Krogsveen Skedsmokorset
Verdien av en god megler.
Annonseinformasjon
| FINN-kode | 442407534 |
|---|---|
| Sist endret | 10. jan. 2026 12:26 |
| Referanse | KR59.25144 |
Annonsene kan være mangelfulle i forhold til lovpålagt opplysningsplikt. Før bindende avtale inngås oppfordres interessenter til å innhente komplett informasjon fra meglerforetaket, selger eller utleier.

















































































