Bildegalleri

Nordvik Eiendomsmegling v/Christoffer Kvalshaugen ønsker deg velkommen til Fagerheimgaten 30 på Kaldnes. (Foto: FOTOGRAF MAGIK)
Kaldnes
Må sees; eksklusiv leilighet - en av byens vakreste. 3,5 meter takhøyde, håndlaget interiør og vinrom m/glasstak
Prisantydning8 500 000 kr
Nøkkelinfo
- Boligtype
- Leilighet
- Eieform
- Eier (Selveier)
- Soverom
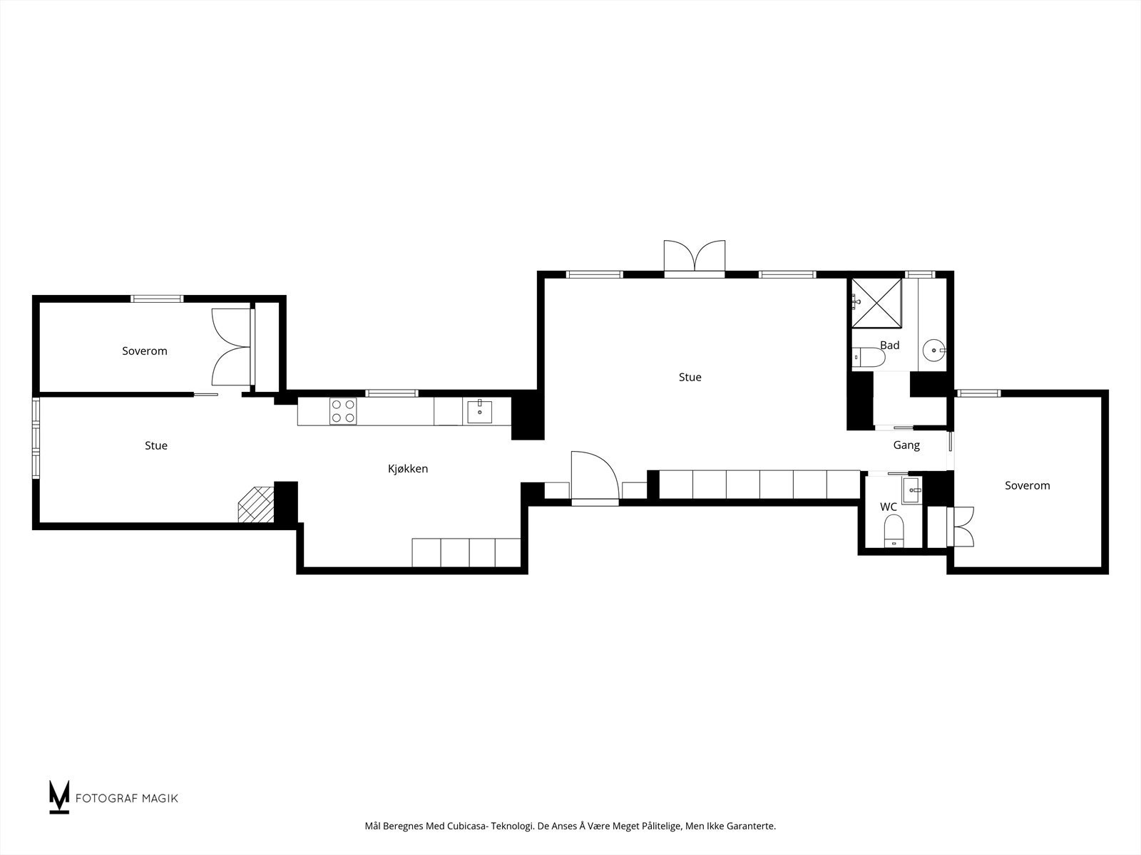
- 2
- Internt bruksareal
- 92 m² (BRA-i)
- Bruksareal
- 98 m²
- Eksternt bruksareal
- 6 m² (BRA-e)
- Balkong/Terrasse
- 10 m² (TBA)
- Etasje
- 1
- Byggeår
- 1860
- Energimerking
- G - Rød
- Rom
- 4
- Tomteareal
- 653 m² (eiet)
Fasiliteter
Balkong/Terrasse
Bredbåndstilknytning
Garasje/P-plass
Hage
Kabel-TV
Offentlig vann/kloakk
Parkett
Peis/Ildsted
Sentralt
Visning
onsdag, 04. februar
16:30 – 17:15
Alle våre visninger har påmelding. På denne måten sikrer vi at megler har god oversikt og tid til å imøtekomme alle interessenter. Meld deg på visning ved å trykke på lenken visningspåmelding.
VisningspåmeldingOm boligen
På jakt etter det lille ekstra? Velkommen til en unik 3-roms selveier, en av byens mest spektakulære leiligheter. Leiligheten ligger i et historisk bygg fra 1860, diskret plassert over byen, med utsikt, eleganse, imponerende takhøyde og håndverk i særklasse. Renovert i 2025 holder leiligheten en høy standard; eksklusivt med gjennomført arkitektur, formidable materialvalg og skreddersydde løsninger fra gulv til tak.
Her får man store, sosiale soner med en hotellfølelse som oser luksus. To stuer gir god fleksibilitet, den ene med glassgulv til egen vinkjeller et kunstverk i seg selv. Videre har leiligheten et påkostet kjøkken, en solrik terrasse, to lune soverom og luksuriøse våtrom med varme detaljer. Dette er en leilighet du ikke finner maken til; ikke bare et hjem, men en opplevelse!
Her får man store, sosiale soner med en hotellfølelse som oser luksus. To stuer gir god fleksibilitet, den ene med glassgulv til egen vinkjeller et kunstverk i seg selv. Videre har leiligheten et påkostet kjøkken, en solrik terrasse, to lune soverom og luksuriøse våtrom med varme detaljer. Dette er en leilighet du ikke finner maken til; ikke bare et hjem, men en opplevelse!
NB: Knappen for å vise hele beskrivelsen har kun en visuell effekt.
NB: Knappen for å vise hele beskrivelsen har kun en visuell effekt.
Salgsoppgaven beskriver vesentlig og lovpålagt informasjon om eiendommen
Se komplett salgsoppgaveNyttige lenker
Nærområdet
Nordvik Tønsberg
Annonseinformasjon
| FINN-kode | 442406606 |
|---|---|
| Sist endret | 27. jan. 2026 13:24 |
| Referanse | 25-0222/25 |
Annonsene kan være mangelfulle i forhold til lovpålagt opplysningsplikt. Før bindende avtale inngås oppfordres interessenter til å innhente komplett informasjon fra meglerforetaket, selger eller utleier.


















































