Bildegalleri

Nordvik Eiendomsmegling v/Christoffer Kvalshaugen ønsker deg velkommen til Gneisveien 1A. (Foto: FOTOGRAF MAGIK)
Ekenes
Lekker funkisbolig fra 2021, med 4 soverom, landlig utsikt, herlig kveldssol og integrert dobbelgarasje. Nær sjøen!
Prisantydning9 500 000 kr
Nøkkelinfo
- Boligtype
- Enebolig
- Eieform
- Eier (Selveier)
- Soverom
- 4
- Internt bruksareal
- 220 m² (BRA-i)
- Bruksareal
- 220 m²
- Balkong/Terrasse
- 67 m² (TBA)
- Etasje
- 2
- Byggeår
- 2021
- Energimerking
- A - Rød
- Rom
- 6
- Tomteareal
- 600 m² (eiet)
Fasiliteter
Balkong/Terrasse
Barnevennlig
Bredbåndstilknytning
Garasje/P-plass
Hage
Kabel-TV
Offentlig vann/kloakk
Parkett
Rolig
Turterreng
Lademulighet
Balansert ventilasjon
Visning
Alle våre visninger har påmelding. På denne måten sikrer vi at megler har god oversikt og tid til å imøtekomme alle interessenter. Meld deg på visning ved å trykke på lenken visningspåmelding.
VisningspåmeldingOm boligen
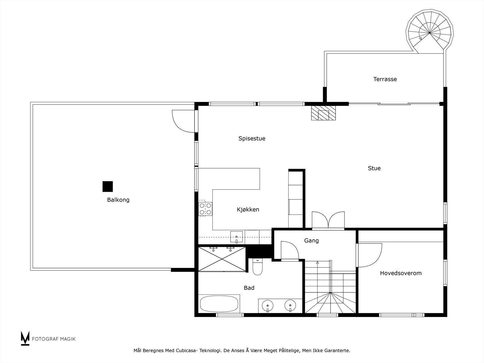
Flytt rett inn i Gneisveien 1A, en stor, nyere og topp moderne funkisbolig over to etasjer. Med to bad, to stuer og fire soverom egner huset seg godt for familier. Omgivelsene er landlige, i en rolig blindvei med gangavstand til sjøen, buss og dagligvare. Boligen ligger høyt og fritt, med nydelig utsikt over store åkre, skogkledde åser og magiske solnedganger. Kveldssolen nytes til fulle på tre uteplasser, inkludert en stor balkong med stilig glassrekkverk.
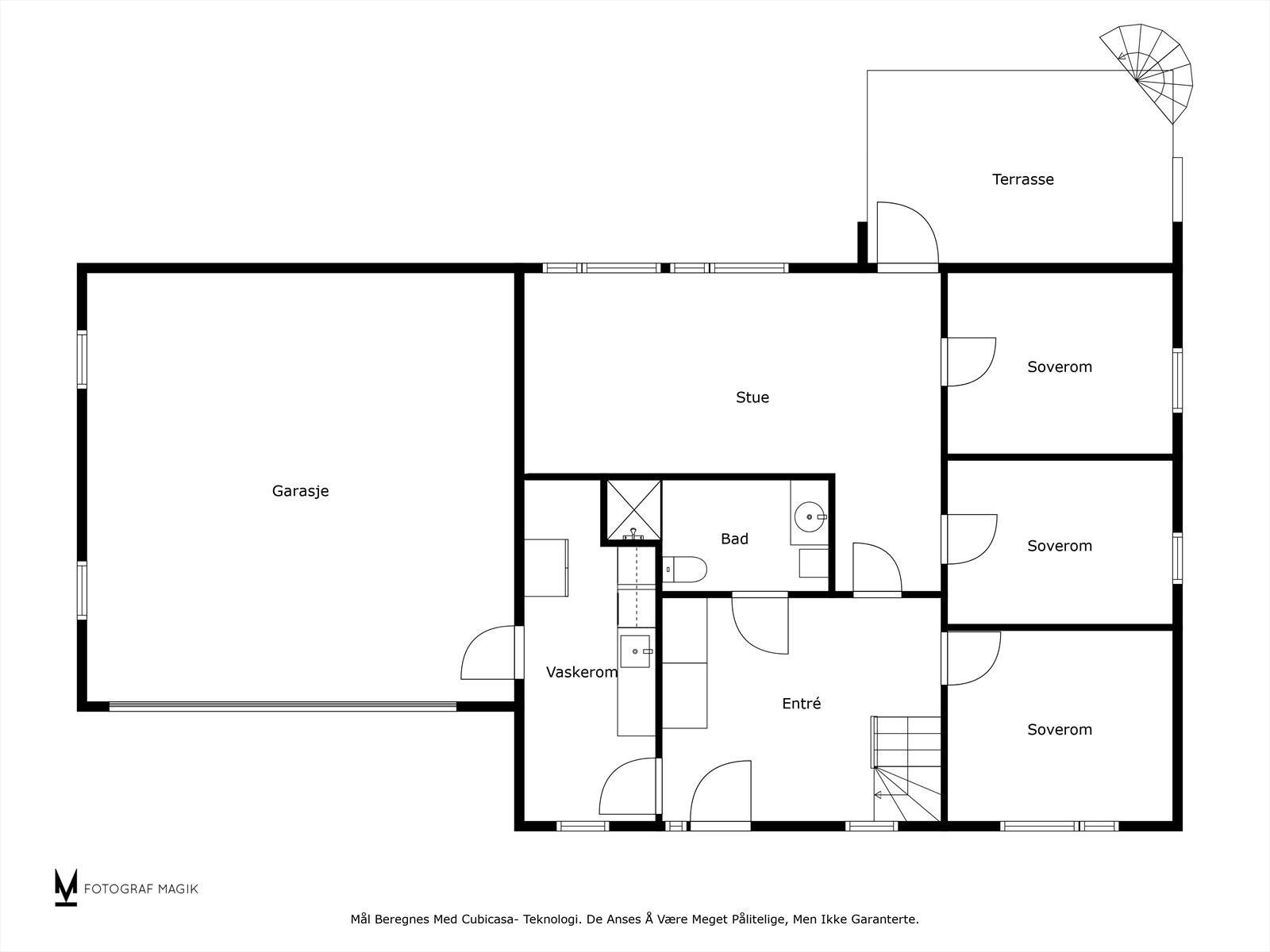
Som samlingssted har boligen en flott stue med gasspeis og store vinduer, der et velutstyrt kjøkken kan skilte med barløsning, mye oppbevaring og integrerte hvitevarer. Badene ligger i hver sin etasje, hvor det ene har badekar og dobbel regnfallsdusj. Videre finner man et separat vaskerom med direkte tilknytning til en dobbelgarasje.
Som samlingssted har boligen en flott stue med gasspeis og store vinduer, der et velutstyrt kjøkken kan skilte med barløsning, mye oppbevaring og integrerte hvitevarer. Badene ligger i hver sin etasje, hvor det ene har badekar og dobbel regnfallsdusj. Videre finner man et separat vaskerom med direkte tilknytning til en dobbelgarasje.
NB: Knappen for å vise hele beskrivelsen har kun en visuell effekt.
NB: Knappen for å vise hele beskrivelsen har kun en visuell effekt.
Salgsoppgaven beskriver vesentlig og lovpålagt informasjon om eiendommen
Se komplett salgsoppgaveNyttige lenker
Nærområdet
Nordvik Tønsberg
Annonseinformasjon
| FINN-kode | 442400615 |
|---|---|
| Sist endret | 04. jan. 2026 13:17 |
| Referanse | 25-0143/25 |
Annonsene kan være mangelfulle i forhold til lovpålagt opplysningsplikt. Før bindende avtale inngås oppfordres interessenter til å innhente komplett informasjon fra meglerforetaket, selger eller utleier.





























































