Bildegalleri

EiendomsMegler 1 ved Markus Tangvik har gleden av å presentere en sjarmerende toppleilighet i Nedre Møllenberg gate 9 B. Foto: Krokstad&Nervik
Møllenberg
NYDELIG TOPPLEILIGHET MED EGEN BALKONG. Betydelig oppgradert i 2018. God takhøyde. Lave felleskost. Nært NTNU.
Prisantydning4 690 000 kr
Nøkkelinfo
- Boligtype
- Leilighet
- Eieform
- Eier (Selveier)
- Soverom
- 2
- Internt bruksareal
- 81 m² (BRA-i)
- Bruksareal
- 86 m²
- Eksternt bruksareal
- 3 m² (BRA-e)
- Balkong/Terrasse
- 5 m² (TBA)
- Etasje
- 3
- Byggeår
- 1898
- Energimerking
- G - Rød
- Rom
- 3
- Tomteareal
- 139 m² (eiet)
Fasiliteter
Balkong/Terrasse
Kabel-TV
Offentlig vann/kloakk
Parkett
Turterreng
Utsikt
Sentralt
Bredbåndstilknytning
Moderne
Rolig
Visning
torsdag, 08. januar
16:00 – 16:45
Våre visninger har påmelding. Dette gjør vi for å kunne yte bedre service for våre kunder. Verdifullt for boligkjøper og for oss. Vi anbefaler at salgsoppgaven lastes ned digitalt før visning, og ring oss gjerne på forhånd for spørsmål om boligen. Passer ikke angitt tidspunkt, ta kontakt så finner vi en løsning. Skulle det mot formodning ikke være påmeldte til angitt visningstidspunkt vil ikke visning bli gjennomført.
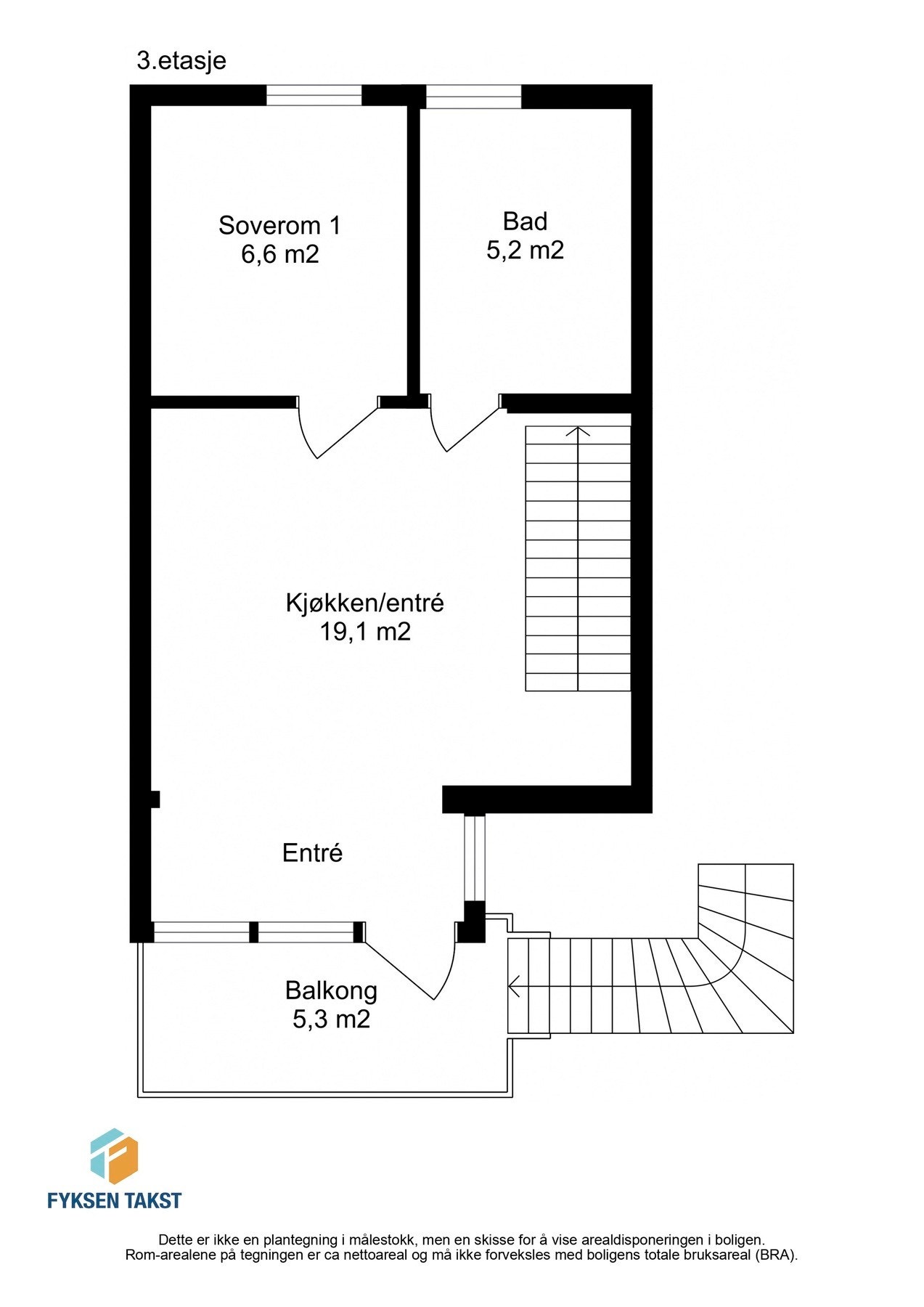
Om boligen
EiendomsMegler 1 ved Markus Tangvik har gleden av å presentere en nydelig og moderne toppleilighet på Møllenberg. Leiligheten har et bruksareal på 86 kvm og ble betydelig oppgradert i 2018.
Kvaliteter:
- Nydelig 3-roms toppleilighet over to plan som er lett å innrede.
- Gården ble betydelig oppgradert i 2018, og består av tidsriktige og fine materialvalg.
- Fra oppholdsrom/kjøkken har man direkte tilgang til solrik balkong.
- Nydelig kjøkken fra 2018 med integrerte hvitevarer.
- Stort baderom fra 2018 med opplegg for vaskemaskin.
- Romslig toppetasje med god takhøyde.
- 3 stk soverom.
- Nærhet til NTNU og Solsiden.
Velkommen på visning!
Kvaliteter:
- Nydelig 3-roms toppleilighet over to plan som er lett å innrede.
- Gården ble betydelig oppgradert i 2018, og består av tidsriktige og fine materialvalg.
- Fra oppholdsrom/kjøkken har man direkte tilgang til solrik balkong.
- Nydelig kjøkken fra 2018 med integrerte hvitevarer.
- Stort baderom fra 2018 med opplegg for vaskemaskin.
- Romslig toppetasje med god takhøyde.
- 3 stk soverom.
- Nærhet til NTNU og Solsiden.
Velkommen på visning!
NB: Knappen for å vise hele beskrivelsen har kun en visuell effekt.
NB: Knappen for å vise hele beskrivelsen har kun en visuell effekt.
Salgsoppgaven beskriver vesentlig og lovpålagt informasjon om eiendommen
Se komplett salgsoppgaveNærområdet
EiendomsMegler 1 Trondheim sentrum, Kongens gate
Vi loser deg trygt gjennom hele boligsalget
Annonseinformasjon
| FINN-kode | 442319351 |
|---|---|
| Sist endret | 24. des. 2025 12:13 |
| Referanse | 32250389 |
Annonsene kan være mangelfulle i forhold til lovpålagt opplysningsplikt. Før bindende avtale inngås oppfordres interessenter til å innhente komplett informasjon fra meglerforetaket, selger eller utleier.






























