Bildegalleri

Ole Kristian Isdahl og Martin Vosgraff hos Nordvik ønsker deg velkommen til Grenseveien 30D!
Utsiktsleilighet på Carl Berner
Attraktiv og gjennomgående 2-roms med balkong, nydelig utsikt og super beliggenhet | Fyring og v.vann inkl.
Prisantydning4 200 000 kr
Nøkkelinfo
- Boligtype
- Leilighet
- Eieform
- Andel
- Soverom
- 1
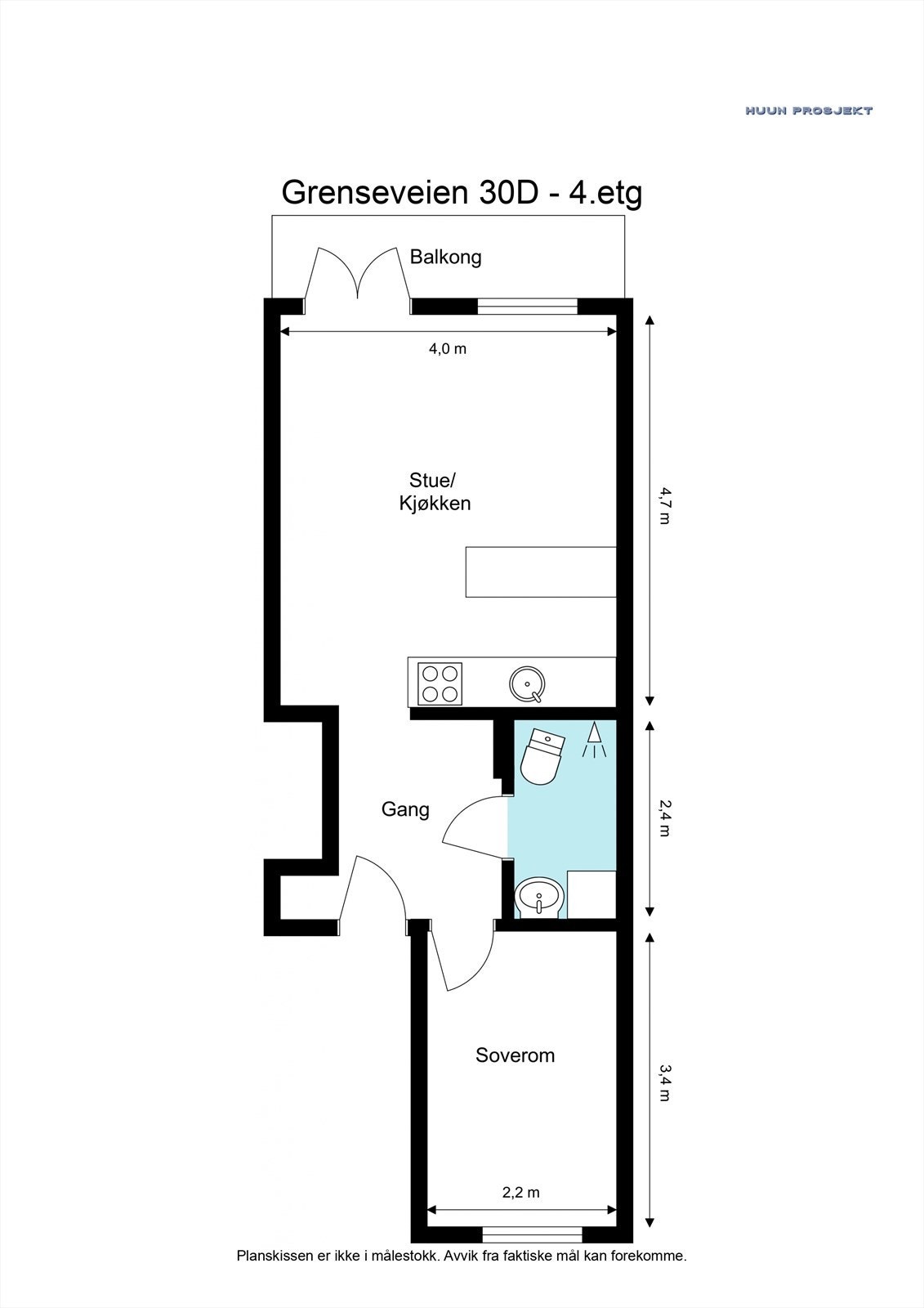
- Internt bruksareal
- 36 m² (BRA-i)
- Bruksareal
- 38 m²
- Eksternt bruksareal
- 2 m² (BRA-e)
- Balkong/Terrasse
- 4 m² (TBA)
- Etasje
- 4
- Byggeår
- 1940
- Energimerking
- G - Mørkegrønn
- Rom
- 2
- Tomteareal
- 3 602 m² (eiet)
Visning
søndag, 04. januar
11:30 – 12:30
mandag, 05. januar
17:00 – 18:00
Alle våre visninger har påmelding. På denne måten sikrer vi at megler har god oversikt og tid til å imøtekomme alle interessenter. Meld deg på visning ved å trykke på lenken visningspåmelding.
VisningspåmeldingOm boligen
Velkommen til en lys og vel utnyttet 2-roms leilighet med balkong, gode solforhold og flott utsikt, beliggende i et attraktivt og sentralt område på Carl Berner. Leiligheten har en god planløsning, trivelige oppholdsrom og passer perfekt for førstegangskjøpere, enslige eller par som ønsker nærhet til kollektivtransport, butikker, kafeer og byliv.
Her bor du i et veletablert borettslag med forutsigbare felleskostnader hvor varme, varmtvann og internett er inkludert. Kort vei til T-bane, trikk og buss, samt grønne områder og populære bydeler som Grünerløkka og Tøyen.
- Kjellerbod for lagring
- Mulig å leie billig p-plass etter venteliste
- Svært godt service- og kollektivtilbud i umiddelbar nærhet!
Her bor du i et veletablert borettslag med forutsigbare felleskostnader hvor varme, varmtvann og internett er inkludert. Kort vei til T-bane, trikk og buss, samt grønne områder og populære bydeler som Grünerløkka og Tøyen.
- Kjellerbod for lagring
- Mulig å leie billig p-plass etter venteliste
- Svært godt service- og kollektivtilbud i umiddelbar nærhet!
NB: Knappen for å vise hele beskrivelsen har kun en visuell effekt.
NB: Knappen for å vise hele beskrivelsen har kun en visuell effekt.
Salgsoppgaven beskriver vesentlig og lovpålagt informasjon om eiendommen
Se komplett salgsoppgaveNyttige lenker
Nærområdet
Nordvik Ullevål
Annonseinformasjon
| FINN-kode | 442278667 |
|---|---|
| Sist endret | 27. des. 2025 18:24 |
| Referanse | 23-0293/25 |
Annonsene kan være mangelfulle i forhold til lovpålagt opplysningsplikt. Før bindende avtale inngås oppfordres interessenter til å innhente komplett informasjon fra meglerforetaket, selger eller utleier.





















