Bildegalleri

Velkommen til Mannsverk 61- presentert av Martin Høgøy Bjørkbom v/Eiendomsmegler Norge
Landås
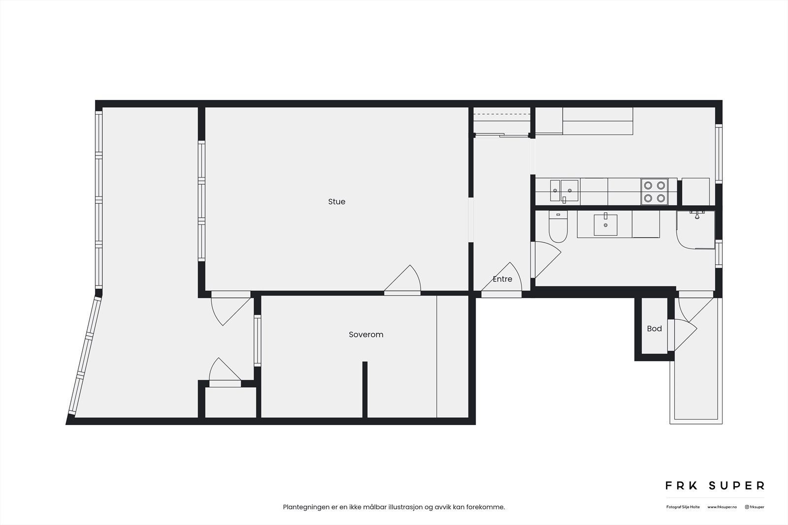
Pen 2R leilighet med god planløsning og standard - 18 m² innglasset balkong - V.Vann & sentralvarme inkl. i felleskost
Prisantydning3 190 000 kr
Nøkkelinfo
- Boligtype
- Leilighet
- Eieform
- Aksje
- Soverom
- 1
- Internt bruksareal
- 57 m² (BRA-i)
- Bruksareal
- 75 m²
- Innglasset balkong
- 18 m² (BRA-b)
- Etasje
- 3
- Byggeår
- 1958
- Energimerking
- F - Mørkegrønn
- Rom
- 2
- Tomteareal
- 48 705 m²
Fasiliteter
Balkong/Terrasse
Barnevennlig
Bredbåndstilknytning
Hage
Kjæledyr tillatt
Kabel-TV
Offentlig vann/kloakk
Rolig
Sentralt
Utsikt
Turterreng
Visning
onsdag, 07. januar
18:30 – 19:15
Velkommen til visning! Husk å melde deg på visningen ved å trykke på knappen visningspåmelding under, eller ta kontakt med megler for å gjøre en avtale. Visninger uten påmeldte blir avlyst.
VisningspåmeldingOm boligen
Velkommen til Mannsverk 61! Leiligheten ligger fint til i et populært og veletablert boligområde på Landås. Her bor man i rolige omgivelser, men likevel i nærheten til alt av fasiliteter og servicetilbud. Det er kort vei til store arbeids- og studieinstitusjoner som Haukeland sykehus og HVL, så vel som skoler og barnehager. Området har et meget godt kollektivtilbud, med hyppige bussavganger i Nattlandsveien, samt bybanestopp ved Sletten senter.
Kort fortalt:
-Sentralvarme og varmtvann inkl. i felleskostnader
-Romslig stue på 22,8m²
-Stort soverom på 11,9m², med rikelig garderobeskap
-Romslig innglasset balkong på ca. 18m² med gode solforhold
-Gjennomgående god planløsning og standard
-Oppgraderte sikringer og elektrisk anlegg
-Kort vei til Sletten senter, buss og bybane
Velkommen!
Kort fortalt:
-Sentralvarme og varmtvann inkl. i felleskostnader
-Romslig stue på 22,8m²
-Stort soverom på 11,9m², med rikelig garderobeskap
-Romslig innglasset balkong på ca. 18m² med gode solforhold
-Gjennomgående god planløsning og standard
-Oppgraderte sikringer og elektrisk anlegg
-Kort vei til Sletten senter, buss og bybane
Velkommen!
NB: Knappen for å vise hele beskrivelsen har kun en visuell effekt.
NB: Knappen for å vise hele beskrivelsen har kun en visuell effekt.
Salgsoppgaven beskriver vesentlig og lovpålagt informasjon om eiendommen
Se komplett salgsoppgaveNyttige lenker
Nærområdet
Eiendomsmegler Norge Landås
Det viktigste stedet i Norge er der du bor
Annonseinformasjon
| FINN-kode | 442273062 |
|---|---|
| Sist endret | 31. des. 2025 10:58 |
| Referanse | 26250114 |
Annonsene kan være mangelfulle i forhold til lovpålagt opplysningsplikt. Før bindende avtale inngås oppfordres interessenter til å innhente komplett informasjon fra meglerforetaket, selger eller utleier.


































