Bildegalleri

Velkommen til Bakkerudveien 5C!
Nordstrand
Nyere lekker familiebolig (2022) |To balkonger, hage og stor terrasse |Garasje m/ elbil-lader |Skjermet og barnevennlig
Prisantydning13 200 000 kr
Nøkkelinfo
- Boligtype
- Rekkehus
- Eieform
- Eier (Selveier)
- Soverom
- 3
- Internt bruksareal
- 134 m² (BRA-i)
- Bruksareal
- 164 m²
- Eksternt bruksareal
- 30 m² (BRA-e)
- Balkong/Terrasse
- 51 m² (TBA)
- Byggeår
- 2022
- Energimerking
- B - Oransje
- Rom
- 5
- Tomteareal
- 842 m² (eiet)
Fasiliteter
Balkong/Terrasse
Barnevennlig
Garasje/P-plass
Hage
Offentlig vann/kloakk
Parkett
Peis/Ildsted
Rolig
Sentralt
Lademulighet
Balansert ventilasjon
Visning
søndag, 11. januar
12:00 – 13:00
For å delta på visning, ber vi om at du melder deg på. Da sikrer vi at du får nødvendig informasjon og at det er satt av tilstrekkelig med tid. Kontakt megler dersom annet tidspunkt ønskes. Husk å lese salgsoppgaven før visningen, så du stiller forberedt.
Ønsker du kun å bli holdt orientert, kan du fra eiendommens hjemmeside få varsel om solgtpris, eller kontakte megler.
VisningspåmeldingOm boligen
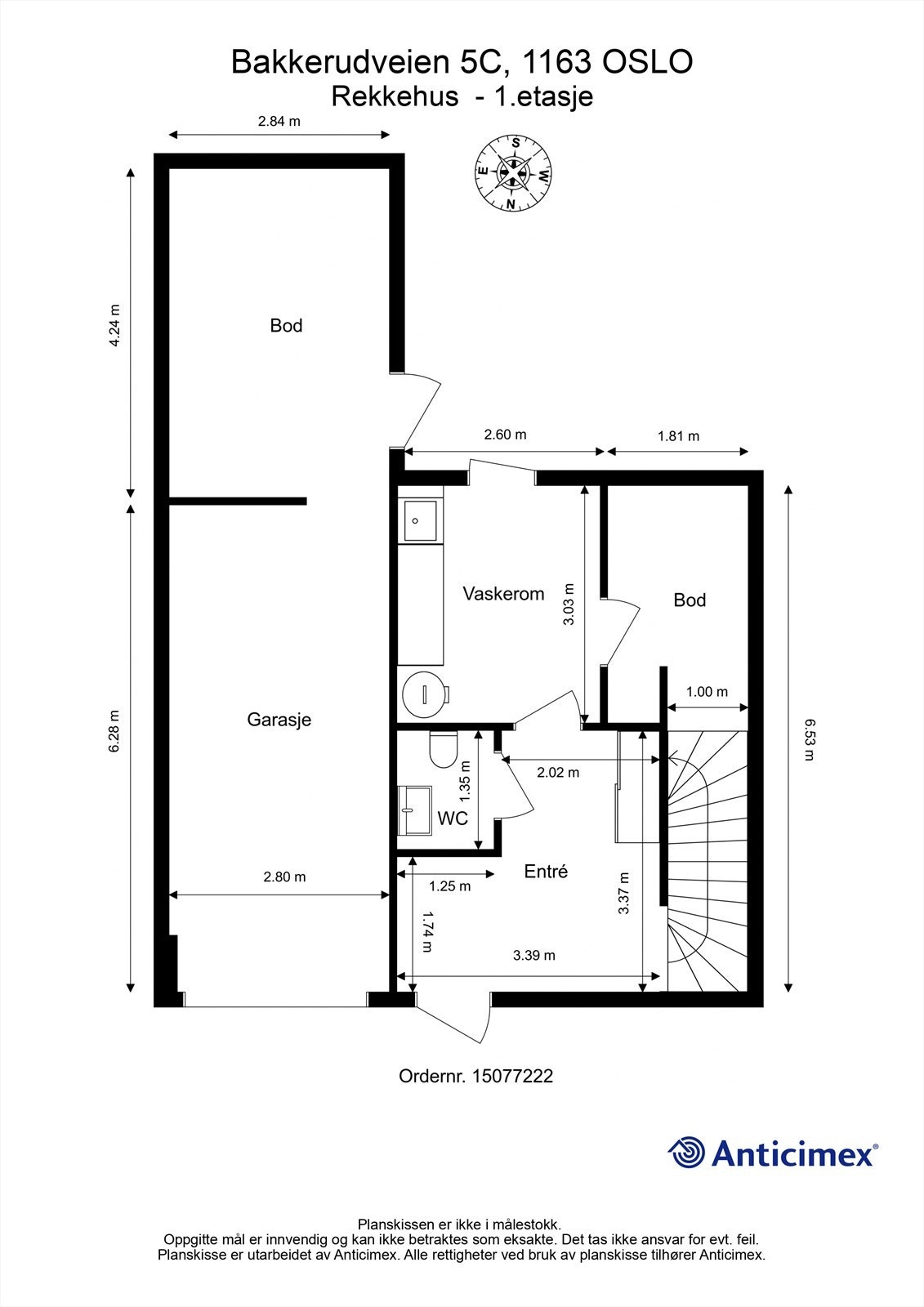
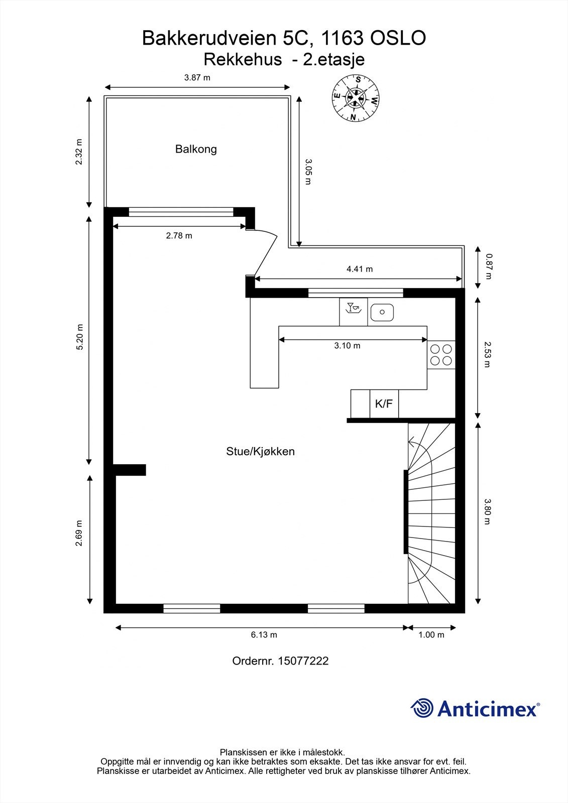
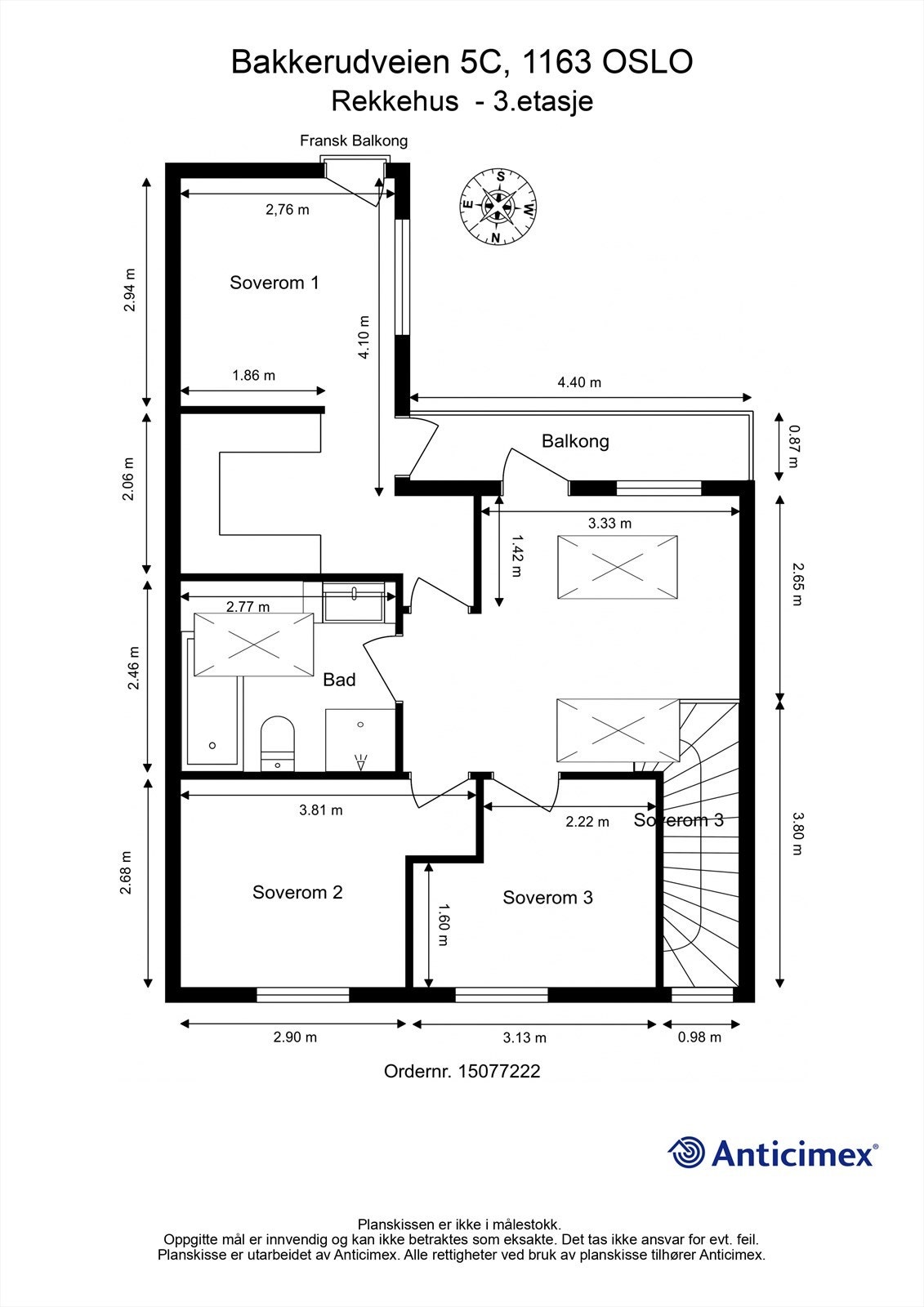
Velkommen til Bakkerudveien 5C! Et moderne og innholdsrikt rekkehus fra 2022, beliggende i et stille og familievennlig småhusområde på Nordstrand. Boligen går over tre plan med en gjennomtenkt planløsning og høy standard. Her bor du med kort vei til skoler, barnehager og offentlig kommunikasjon, samt et rikt utvalg av servicetilbud på Sæter Torg og Lambertseter.
Andre etasje er boligens sosiale hjerte med en åpen stue- og kjøkkenløsning på 53 kvm og utgang til en takoverbygget balkong på 13 kvm. Tredje etasje byr på en koselig loftstue med takvindu, tre soverom og et delikat bad. Fra første etasje er det utgang til en stor terrasse på 34 kvm. Boligen har gulvvarme i store deler av arealene, balansert ventilasjon og en integrert garasje med elbil-lader.
Velkommen til visning!
Andre etasje er boligens sosiale hjerte med en åpen stue- og kjøkkenløsning på 53 kvm og utgang til en takoverbygget balkong på 13 kvm. Tredje etasje byr på en koselig loftstue med takvindu, tre soverom og et delikat bad. Fra første etasje er det utgang til en stor terrasse på 34 kvm. Boligen har gulvvarme i store deler av arealene, balansert ventilasjon og en integrert garasje med elbil-lader.
Velkommen til visning!
NB: Knappen for å vise hele beskrivelsen har kun en visuell effekt.
NB: Knappen for å vise hele beskrivelsen har kun en visuell effekt.
Salgsoppgaven beskriver vesentlig og lovpålagt informasjon om eiendommen
Se komplett salgsoppgaveNyttige lenker
Nærområdet
Krogsveen Nordstrand
Velkommen til en enklere boligreise.
Annonseinformasjon
| FINN-kode | 442271148 |
|---|---|
| Sist endret | 03. jan. 2026 07:40 |
| Referanse | KR44.25276 |
Annonsene kan være mangelfulle i forhold til lovpålagt opplysningsplikt. Før bindende avtale inngås oppfordres interessenter til å innhente komplett informasjon fra meglerforetaket, selger eller utleier.




















































