Bildegalleri

Velkommen til Mikael Hertzbergs vei 10B - En innflyttingsklar og meget påkostet enebolig!
Solgt
Grefsenåsen/Kjelsås
Stor og innholdsrik enebolig | Totalmodernisert (2025) | 5 soverom | Mye bolig for pengene | Skattefri leieinntekt
Prisantydning17 990 000 kr
Nøkkelinfo
- Boligtype
- Enebolig
- Eieform
- Selveier
- Soverom
- 5
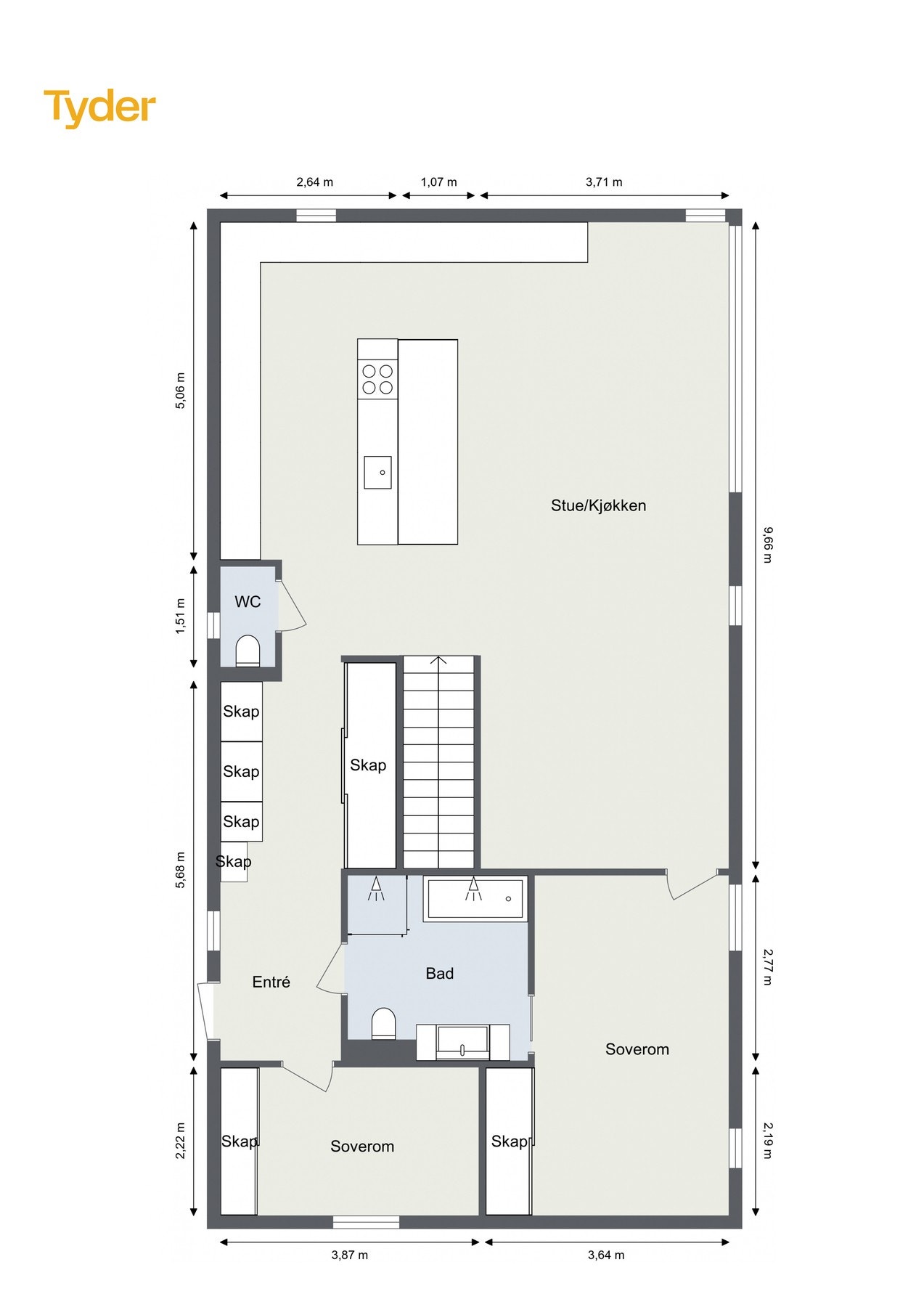
- Internt bruksareal
- 221 m² (BRA-i)
- Bruksareal
- 221 m²
- Balkong/Terrasse
- 4 m² (TBA)
- Byggeår
- 1971
- Energimerking
- A - Gul
- Tomteareal
- 870 m² (eiet)
Fasiliteter
Barnevennlig
Balkong/Terrasse
Garasje/P-plass
Kabel-TV
Offentlig vann/kloakk
Ingen gjenboere
Parkett
Turterreng
Utsikt
Sentralt
Rolig
Lademulighet
Balansert ventilasjon
Om boligen
Velkommen til Mikael Hertzbergs vei 10B - en påkostet og gjennomført enebolig.
- Renovert i 2025: Flytt rett inn i et "nytt" hus med moderne teknisk standard, vannbåren varme og delikate materialvalg.
- Sjenerøse arealer: En sjelden mulighet for deg som trenger plass.
- 5 soverom, 3 bad og to stuer: Perfekt for den store familien, eller for deg som ønsker kombinasjonen av barnerom, gjesterom, hjemmekontor og hobbyrom.
- Mye bolig for pengene: Med et stort antall kvadratmeter og en godkjent utleiedel får du en bokostnad og en kvadratmeterpris som er svært gunstig for området.
- Skattefri finansieringshjelp: Utleiedel med leieinntekt på kr 15.000,- pr. mnd. Dette kan dekke rentekostnadene på et betydelig lån (ca. 4,0-4,5 mill.).
- Velvære i hverdagen: Eget spa-område med badstue, perfekt for avslapning etter en travel dag.
- Utsikt og sol: Høyt og frittliggende med flott utsikt og meget gode solforhold.
- Attraktiv beliggenhet: Stille og rolig blindvei, perfekt for barn.
- Renovert i 2025: Flytt rett inn i et "nytt" hus med moderne teknisk standard, vannbåren varme og delikate materialvalg.
- Sjenerøse arealer: En sjelden mulighet for deg som trenger plass.
- 5 soverom, 3 bad og to stuer: Perfekt for den store familien, eller for deg som ønsker kombinasjonen av barnerom, gjesterom, hjemmekontor og hobbyrom.
- Mye bolig for pengene: Med et stort antall kvadratmeter og en godkjent utleiedel får du en bokostnad og en kvadratmeterpris som er svært gunstig for området.
- Skattefri finansieringshjelp: Utleiedel med leieinntekt på kr 15.000,- pr. mnd. Dette kan dekke rentekostnadene på et betydelig lån (ca. 4,0-4,5 mill.).
- Velvære i hverdagen: Eget spa-område med badstue, perfekt for avslapning etter en travel dag.
- Utsikt og sol: Høyt og frittliggende med flott utsikt og meget gode solforhold.
- Attraktiv beliggenhet: Stille og rolig blindvei, perfekt for barn.
NB: Knappen for å vise hele beskrivelsen har kun en visuell effekt.
NB: Knappen for å vise hele beskrivelsen har kun en visuell effekt.
Salgsoppgaven beskriver vesentlig og lovpålagt informasjon om eiendommen
Se komplett salgsoppgaveNyttige lenker
Nærområdet

PrivatMegleren Renommé
Kun det beste på dine vegne
Annonsene kan være mangelfulle i forhold til lovpålagt opplysningsplikt. Før bindende avtale inngås oppfordres interessenter til å innhente komplett informasjon fra meglerforetaket, selger eller utleier.





















































