Bildegalleri

Eline Wiggen v/ Aktiv eiendomsmegling har gleden av å presentere Harstadrøet 103 B. Foto: Heidi Larsen.
Lyngåsen / Holter
Delikat 3-roms selveier fra 2018 | Carport med elbillader | Romslig terrasse | Nærhet til marka!
Prisantydning3 200 000 kr
Nøkkelinfo
- Boligtype
- Leilighet
- Eieform
- Eier (Selveier)
- Soverom
- 2
- Internt bruksareal
- 66 m² (BRA-i)
- Bruksareal
- 72 m²
- Eksternt bruksareal
- 6 m² (BRA-e)
- Balkong/Terrasse
- 18 m² (TBA)
- Etasje
- 1
- Byggeår
- 2018
- Energimerking
- C - Rød
- Rom
- 3
- Tomteareal
- 1 420 m² (eiet)
Fasiliteter
Balkong/Terrasse
Barnevennlig
Bredbåndstilknytning
Garasje/P-plass
Kjæledyr tillatt
Offentlig vann/kloakk
Rolig
Turterreng
Lademulighet
Balansert ventilasjon
Om boligen
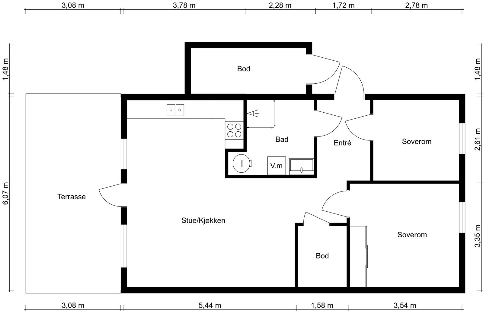
Velkommen til Harstadrøet 103 B - en gjennomgående 3-roms selveierleilighet med moderne standard fra 2018. Dette er en svært praktisk, lys og moderne bolig med god planløsning og gode lysforhold. På Holter har du nærhet til skoler, barnehager, bussholdeplass og gode servicetilbud. Holter ligger meget sentralt med kort vei til Gjerdrum, samt Jessheim, Lillestrøm og Gardermoen, noe som gjør det til et attraktivt område å bosette seg.
Kvaliteter verdt å merke seg:
- Attraktiv 3-roms selveier i 1. etasje.
- Følger med p-plass i felles carport med elbillader.
- En herlig terrasse på 18 kvm.
- Åpen, sosial stue-/kjøkkenløsning.
- Helfliset bad med varme i gulvet.
- To pene soverom, ett med skyvedørsgarderobe.
- Innvendig bod i leilighet samt en sportsbod ute.
- Balansert ventilasjon.
Kvaliteter verdt å merke seg:
- Attraktiv 3-roms selveier i 1. etasje.
- Følger med p-plass i felles carport med elbillader.
- En herlig terrasse på 18 kvm.
- Åpen, sosial stue-/kjøkkenløsning.
- Helfliset bad med varme i gulvet.
- To pene soverom, ett med skyvedørsgarderobe.
- Innvendig bod i leilighet samt en sportsbod ute.
- Balansert ventilasjon.
NB: Knappen for å vise hele beskrivelsen har kun en visuell effekt.
NB: Knappen for å vise hele beskrivelsen har kun en visuell effekt.
Salgsoppgaven beskriver vesentlig og lovpålagt informasjon om eiendommen
Se komplett salgsoppgaveNærområdet
Aktiv Lillestrøm
Annonseinformasjon
| FINN-kode | 442211242 |
|---|---|
| Sist endret | 27. des. 2025 09:33 |
| Referanse | 1204250159 |
Annonsene kan være mangelfulle i forhold til lovpålagt opplysningsplikt. Før bindende avtale inngås oppfordres interessenter til å innhente komplett informasjon fra meglerforetaket, selger eller utleier.





























