Bildegalleri

EiendomsMegler1 ved Markus Tangvik har gleden av å presentere en særdeles flott enebolig i Rønningsvegen 14. Foto: Krokstad&Nervik
Inaktiv
Persaunet
SÆRDELES FLOTT VILLAEIENDOM MED IDYLLISK HAGEOMRÅDE. Betydelig oppgradert i 2012. 2 bad og eget vaskerom. Garasje
Prisantydning22 000 000 kr
Nøkkelinfo
- Boligtype
- Tomannsbolig
- Eieform
- Eier (Selveier)
- Soverom
- 4
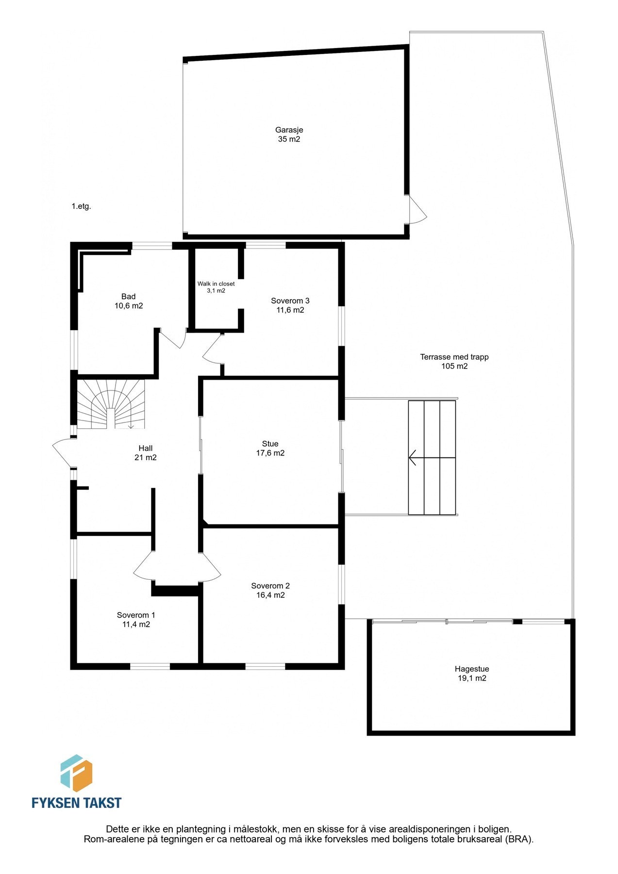
- Internt bruksareal
- 324 m² (BRA-i)
- Bruksareal
- 378 m²
- Eksternt bruksareal
- 54 m² (BRA-e)
- Balkong/Terrasse
- 129 m² (TBA)
- Byggeår
- 1927
- Energimerking
- G - Rød
- Rom
- 6
- Tomteareal
- 1 069 m² (eiet)
Om boligen
EiendomsMegler 1 ved Markus Tangvik har gleden av å presentere en fantastisk og påkostet villabolig i Rønningsvegen 14 på Persaunet. Eneboligen har en utmerket beliggenhet med fantastiske solforhold. Her får du en nydelig enebolig som ble betydelig oppgradert i 2012, og som kombinerer klassisk stil med det moderne.
Visningstidspunkt må avtales direkte med megler.
Kvaliteter:
- Påkostet enebolig som ble betydelig oppgradert i 2012.
- Fantastisk hageområde og flere uteplasser som er ypperlig å benytte i sommerhalvåret.
- Lekkert kjøkken fra 2012 med praktisk kjøkkenøy og integrerte hvitevarer.
- 2 stk. baderom og eget vaskerom som ble oppusset i 2012.
- Drenering, taktekking, kledning og vinduer ble oppgradert i 2012.
- Garasje og godt med oppstillingsplasser på egen tomt.
- Treningsrom i kjeller.
Velkommen på visning!
Visningstidspunkt må avtales direkte med megler.
Kvaliteter:
- Påkostet enebolig som ble betydelig oppgradert i 2012.
- Fantastisk hageområde og flere uteplasser som er ypperlig å benytte i sommerhalvåret.
- Lekkert kjøkken fra 2012 med praktisk kjøkkenøy og integrerte hvitevarer.
- 2 stk. baderom og eget vaskerom som ble oppusset i 2012.
- Drenering, taktekking, kledning og vinduer ble oppgradert i 2012.
- Garasje og godt med oppstillingsplasser på egen tomt.
- Treningsrom i kjeller.
Velkommen på visning!
NB: Knappen for å vise hele beskrivelsen har kun en visuell effekt.
NB: Knappen for å vise hele beskrivelsen har kun en visuell effekt.
Salgsoppgaven beskriver vesentlig og lovpålagt informasjon om eiendommen
Se komplett salgsoppgaveNyttige lenker
Nærområdet
EiendomsMegler 1 Trondheim sentrum, Kongens gate
Vi loser deg trygt gjennom hele boligsalget
Annonseinformasjon
| FINN-kode | 442196756 |
|---|---|
| Sist endret | 29. jan. 2026 11:33 |
| Referanse | 32250297 |
Annonsene kan være mangelfulle i forhold til lovpålagt opplysningsplikt. Før bindende avtale inngås oppfordres interessenter til å innhente komplett informasjon fra meglerforetaket, selger eller utleier.

































































