Bildegalleri

Tom Martinsen v/ Krogsveen har gleden av å presentere Christian Krohgs gate 30!
Nedre Løkka
Unik studioleilighet med supersentral beliggenhet | Kjøkken (2017) | "Alt" ink i fellesutg. | Lekker, felles takterrasse
Prisantydning3 575 000 kr
Nøkkelinfo
- Boligtype
- Leilighet
- Eieform
- Andel
- Soverom
- 1
- Internt bruksareal
- 43 m² (BRA-i)
- Bruksareal
- 46 m²
- Eksternt bruksareal
- 3 m² (BRA-e)
- Etasje
- 5
- Byggeår
- 1903
- Energimerking
- G - Mørkegrønn
- Rom
- 1
- Tomteareal
- 1 357 m² (eiet)
Fasiliteter
Takterrasse
Bredbåndstilknytning
Heis
Kjæledyr tillatt
Ingen gjenboere
Kabel-TV
Offentlig vann/kloakk
Sentralt
Vaktmester-/vektertjeneste
Turterreng
Om boligen
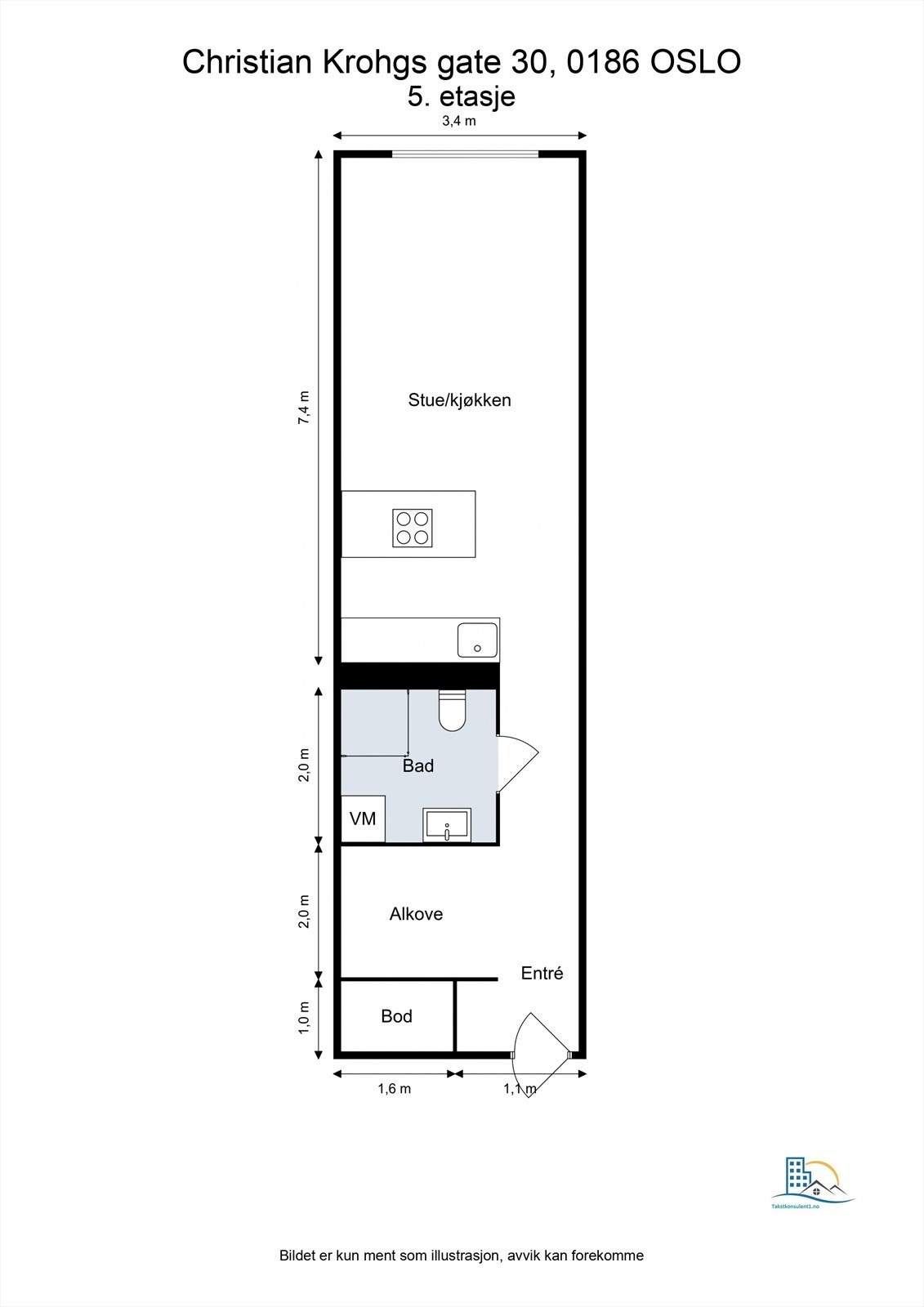
Tom Martinsen v/ Krogsveen har gleden av å presentere Christian Krohgs gate 30! Her presenteres en unik og arealeffektiv studioleilighet med en svært sentral beliggenhet. Leiligheten ligger i 5. etasje i en industriell gård fra 1903, som ble ombygget til moderne leiligheter i 2005. Med alt av servicetilbud, kollektivtransport og rekreasjonsområder som Akerselva like utenfor døren, er dette en perfekt bolig for deg som vil leve et urbant liv.
Kvaliteter:
Kvaliteter:
- Stilrent kjøkken fra 2017 m/integrerte hvitevarer
- Fyring, varmtvann, strøm og internett inkl.
- Felles takterrasse med fantastisk utsikt
- Moderne bad med gulvvarme
- Lys stue med stort vindu
- Kjellerbod på 3 m²
- Smart planløsning
- Praktisk alkove
- Innvendig bod
Velkommen til visning!
NB: Knappen for å vise hele beskrivelsen har kun en visuell effekt.
NB: Knappen for å vise hele beskrivelsen har kun en visuell effekt.
Salgsoppgaven beskriver vesentlig og lovpålagt informasjon om eiendommen
Se komplett salgsoppgaveNyttige lenker
Nærområdet
Krogsveen Hasle
Velkommen til en enklere boligreise.
Annonseinformasjon
| FINN-kode | 442024299 |
|---|---|
| Sist endret | 07. jan. 2026 08:10 |
| Referanse | KR37.25468 |
Annonsene kan være mangelfulle i forhold til lovpålagt opplysningsplikt. Før bindende avtale inngås oppfordres interessenter til å innhente komplett informasjon fra meglerforetaket, selger eller utleier.







































