Bildegalleri

Velkommen til Darres gate 14 - en gjennomgående og meget delikat 3-roms selveier (oppr. 4-roms). Foto: Kristoffer Myhre
WALDEMARS HAGE
Gjennomgående, lekker 3 (4) -roms m/ sydvendt balkong. Kjøkken fra 2025. A-konto strøm, fyring/v.vann og internett ink
Prisantydning8 200 000 kr
Nøkkelinfo
- Boligtype
- Leilighet
- Eieform
- Eier (Selveier)
- Soverom
- 3
- Internt bruksareal
- 74 m² (BRA-i)
- Bruksareal
- 80 m²
- Eksternt bruksareal
- 6 m² (BRA-e)
- Balkong/Terrasse
- 10 m² (TBA)
- Etasje
- 5
- Byggeår
- 2009
- Energimerking
- D - Mørkegrønn
- Rom
- 4
- Tomteareal
- 3 312 m² (eiet)
Fasiliteter
Balkong/Terrasse
Heis
Offentlig vann/kloakk
Parkett
Sentralt
Bredbåndstilknytning
Moderne
Rolig
Balansert ventilasjon
Om boligen
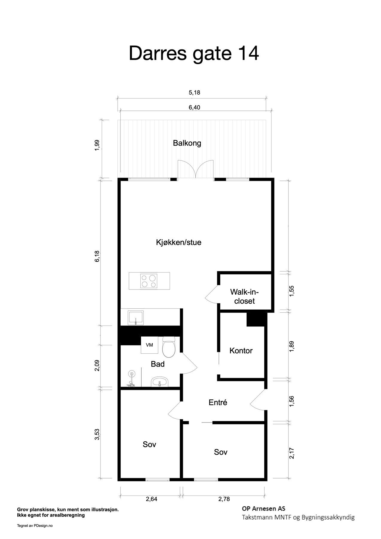
Gjennomgående, delikat og lys selveier med sentral og attraktiv beliggenhet i Waldemars Hage, ved Alexander Kiellands Plass. Leiligheten ligger i 5. etasje i et bygg fra 2009 med heisadkomst, og har sydvendt, overbygget balkong på 10 m².
Leiligheten er opprinnelig en 4-roms. Ett soverom er fjernet til fordel for større stue. Kan tilbakestilles til opprinnelig løsning med enkel grep.
Høydepunkter:
- Felles takterrasse.
- Inngjerdet kvartal.
- Flislagt gulv i entré.
- Kontor i entreen.
- Overbygget, sydvendt balkong på 10 m².
- Nytt gulv og nymalte overflater i 2025.
- Innebod innredet som walk-in closet.
- Medfølgende bod i 1.etg på 6 kvm.
- Meget godt driftet sameie med god økonomi.
- Kvik kjøkken m/ integrerte hvitevarer og kjøkkenøy fra 2025.
Leiligheten er opprinnelig en 4-roms. Ett soverom er fjernet til fordel for større stue. Kan tilbakestilles til opprinnelig løsning med enkel grep.
Høydepunkter:
- Felles takterrasse.
- Inngjerdet kvartal.
- Flislagt gulv i entré.
- Kontor i entreen.
- Overbygget, sydvendt balkong på 10 m².
- Nytt gulv og nymalte overflater i 2025.
- Innebod innredet som walk-in closet.
- Medfølgende bod i 1.etg på 6 kvm.
- Meget godt driftet sameie med god økonomi.
- Kvik kjøkken m/ integrerte hvitevarer og kjøkkenøy fra 2025.
NB: Knappen for å vise hele beskrivelsen har kun en visuell effekt.
NB: Knappen for å vise hele beskrivelsen har kun en visuell effekt.
Salgsoppgaven beskriver vesentlig og lovpålagt informasjon om eiendommen
Se komplett salgsoppgaveNyttige lenker
Nærområdet

Privatmegleren Komplett
Kun det beste på dine vegne
Annonseinformasjon
| FINN-kode | 442017548 |
|---|---|
| Sist endret | 11. jan. 2026 15:48 |
| Referanse | 306250241 |
Annonsene kan være mangelfulle i forhold til lovpålagt opplysningsplikt. Før bindende avtale inngås oppfordres interessenter til å innhente komplett informasjon fra meglerforetaket, selger eller utleier.
































