Bildegalleri

Velkommen til Båtstjernlie 50 - Svært lekker familiehytte 996 MOH med nydelig utsikt mot Skogshorn og fjella i nord. Hytta ligger nydelig til med skiløypa rett bak hytta. Nærmere får du det ikke!
Nesfjellet / Båtstjernlie
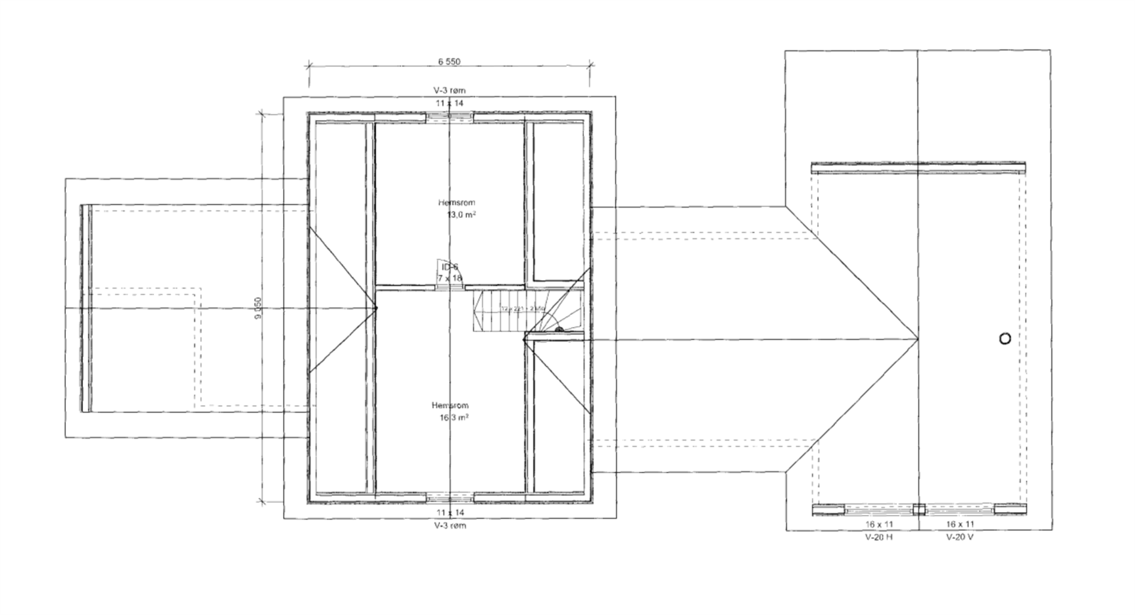
Tiltalende og svært effektiv hytte med nydelig beliggenhet - Lang solgang og herlig utsikt - 2 bad - 157 m2 gulvareal
Prisantydning7 990 000 kr
- Omkostninger
- 201 130 kr
- Totalpris
- 8 191 130 kr
Nøkkelinfo
- Beliggenhet
- På fjellet
- Boligtype
- Hytte
- Eieform
- Selveier
- Internt bruksareal
- 127 m² (BRA-i)
- Bruksareal
- 131 m²
- Eksternt bruksareal
- 4 m² (BRA-e)
- Balkong/Terrasse
- 40 m² (TBA)
- Tomteareal
- 1 451 m² (eiet)
- Byggeår
- 2018
- Soverom
- 4
- Rom
- 2
- Energimerking
Fasiliteter
Innlagt vann
Alpinanlegg
Balkong/Terrasse
Barnevennlig
Bilvei frem
Bredbåndstilknytning
Garasje/P-plass
Golfbane
Peis/Ildsted
Rolig
Utsikt
Fiskemulighet
Innlagt strøm
Turterreng
Lademulighet
Visning
Ta kontakt for å avtale visning
Husk å lese komplett salgsoppgave før visning. Bestill komplett, utskriftsvennlig salgsoppgave.
VisningspåmeldingOm boligen
Velkommen til vakre Båtstjernlie. Svært arealeffektiv og flott hytte for hele familien. Hytta passer perfekt for den store familien, da den er delt inn i to soner og hems. Hytta har store vindusflater som slipper inn mye lys, tomten har en nordvest-vendt beliggenhet med flotte solforhold og en fin utsikt mot fjella.
- Hytta ligger høyt og fritt på over 996 moh.
- Fantastisk utsikt og nærhet til urørt natur
- Kort avstand fra østlandet med 2.20 min fra Oslo
- Skiløyper i direkte tilknytning til hyttefeltet
- Praktiske planløsning som gir rom for mange gjester
- Svært romslig hems med tv-stue og hemsrom som brukes som gjesterom
- Flere uteplasser som følger solbanen
- Sykkel og langrennsløyper
- Hytta ligger høyt og fritt på over 996 moh.
- Fantastisk utsikt og nærhet til urørt natur
- Kort avstand fra østlandet med 2.20 min fra Oslo
- Skiløyper i direkte tilknytning til hyttefeltet
- Praktiske planløsning som gir rom for mange gjester
- Svært romslig hems med tv-stue og hemsrom som brukes som gjesterom
- Flere uteplasser som følger solbanen
- Sykkel og langrennsløyper
NB: Knappen for å vise hele beskrivelsen har kun en visuell effekt.
NB: Knappen for å vise hele beskrivelsen har kun en visuell effekt.
Salgsoppgaven beskriver vesentlig og lovpålagt informasjon om eiendommen
Se komplett salgsoppgaveNyttige lenker
Nærområdet
Nordvik Majorstuen
Annonseinformasjon
| FINN-kode | 441997022 |
|---|---|
| Sist endret | 24. mars 2026 08:46 |
| Referanse | 8-0578/25 |
Annonsene kan være mangelfulle i forhold til lovpålagt opplysningsplikt. Før bindende avtale inngås oppfordres interessenter til å innhente komplett informasjon fra meglerforetaket, selger eller utleier.

















































