Bildegalleri

EiendomsMegler1 ved Kristoffer Mjøs har gleden av å presentere denne lekre leiligheten i Langheiane 77. Fotograf: Trond Erik Brekke
Knarvik
Moderne 3-roms fra 2017 - stor terrasse og sentral beliggenhet | Fast garasjeplass med elbillader | Vannbåren varme
Prisantydning3 650 000 kr
Nøkkelinfo
- Boligtype
- Leilighet
- Eieform
- Eier (Selveier)
- Soverom
- 2
- Internt bruksareal
- 77 m² (BRA-i)
- Bruksareal
- 82 m²
- Eksternt bruksareal
- 5 m² (BRA-e)
- Balkong/Terrasse
- 15 m² (TBA)
- Etasje
- 1
- Byggeår
- 2017
- Energimerking
- C - Oransje
- Rom
- 3
- Tomteareal
- 5 426 m² (eiet)
Fasiliteter
Balkong/Terrasse
Garasje/P-plass
Kjæledyr tillatt
Kabel-TV
Offentlig vann/kloakk
Parkett
Sentralt
Utsikt
Turterreng
Lademulighet
Balansert ventilasjon
Om boligen
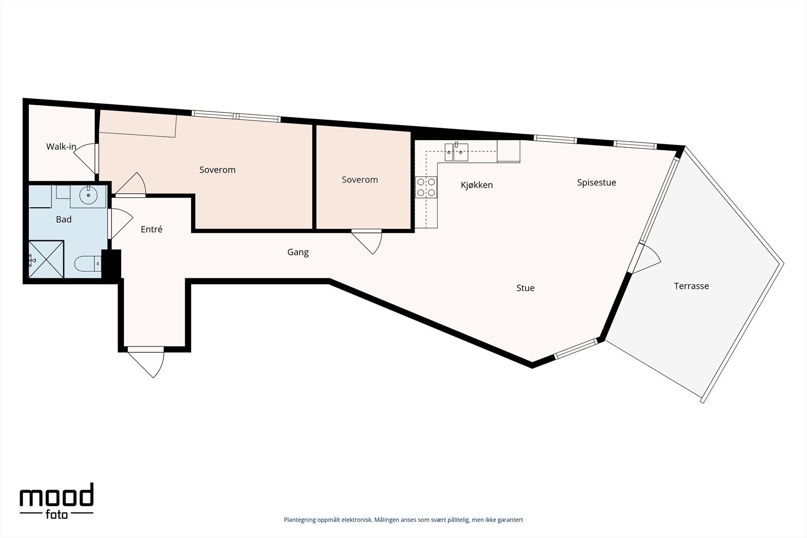
EiendomsMegler 1 ved Kristoffer Mjøs har gleden av å presentere Langheiane 77, en lys og flott eierleilighet fra 2017 med romslig terrasse på 15 kvm og gode solforhold. Leiligheten har en god og effektiv planløsning og en gjennomgående flott standard.
Boligen har åpen stue- og kjøkkenløsning med integrerte hvitevarer, to soverom, flislagt bad med opplegg for vaskemaskin og en innvendig bod. Det medfølger fast parkeringsplass i garasje hvor det er montert elbillader samt sportsbod på 5 kvm. Kort gangavstand til Knarvik Senter, skoler, barnehage og kollektivtilbud. Flere flotte turområder i nærområdet. Kun ca. 20 min kjøring til Åsane og i underkant av 10 minutter videre til Bergen sentrum. Perfekt for deg som ønsker en moderne og lettstelt bolig med alt du trenger i nærheten!
Boligen har åpen stue- og kjøkkenløsning med integrerte hvitevarer, to soverom, flislagt bad med opplegg for vaskemaskin og en innvendig bod. Det medfølger fast parkeringsplass i garasje hvor det er montert elbillader samt sportsbod på 5 kvm. Kort gangavstand til Knarvik Senter, skoler, barnehage og kollektivtilbud. Flere flotte turområder i nærområdet. Kun ca. 20 min kjøring til Åsane og i underkant av 10 minutter videre til Bergen sentrum. Perfekt for deg som ønsker en moderne og lettstelt bolig med alt du trenger i nærheten!
NB: Knappen for å vise hele beskrivelsen har kun en visuell effekt.
NB: Knappen for å vise hele beskrivelsen har kun en visuell effekt.
Salgsoppgaven beskriver vesentlig og lovpålagt informasjon om eiendommen
Se komplett salgsoppgaveNyttige lenker
Nærområdet
EiendomsMegler 1 Vestland
En del av Sparebank 1 Sør-Norge
Annonseinformasjon
| FINN-kode | 441988148 |
|---|---|
| Sist endret | 28. des. 2025 15:33 |
| Referanse | 2713250091 |
Annonsene kan være mangelfulle i forhold til lovpålagt opplysningsplikt. Før bindende avtale inngås oppfordres interessenter til å innhente komplett informasjon fra meglerforetaket, selger eller utleier.




























