Bildegalleri

Velkommen til Pilestredet 55E! Presentert av Mikael Ufuk v/eiendomsmeglerne.
BISLETT/ HOMANSBYEN
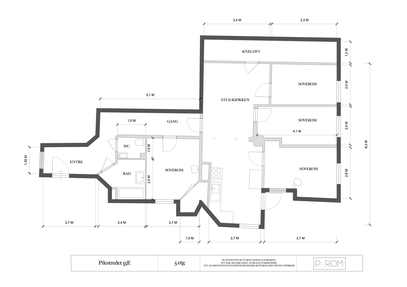
Stor 5-roms Loftsleilighet m/ ekstra loft på 74 m2 i gulvareal. Moderniseringsbehov. Perfekt for utleie.
Prisantydning6 790 000 kr
Nøkkelinfo
- Boligtype
- Leilighet
- Eieform
- Selveier
- Soverom
- 4
- Internt bruksareal
- 78 m² (BRA-i)
- Bruksareal
- 88 m²
- Eksternt bruksareal
- 10 m² (BRA-e)
- Etasje
- 5
- Byggeår
- 1894
- Energimerking
- G - Rød
- Rom
- 5
- Tomteareal
- 810 m² (eiet)
Fasiliteter
Kabel-TV
Offentlig vann/kloakk
Ingen gjenboere
Peis/Ildsted
Utsikt
Vaktmester-/vektertjeneste
Sentralt
Bredbåndstilknytning
Rolig
Om boligen
Romslig 5-roms toppleilighet sentralt på Bislett. Kort vei til butikker, restauranter, treningssentre, kollektivtransport og parker. OsloMet ligger rett i nærheten, noe som gjør boligen godt egnet for studenter. Leiligheten ligger i 5. etasje med flott utsyn, har fire soverom og delvis åpen stue/kjøkken-løsning. Oppussingsbehov gir gode muligheter til å sette eget preg.
Kort fortalt:
Kort fortalt:
- Loft medfølger (74 m2 gulvareal og takhøyde på høyeste 2.4m)
- Det medfølger 2 boder
- Stort potensial
- Moderniseringsbehov
- Peisovn på 2 soverom
- 4 gode soverom
- Lave felleskostnader
- Ingen fellesgjeld
- Sentral beliggenhet
- Gode kollektiv muligheter rett utenfor døren.
Velkommen til visning - Husk påmelding!
NB: Knappen for å vise hele beskrivelsen har kun en visuell effekt.
NB: Knappen for å vise hele beskrivelsen har kun en visuell effekt.
Salgsoppgaven beskriver vesentlig og lovpålagt informasjon om eiendommen
Se komplett salgsoppgaveNærområdet
Eiendomsmeglerne AS
Erfaring og lokalkunnskap
Annonseinformasjon
| FINN-kode | 441584052 |
|---|---|
| Sist endret | 10. mai 2026 13:32 |
| Referanse | 202250248 |
Annonsene kan være mangelfulle i forhold til lovpålagt opplysningsplikt. Før bindende avtale inngås oppfordres interessenter til å innhente komplett informasjon fra meglerforetaket, selger eller utleier.
































