Bildegalleri

Velkommen til Hjerastubben 8C! - Digitalt stylet.
Dal
Nyere 3-roms leilighet fra 2024| Markterrasse | Vedovn | Balansert ventilasjon | Barnevennlig - 2P-plasser!
Prisantydning3 290 000 kr
Nøkkelinfo
- Boligtype
- Leilighet
- Eieform
- Eier (Selveier)
- Soverom
- 2
- Internt bruksareal
- 68 m² (BRA-i)
- Bruksareal
- 73 m²
- Eksternt bruksareal
- 5 m² (BRA-e)
- Balkong/Terrasse
- 8 m² (TBA)
- Etasje
- 1
- Byggeår
- 2024
- Energimerking
- B - Rød
- Rom
- 3
- Tomteareal
- 5 814 m² (eiet)
Fasiliteter
Balkong/Terrasse
Barnevennlig
Garasje/P-plass
Kjæledyr tillatt
Offentlig vann/kloakk
Peis/Ildsted
Rolig
Sentralt
Visning
For visninger utover de annonserte, ta kontakt med megler på telefon 958 87 677.
Vi ønsker på forhånd å vite om du kommer på visning og ber deg ta kontakt for avtale om visning på angitt dag. Dette gjør vi for å kunne yte bedre service til kundene våre.
VisningspåmeldingOm boligen
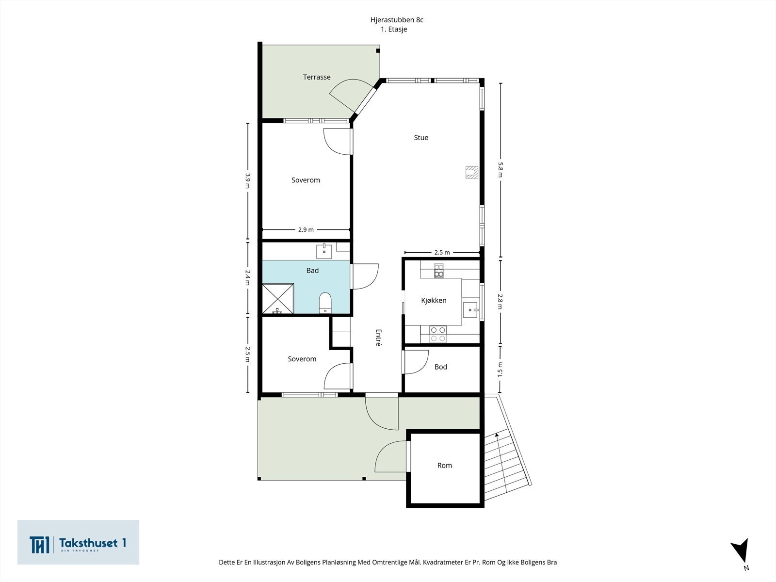
Velkommen til Hjerastubben 8C! Her presenteres en nyere og arealeffektiv leilighet fra 2024, beliggende i første etasje av en firemannsbolig. Boligen ligger i et rolig og familievennlig område på Dal i Eidsvoll, med nærhet til skoler, barnehager og flotte turområder. Dette er en perfekt mulighet for førstegangskjøpere eller en liten familie som ønsker en innflytningsklar og moderne bolig.
Kort fortalt:
- Nyere leilighet fra 2024 med god standard.
- Praktisk planløsning med to soverom.
- Moderne kjøkken med integrerte hvitevarer.
- Flislagt bad med gulvvarme og opplegg for vaskemaskin.
- Stue med vedovn og utgang til terrasse på 8 m².
- Balansert ventilasjon og ekstern sportsbod på 5 m².
Velkommen til visning!
Kort fortalt:
- Nyere leilighet fra 2024 med god standard.
- Praktisk planløsning med to soverom.
- Moderne kjøkken med integrerte hvitevarer.
- Flislagt bad med gulvvarme og opplegg for vaskemaskin.
- Stue med vedovn og utgang til terrasse på 8 m².
- Balansert ventilasjon og ekstern sportsbod på 5 m².
Velkommen til visning!
NB: Knappen for å vise hele beskrivelsen har kun en visuell effekt.
NB: Knappen for å vise hele beskrivelsen har kun en visuell effekt.
Salgsoppgaven beskriver vesentlig og lovpålagt informasjon om eiendommen
Se komplett salgsoppgaveNyttige lenker
Nærområdet
Eiendomsmegler 1 Jessheim
Vi loser deg trygt gjennom hele boligsalget
Annonseinformasjon
| FINN-kode | 441444637 |
|---|---|
| Sist endret | 16. des. 2025 14:56 |
| Referanse | 3375250112 |
Annonsene kan være mangelfulle i forhold til lovpålagt opplysningsplikt. Før bindende avtale inngås oppfordres interessenter til å innhente komplett informasjon fra meglerforetaket, selger eller utleier.



































