Bildegalleri

David Novosad v/ EiendomsMegler1 har gleden av å presentere Markaplassen 211 B. Foto: Krokstad Nervik, Jens Martin Nervik.
Markaplassen/Vikåsen
Stilsikker og oppusset 1/4-part. Bad og kjøkken 2016. Nydelig fjordutsikt og stor terrasse. Parkering. Sportsbod.
Prisantydning4 190 000 kr
Nøkkelinfo
- Boligtype
- Leilighet
- Eieform
- Eier (Selveier)
- Soverom
- 2
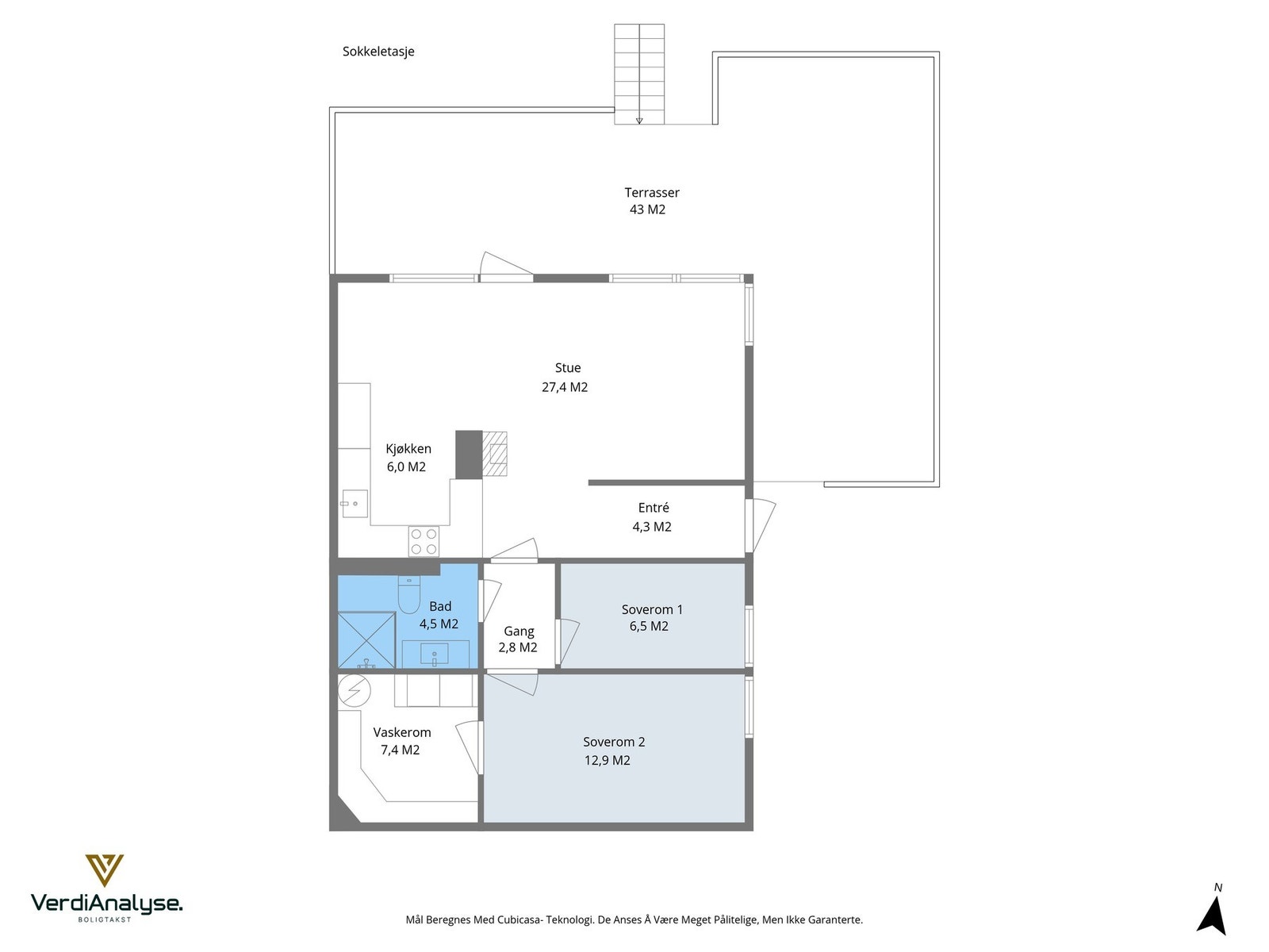
- Internt bruksareal
- 76 m² (BRA-i)
- Bruksareal
- 82 m²
- Eksternt bruksareal
- 6 m² (BRA-e)
- Balkong/Terrasse
- 43 m² (TBA)
- Etasje
- 1
- Byggeår
- 1995
- Energimerking
- F - Oransje
- Rom
- 3
- Tomteareal
- 759 m² (eiet)
Fasiliteter
Barnevennlig
Balkong/Terrasse
Garasje/P-plass
Offentlig vann/kloakk
Peis/Ildsted
Turterreng
Utsikt
Sentralt
Moderne
Rolig
Visning
onsdag, 07. januar
16:30 – 17:15
Våre visninger har påmelding. Dette gjør vi for å kunne yte bedre service for våre kunder. Verdifullt for boligkjøper og for oss. Vi anbefaler at salgsoppgaven lastes ned digitalt før visning, og ring oss gjerne på forhånd for spørsmål om boligen. Passer ikke angitt tidspunkt, ta kontakt så finner vi en løsning. Skulle det mot formodning ikke være påmeldte til angitt visningstidspunkt vil ikke visning bli gjennomført.
Om boligen
Velkommen til Markaplassen 211B.
Her har du en av de beste beliggenhetene på hele Markaplassen. Leiligheten ligger i blindvei, usjenert helt på pynten av feltet. Fra stuen og kjøkkenet nyter man en nydelig utsikt over Trondheimsfjorden og Fosenalpene.
Kvaliteter:
Velkommen til visning!
Her har du en av de beste beliggenhetene på hele Markaplassen. Leiligheten ligger i blindvei, usjenert helt på pynten av feltet. Fra stuen og kjøkkenet nyter man en nydelig utsikt over Trondheimsfjorden og Fosenalpene.
Kvaliteter:
- TG1 på de fleste punkter i takstrapporten
- Parkering rett utenfor døra
- Ny drenering lagt i 2025
- 2 romslige soverom på 12,9m² og 6,5m²
- Stilrent kjøkken fra 2016 med steinbenkeplate og integrerte hvitevarer
- Lekkert flislagt bad fra 2016 med varme i gulv. Rør-i-rør
- Meget fine utsiktsforhold fra stuen samt uteplassen
- Solrik platting på ca. 43m² med fantastisk utsikt. Terrasse med utgang fra stua
- Rikelig med lagring i innvendig bod samt utvendig sportsbod. Fast parkeringsplass
Velkommen til visning!
NB: Knappen for å vise hele beskrivelsen har kun en visuell effekt.
NB: Knappen for å vise hele beskrivelsen har kun en visuell effekt.
Salgsoppgaven beskriver vesentlig og lovpålagt informasjon om eiendommen
Se komplett salgsoppgaveNyttige lenker
Nærområdet
EiendomsMegler 1 Lerkendal
Vi loser deg trygt gjennom hele boligsalget
Annonseinformasjon
| FINN-kode | 441298719 |
|---|---|
| Sist endret | 27. des. 2025 13:24 |
| Referanse | 37250329 |
Annonsene kan være mangelfulle i forhold til lovpålagt opplysningsplikt. Før bindende avtale inngås oppfordres interessenter til å innhente komplett informasjon fra meglerforetaket, selger eller utleier.









































