Bildegalleri

Velkommen til Skårlandsveien 41 - Et pent og moderne enderekkehus beliggende i et trygt og svært barnevennlig område på Sviland.
Solgt
Sviland
Pent og moderne enderekkehus i rolige og barnevennlige omgivelser - Flott utsikt - Carport og romslig gårdsrom - Hage
Prisantydning4 200 000 kr
Nøkkelinfo
- Boligtype
- Rekkehus
- Eieform
- Eier (Selveier)
- Soverom
- 3
- Internt bruksareal
- 99 m² (BRA-i)
- Bruksareal
- 99 m²
- Balkong/Terrasse
- 56 m² (TBA)
- Byggeår
- 2015
- Energimerking
- C - Rød
- Rom
- 4
- Tomteareal
- 1 190 m² (eiet)
Fasiliteter
Balkong/Terrasse
Barnevennlig
Bredbåndstilknytning
Garasje/P-plass
Hage
Kjæledyr tillatt
Offentlig vann/kloakk
Parkett
Rolig
Utsikt
Turterreng
Lademulighet
Balansert ventilasjon
Om boligen
Velkommen til Skårlandsveien 41 - Et pent og moderne enderekkehus beliggende i et trygt og svært barnevennlig område på Sviland. Her bor du med flotte grøntområder og idylliske turstier rett utenfor døren. Nabolaget byr på et varmt og inkluderende miljø med flere barnefamilier, hyggelige møteplasser og lekeplasser kun et steinkast unna. Trygg skolevei til Sviland barneskole og barnehage. Det er 10-15 minutters kjøretur til Sandnes hvor du finner et bredt utvalg av servicetilbud.
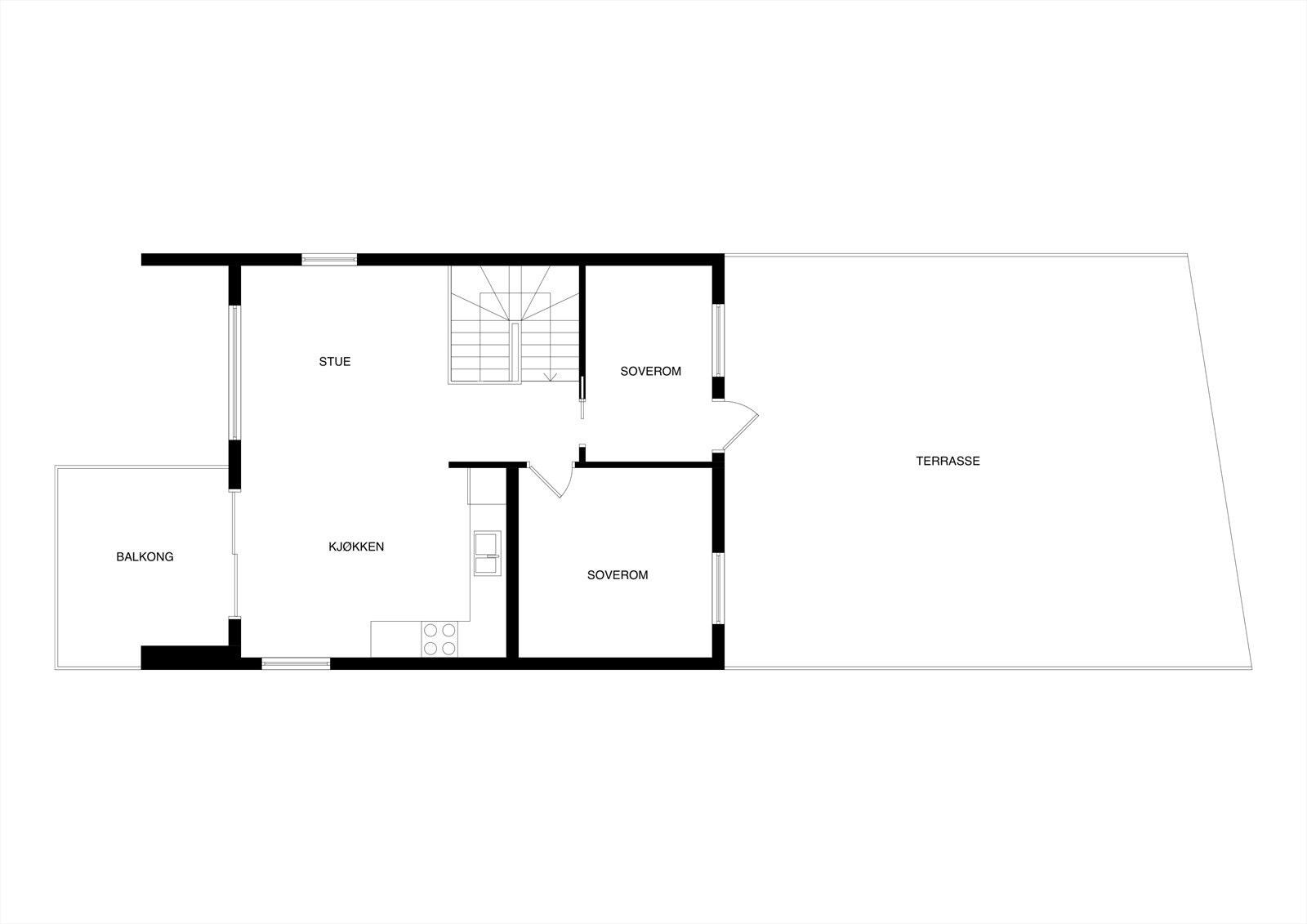
Rekkehuset er oppført i 2015 og holder en gjennomgående god standard. Boligen går over to etasjer og byr på herlige uteområder, nydelig utsikt og gode solforhold fra morgen til kveld. Her får du en romslig og åpen stue- og kjøkkenløsning, tre gode soverom, et helfliset bad samt rikelig med bodplass.
Velkommen!
Rekkehuset er oppført i 2015 og holder en gjennomgående god standard. Boligen går over to etasjer og byr på herlige uteområder, nydelig utsikt og gode solforhold fra morgen til kveld. Her får du en romslig og åpen stue- og kjøkkenløsning, tre gode soverom, et helfliset bad samt rikelig med bodplass.
Velkommen!
NB: Knappen for å vise hele beskrivelsen har kun en visuell effekt.
NB: Knappen for å vise hele beskrivelsen har kun en visuell effekt.
Salgsoppgaven beskriver vesentlig og lovpålagt informasjon om eiendommen
Se komplett salgsoppgaveNyttige lenker
Nærområdet
Eiendomsmegler Norge Stavanger
Det viktigste stedet i Norge er der du bor
Annonseinformasjon
| FINN-kode | 441220451 |
|---|---|
| Sist endret | 17. des. 2025 11:56 |
| Referanse | 20250237 |
Annonsene kan være mangelfulle i forhold til lovpålagt opplysningsplikt. Før bindende avtale inngås oppfordres interessenter til å innhente komplett informasjon fra meglerforetaket, selger eller utleier.










































