Bildegalleri

Velkommen til Bjønnbåsen 28B - Presenteres av EiendomsMegler 1 | Helge Stangeland Foto Truls Schaal.
Bogafjell
Pen leilighet med 2 soverom - Parkering - Blindvei - Romslig hage - Gode lagrings muligheter - Turområder
Prisantydning3 390 000 kr
Nøkkelinfo
- Boligtype
- Leilighet
- Eieform
- Eier (Selveier)
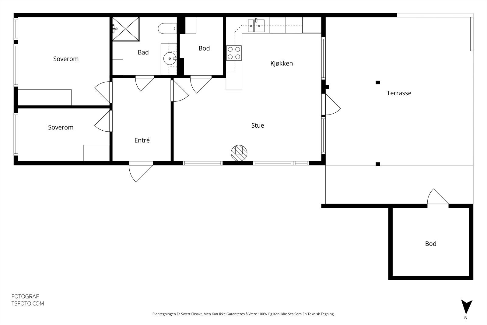
- Soverom
- 2
- Internt bruksareal
- 62 m² (BRA-i)
- Bruksareal
- 68 m²
- Eksternt bruksareal
- 6 m² (BRA-e)
- Balkong/Terrasse
- 30 m² (TBA)
- Etasje
- 1
- Byggeår
- 2010
- Energimerking
- B - Rød
- Rom
- 4
- Tomteareal
- 111 m² (eiet)
Visning
onsdag, 17. desember
17:00 – 17:45
Ønsker du å delta på visningen ber vi deg melde deg på slik at vi vet at du kommer. Da kan vi bistå alle best mulig og gi deg tiden du trenger på visningen. Kontakt gjerne megler før visning hvis du har spørsmål. Visningen avholdes bare dersom det er påmeldte. Hvis det ikke er oppsatt visningstidspunkt eller tidspunkt ikke passer, kontakt megler.
VisningspåmeldingOm boligen
En flott og smart løst selveierleilighet med en attraktiv og barnevennlig beliggenhet på Bogafjell
Leiligheten fremstår som lys og innbydende med god planløsning.
Det er enkel tilkomst til motorveien og området er sentralt om en skal til Sandnes eller Stavanger. Kun få minutters kjøring til næringslivet på Forus. God offentlig kommunikasjon med busstopp. Den sentrale beliggenheten, kombinert med at området er meget barnevennlig, er nok en sterkt medvirkende årsak til områdets popularitet.
Kort oppsummert om leiligheten:
- To soverom.
- Romslig hage
- Gode solforhold.
- Parkering på felles parkering.
- Flott kjøkken i hvit utførelse.
- Moderne bad med gulv varme, servant, wc og dusj.
- 2 boder som gir god lagringsplass.
- Området er svært rolig, med skogen like i nærheten.
Leiligheten fremstår som lys og innbydende med god planløsning.
Det er enkel tilkomst til motorveien og området er sentralt om en skal til Sandnes eller Stavanger. Kun få minutters kjøring til næringslivet på Forus. God offentlig kommunikasjon med busstopp. Den sentrale beliggenheten, kombinert med at området er meget barnevennlig, er nok en sterkt medvirkende årsak til områdets popularitet.
Kort oppsummert om leiligheten:
- To soverom.
- Romslig hage
- Gode solforhold.
- Parkering på felles parkering.
- Flott kjøkken i hvit utførelse.
- Moderne bad med gulv varme, servant, wc og dusj.
- 2 boder som gir god lagringsplass.
- Området er svært rolig, med skogen like i nærheten.
NB: Knappen for å vise hele beskrivelsen har kun en visuell effekt.
NB: Knappen for å vise hele beskrivelsen har kun en visuell effekt.
Salgsoppgaven beskriver vesentlig og lovpålagt informasjon om eiendommen
Se komplett salgsoppgaveNyttige lenker
Nærområdet
EiendomsMegler 1 Sandnes
En del av Sparebank 1 Sør-Norge
Annonseinformasjon
| FINN-kode | 441142160 |
|---|---|
| Sist endret | 10. des. 2025 14:05 |
| Referanse | 2301250525 |
Annonsene kan være mangelfulle i forhold til lovpålagt opplysningsplikt. Før bindende avtale inngås oppfordres interessenter til å innhente komplett informasjon fra meglerforetaket, selger eller utleier.






























