Bildegalleri

- Thea Edland ved Nordvik Bolig har gleden av å presentere Tanangergta 12. Foto: Jan Rune Berge -
Bjergsted
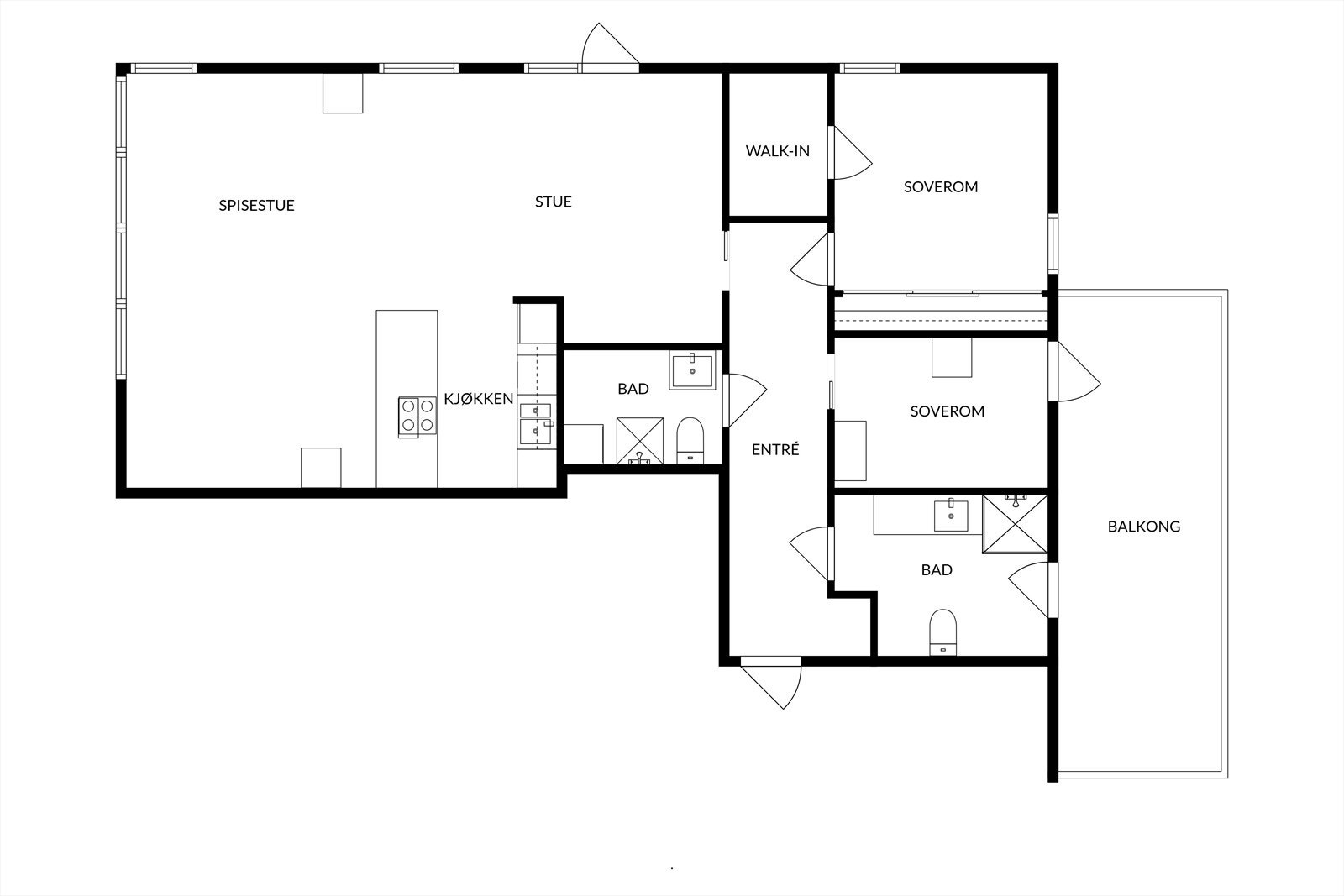
Lys og moderne leilighet med to soverom, to bad, terrasse og parkering i lukket anlegg
Prisantydning5 700 000 kr
Nøkkelinfo
- Boligtype
- Leilighet
- Eieform
- Eier (Selveier)
- Soverom
- 2
- Internt bruksareal
- 99 m² (BRA-i)
- Bruksareal
- 104 m²
- Eksternt bruksareal
- 5 m² (BRA-e)
- Balkong/Terrasse
- 17 m² (TBA)
- Etasje
- 2
- Byggeår
- 2018
- Energimerking
- C - Mørkegrønn
- Rom
- 3
- Tomteareal
- 1 877 m² (eiet)
Fasiliteter
Takterrasse
Balkong/Terrasse
Bredbåndstilknytning
Garasje/P-plass
Heis
Kjæledyr tillatt
Ingen gjenboere
Kabel-TV
Offentlig vann/kloakk
Parkett
Sentralt
Lademulighet
Balansert ventilasjon
Om boligen
Velkommen til Tanangergata 12 en lys, moderne og gjennomført leilighet med ettertraktet beliggenhet på Bjergsted. Her bor du i et sjarmerende nabolag med gangavstand til både Stavanger sentrum, Bjergstedparken og sjøen. Boligen byr på en funksjonell planløsning, lyse overflater og gode uteplasser som inviterer til både avslapning og sosiale sammenkomster. Et hjem som kombinerer byliv og trivsel på en harmonisk måte.
- Lys og elegant hjørne leilighet med store vindusflater
- Pent kjøkken med moderne innredning
- Lys og åpen stue/kjøkken løsning
- Lun og innbydende stuesone med delikate farger
- To romslige bad
- Terrasse på 17kvm samt stor felles takterrasse
- To soverom
- Bod på 5 kvm i underetasje
- Parkering i lukket anlegg med elbil lader
- Lys og elegant hjørne leilighet med store vindusflater
- Pent kjøkken med moderne innredning
- Lys og åpen stue/kjøkken løsning
- Lun og innbydende stuesone med delikate farger
- To romslige bad
- Terrasse på 17kvm samt stor felles takterrasse
- To soverom
- Bod på 5 kvm i underetasje
- Parkering i lukket anlegg med elbil lader
NB: Knappen for å vise hele beskrivelsen har kun en visuell effekt.
NB: Knappen for å vise hele beskrivelsen har kun en visuell effekt.
Salgsoppgaven beskriver vesentlig og lovpålagt informasjon om eiendommen
Se komplett salgsoppgaveNyttige lenker
Nærområdet
Nordvik Stavanger
Vi vet hva det er verdt
Annonseinformasjon
| FINN-kode | 441137424 |
|---|---|
| Sist endret | 21. jan. 2026 13:03 |
| Referanse | 43-0231/25 |
Annonsene kan være mangelfulle i forhold til lovpålagt opplysningsplikt. Før bindende avtale inngås oppfordres interessenter til å innhente komplett informasjon fra meglerforetaket, selger eller utleier.











































