Bildegalleri

Velkommen til Skoglyvegen 6! Foto: Flytende Film AS (Thor Øyvind Borgersen)
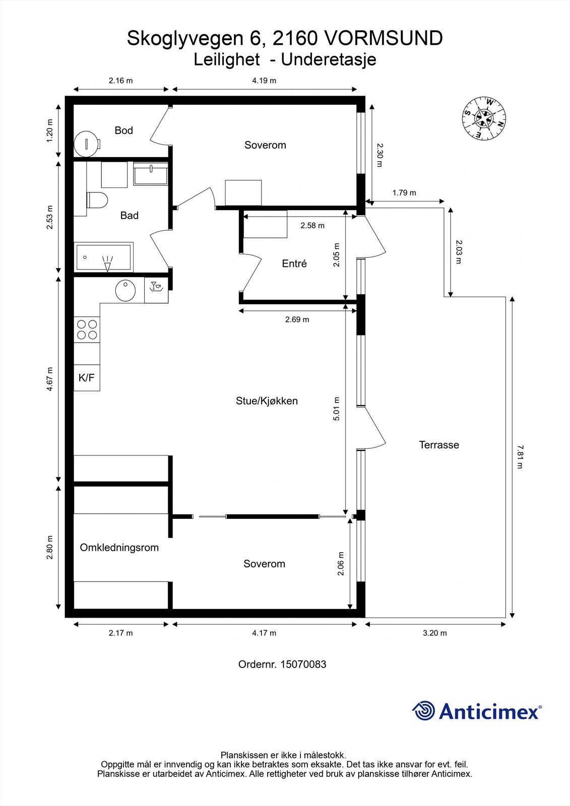
Nyere (2020) og stor 3R eierleilighet | Garasje med bod | Sørvestvendt terrasse på 29 kvm | Stille og rolige omgivelser
Prisantydning2 700 000 kr
Nøkkelinfo
- Boligtype
- Leilighet
- Eieform
- Eier (Selveier)
- Soverom
- 2
- Internt bruksareal
- 77 m² (BRA-i)
- Bruksareal
- 98 m²
- Eksternt bruksareal
- 21 m² (BRA-e)
- Balkong/Terrasse
- 29 m² (TBA)
- Etasje
- 1
- Byggeår
- 2020
- Energimerking
- D - Rød
- Rom
- 3
- Tomteareal
- 5 335 m² (eiet)
Fasiliteter
Balkong/Terrasse
Barnevennlig
Garasje/P-plass
Golfbane
Hage
Offentlig vann/kloakk
Rolig
Sentralt
Turterreng
Balansert ventilasjon
Visning
onsdag, 07. januar
17:00 – 18:00
For å delta på visning, ber vi om at du melder deg på. Da sikrer vi at du får nødvendig informasjon og at det er satt av tilstrekkelig med tid. Kontakt megler dersom annet tidspunkt ønskes. Husk å lese salgsoppgaven før visningen, så du stiller forberedt.
Ønsker du kun å bli holdt orientert, kan du fra eiendommens hjemmeside få varsel om solgtpris, eller kontakte megler.
VisningspåmeldingOm boligen
Velkommen til Skoglyvegen 6!
Lys og moderne eierleilighet fra 2020 med god standard og praktisk planløsning. Boligen har en romslig entré med varmekabler i gulv, lys stue i åpen løsning med kjøkken og et delikat, flislagt bad med gulvvarme. To fine soverom gir gode muligheter for både familie, gjesterom eller hjemmekontor.
Fra stuen er det utgang til en flott og romslig terrasse på ca. 29 kvm en herlig uteplass som fungerer som en naturlig forlengelse av stuen på sommerstid.
Leiligheten har tilhørende garasje med bod, som gir både trygg parkering og ekstra lagringsplass.
Beliggende i et rolig og landlig boligområde ved Vormsund i Nes kommune, med kort avstand til skoler, barnehager, offentlig kommunikasjon og gode servicetilbud. En moderne og lettstelt bolig i et trivelig område.
Lys og moderne eierleilighet fra 2020 med god standard og praktisk planløsning. Boligen har en romslig entré med varmekabler i gulv, lys stue i åpen løsning med kjøkken og et delikat, flislagt bad med gulvvarme. To fine soverom gir gode muligheter for både familie, gjesterom eller hjemmekontor.
Fra stuen er det utgang til en flott og romslig terrasse på ca. 29 kvm en herlig uteplass som fungerer som en naturlig forlengelse av stuen på sommerstid.
Leiligheten har tilhørende garasje med bod, som gir både trygg parkering og ekstra lagringsplass.
Beliggende i et rolig og landlig boligområde ved Vormsund i Nes kommune, med kort avstand til skoler, barnehager, offentlig kommunikasjon og gode servicetilbud. En moderne og lettstelt bolig i et trivelig område.
NB: Knappen for å vise hele beskrivelsen har kun en visuell effekt.
NB: Knappen for å vise hele beskrivelsen har kun en visuell effekt.
Salgsoppgaven beskriver vesentlig og lovpålagt informasjon om eiendommen
Se komplett salgsoppgaveNyttige lenker
Nærområdet
Krogsveen Jessheim
Velkommen til en enklere boligreise.
Annonseinformasjon
| FINN-kode | 440528839 |
|---|---|
| Sist endret | 30. des. 2025 07:39 |
| Referanse | KR63.2591 |
Annonsene kan være mangelfulle i forhold til lovpålagt opplysningsplikt. Før bindende avtale inngås oppfordres interessenter til å innhente komplett informasjon fra meglerforetaket, selger eller utleier.























