Bildegalleri

Valkyreigaten 9/Jacob Aalls gt. 28
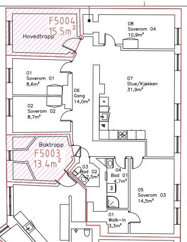
Majorstuen - Ny 5-roms leilighet til leie
- Månedsleie
- 38 000 kr
- Depositum
- 152 000 kr
Nøkkelinfo
- Primærrom
- 106 m²
- Boligtype
- Leilighet
- Soverom
- 4
- Etasje
- 5.
- Leieperiode
- 10.12.2025 - 31.12.2028
Fasiliteter
Beskrivelse
Flott nyoppusset leilighet som inneholder stue med åpen kjøkkenløsning, 4 soverom med garderobeskap, bad med varmekabler og opplegg til vaskemaskin og separat toalett.
Husleie
Kr 38000 per måned.
Leietaker tegner eget strømabonnement.
Utleiers krav til sikkerhet
Kr 152000,-. Som alternativ til depositum kan leietaker kjøpe en leieboliggaranti i stedet for å opprette ordinær depositumskonto i bank. Garantien koster kr 18240 og er et engangsbeløp. For mer informasjon se www.soderbergpartners.no eller kontakt utleier.
Husdyr ikke tillatt.
Leietid
I de første 9 måneder er det ikke adgang til å si opp leieavtalen. Etter utløpet av denne perioden kan leietaker si opp leieforholdet med 3 måneders skriftlig varsel fra månedsskiftet
Visning
Etter avtale. Interesserte bes sende mail til helene.winsnes@thon.no med en kort presentasjon av seg selv, alder, studier/jobb, mobil, ønsket innflyttingsdato og evt. referanser.
Aktuelle søkere vil bli kontaktet for visning.
Adkomst
Eiendommen ligger sentralt til midt på Majorstuen. Gangavstand til t-bane, trikk og buss.
5. etg uten heis.
Visning
Ta kontakt for å avtale visning.
Thon Eiendom
Nærområdet
Annonsene kan være mangelfulle i forhold til lovpålagt opplysningsplikt. Før bindende avtale inngås oppfordres interessenter til å innhente komplett informasjon fra meglerforetaket, selger eller utleier.
Lignende annonser




















