
Bildegalleri

1 etg. Kjøkken
Rom til leie i leilighet
- Månedsleie
- 8 000,–
- Depositum
- 24 000,–
Nøkkelinfo
- Internt bruksareal
- 11 m² (BRA-i)
- Boligtype
- Rom i bofellesskap
- Soverom
- 4
- Leieperiode
- 01.01.2026
Fasiliteter
Beskrivelse
Huset er totalrenovert og ble ferdigstilt mai 2020.
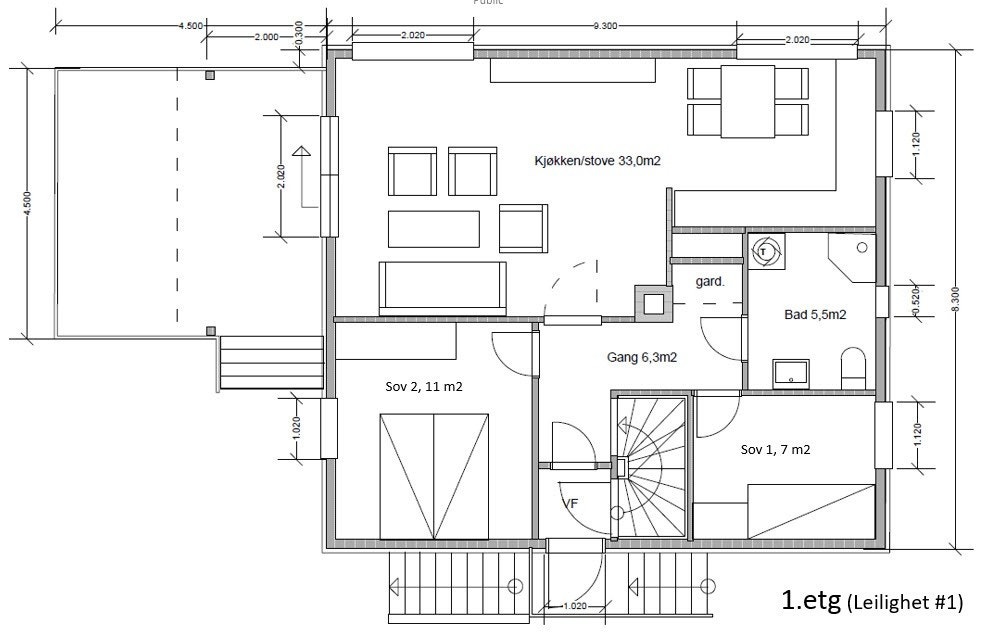
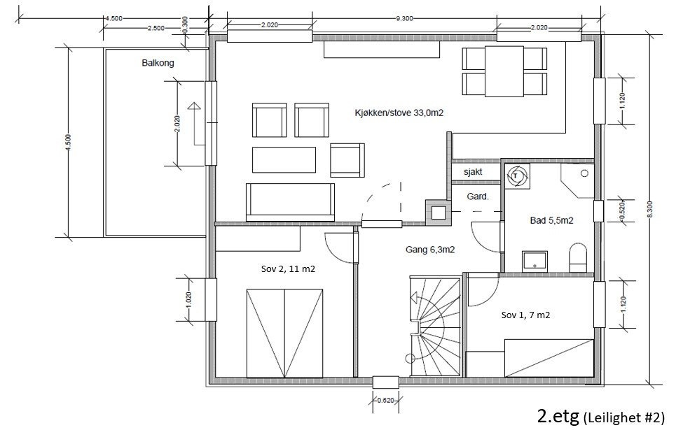
Huset består av to separate leiligheter med egne innganger fra trapperom.
Leilighet 1 inkluderer første etasje og kjeller, og leilighet 2 inkluderer andre etasje og loft. Det er fire soverom i hver leilighet. Hver etasje har bad med dusj og toalett.
LEILIGHET 1:
Kjeller etasje:
Sov 3 - 10 m2 - mnd leie; 8000.-
Sov 4 - 10 m2 - mnd leie; UTLEID
Deler vask- og tørkemaskin med 1. etasje.
Leier har også tilgang til stue med balkong i 1 etasje.
1. etasje:
Sov 1 - 7m2 - mnd leie; UTLEID
Sov 2 - 11m2 - mnd leie; UTLEID
Deler vask- og tørkemaskin med kjeller.
Leier har også tilgang til stue i kjeller.
LEILIGHET 2:
2. etasje:
Sov 1 - 7m2 - mnd leie; UTLEID
Sov 2 - 11m2 - mnd leie; 8000,-
Deler kjøkken, stue med balkong, og vask- og tørkemaskin med loft.
Loft etasje:
Sov 3 - 12m2 - mnd leie; 8000,-
Sov 4 - 14m2 - mnd leie; 8000,-
Deler kjøkken, stue med balkong, og vask- og tørkemaskin med 2. etasje.
GENERELT:
Strøm stipulert til 500,- pr rom pr måned.
Bredbånd stipulert til 100,- pr rom pr måned.
Dyr ikke tillatt.
Røyking ikke tillatt.
Vask av fellesområder er leietakers ansvar.
Visning
Hybel.no
Nyttige lenker
Nærområdet
Annonseinformasjon
| FINN-kode | 440298512 |
|---|---|
| Sist endret | 03. des. 2025 20:43 |
| Referanse | rom-i-leilighet-vistegata-10-stavanger |
Annonsene kan være mangelfulle i forhold til lovpålagt opplysningsplikt. Før bindende avtale inngås oppfordres interessenter til å innhente komplett informasjon fra meglerforetaket, selger eller utleier.
Lignende annonser


























