Bildegalleri

Velkommen til lekre Sandakerveien 20L! Presentert av Marte Natland Johansen og Joachim Lindhjem v/Nordvik Torshov. Foto: Joakim Karlsen.
Solgt
TORSHOV TORG
Delikat og moderne 2(3)-roms med vestvendt balkong. Garasjeplass m. elbillader. Romslig planløsning. Oppvarming/vv inkl.
Prisantydning6 490 000 kr
Nøkkelinfo
- Boligtype
- Leilighet
- Eieform
- Eier (Selveier)
- Soverom
- 1
- Internt bruksareal
- 68 m² (BRA-i)
- Bruksareal
- 73 m²
- Eksternt bruksareal
- 5 m² (BRA-e)
- Balkong/Terrasse
- 4 m² (TBA)
- Etasje
- 2
- Byggeår
- 1958
- Energimerking
- D - Mørkegrønn
- Rom
- 2
- Tomteareal
- 910 m² (eiet)
Fasiliteter
Balkong/Terrasse
Barnevennlig
Garasje/P-plass
Heis
Kjæledyr tillatt
Kabel-TV
Offentlig vann/kloakk
Parkett
Rolig
Sentralt
Utsikt
Vaktmester-/vektertjeneste
Turterreng
Balansert ventilasjon
Om boligen
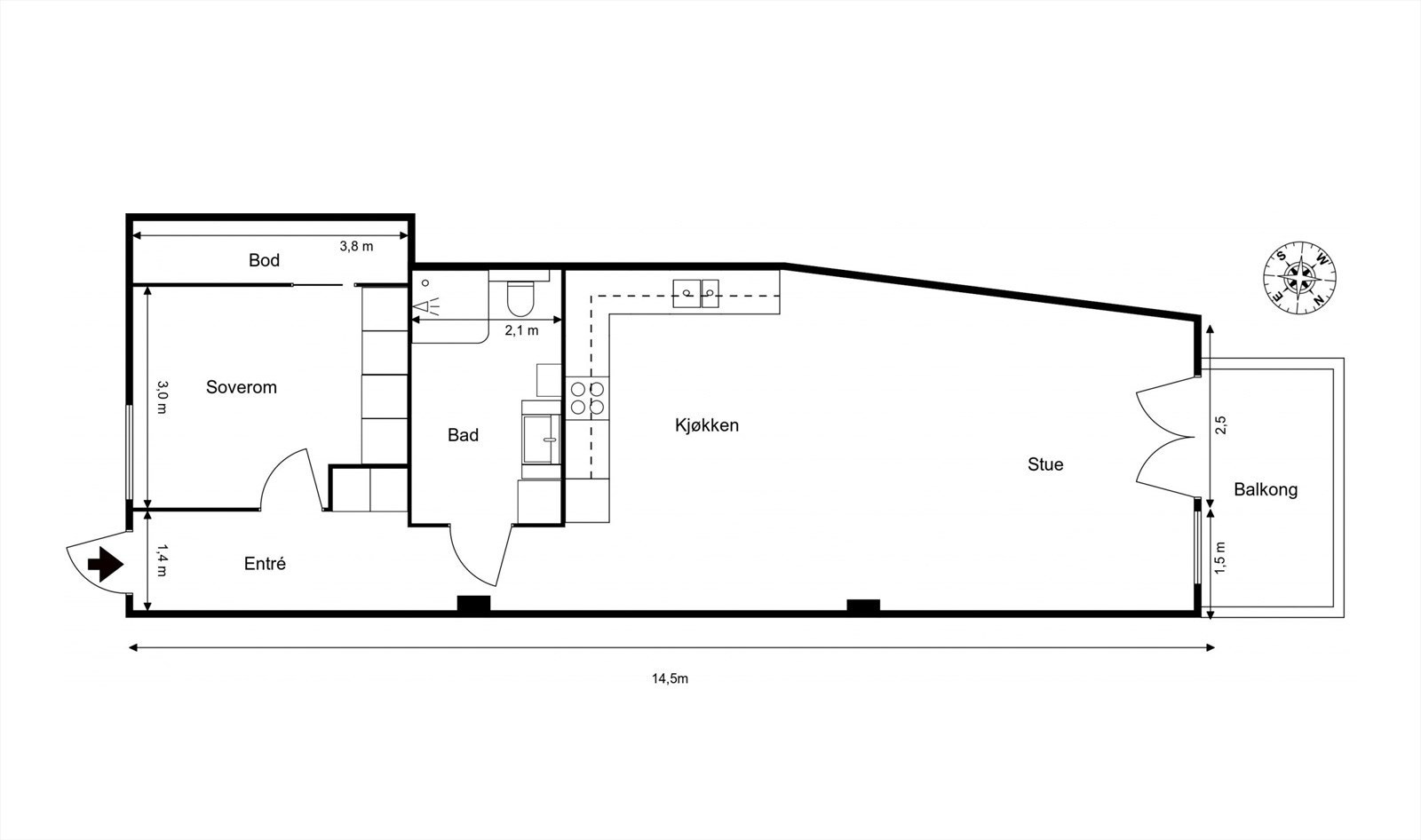
Velkommen til en lys og delikat 2-roms midt på populære Torshov. Boligen har en gjennomgående god standard etter ombyggingen i 2011, og boligen byr på flotte parkettgulv, god takhøyde og store vindusflater som gir et nydelig lysinnslipp. Leiligheten har en attraktiv intern beliggenhet i byggets 2. etasje og oppleves som luftig og åpen med fin utsikt mot Holmenkollåsen! Her får du gode kvaliteter som romslig stue, sosialt kjøkken med kjøkkenøy og stort soverom med super praktisk bod. Her bor du svært sentralt med kort vei til servicetilbud, kollektivtransport og hyggelige parker.
Høydepunkter
-Heis
-Luftig planløsning m/god takhøyde på 2,67m
-Mulighet for 3-Roms*
-Innvendig bod på 3 m² og kjellerbod på 5 m²
-G.plass med elbillader
-Fjernvarme, v.vann og internett inkl. i felleskostnader
Høydepunkter
-Heis
-Luftig planløsning m/god takhøyde på 2,67m
-Mulighet for 3-Roms*
-Innvendig bod på 3 m² og kjellerbod på 5 m²
-G.plass med elbillader
-Fjernvarme, v.vann og internett inkl. i felleskostnader
NB: Knappen for å vise hele beskrivelsen har kun en visuell effekt.
NB: Knappen for å vise hele beskrivelsen har kun en visuell effekt.
Salgsoppgaven beskriver vesentlig og lovpålagt informasjon om eiendommen
Se komplett salgsoppgaveNyttige lenker
Nærområdet
Nordvik Torshov
Vi vet hva det er verdt
Annonseinformasjon
| FINN-kode | 440273470 |
|---|---|
| Sist endret | 18. jan. 2026 07:49 |
| Referanse | 29-0342/25 |
Annonsene kan være mangelfulle i forhold til lovpålagt opplysningsplikt. Før bindende avtale inngås oppfordres interessenter til å innhente komplett informasjon fra meglerforetaket, selger eller utleier.














































