Bildegalleri

Leiligheten ligger fint til på hjørnet av bygget og har en solrik balkong som er sørvendt.
Steinan Park
Helt ny 2-roms i 3.etg med 7kvm sørvendt balkong | Dagligvare i samme bygg og bussholdeplass innen 30 meter
Prisantydning3 140 000 kr
Nøkkelinfo
- Boligtype
- Leilighet
- Eieform
- Eier (Selveier)
- Soverom
- 1
- Internt bruksareal
- 36 m² (BRA-i)
- Bruksareal
- 41 m²
- Eksternt bruksareal
- 5 m² (BRA-e)
- Balkong/Terrasse
- 7 m² (TBA)
- Etasje
- 3
- Byggeår
- 2025
- Rom
- 2
- Tomt
- Eiet
Fasiliteter
Balkong/Terrasse
Barnevennlig
Bredbåndstilknytning
Garasje/P-plass
Hage
Heis
Kjæledyr tillatt
Kabel-TV
Offentlig vann/kloakk
Parkett
Rolig
Sentralt
Utsikt
Vaktmester-/vektertjeneste
Turterreng
Lademulighet
Balansert ventilasjon
Om boligen
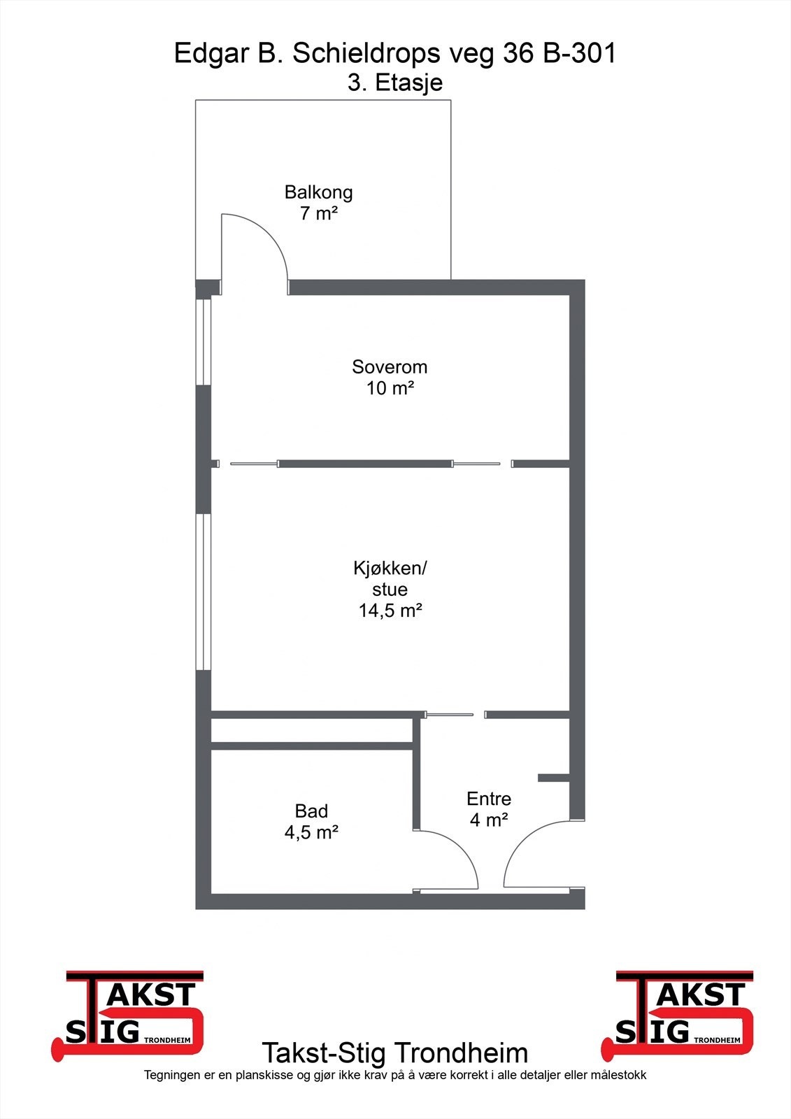
Velkommen til Steinan Park - Delikat og svært gjennomtenkt 2-roms leilighet i 3. etasje med sørvendt balkong på 7kvm. Leiligheten inneholder en romslig entrè, flott soverom, nydelig flislagt bad med innredning fra HTH og åpen stue/kjøkken løsning.
Steinan Park er en sjelden mulighet hvor du har tilgang til natur, men også bor sentralt. Det blir en ny bydel med mange etablerte og varierte tilbud. Her blir det enkelt å bo med alt du trenger til daglig som nærtorg, barnehage og daglivare. Her vil du bo omgitt av rause friområder med gangavstand til flere treningsanlegg. Fra Steinan Park tar det bare noen minutter til Nardosenteret, Moholt eller Risvollan.
Lav kjøpsomkostninger, nybyggaranti og mulighet for kjøp av p-plass.
Leilighetsvelger: https://steinan-park-bygg-b.plyo.cloud/
Steinan Park er en sjelden mulighet hvor du har tilgang til natur, men også bor sentralt. Det blir en ny bydel med mange etablerte og varierte tilbud. Her blir det enkelt å bo med alt du trenger til daglig som nærtorg, barnehage og daglivare. Her vil du bo omgitt av rause friområder med gangavstand til flere treningsanlegg. Fra Steinan Park tar det bare noen minutter til Nardosenteret, Moholt eller Risvollan.
Lav kjøpsomkostninger, nybyggaranti og mulighet for kjøp av p-plass.
Leilighetsvelger: https://steinan-park-bygg-b.plyo.cloud/
NB: Knappen for å vise hele beskrivelsen har kun en visuell effekt.
NB: Knappen for å vise hele beskrivelsen har kun en visuell effekt.
Salgsoppgaven beskriver vesentlig og lovpålagt informasjon om eiendommen
Se komplett salgsoppgaveNyttige lenker
Nærområdet
Heimdal Eiendomsmegling avd. Rosten
Annonseinformasjon
| FINN-kode | 440246564 |
|---|---|
| Sist endret | 05. des. 2025 20:27 |
| Referanse | 1-24-0379 |
Annonsene kan være mangelfulle i forhold til lovpålagt opplysningsplikt. Før bindende avtale inngås oppfordres interessenter til å innhente komplett informasjon fra meglerforetaket, selger eller utleier.















